查看完整案例

收藏

下载

翻译
Architects:Galeria 733
Area :300 m²
Year :2020
Photographs :Marcelo Donadussi
Lead Architect :Blacio Junior
Project Team : Larissa Ramella
Infrastructure : Vinícius Vargas
Legal Project : Brenda Clack
Diagrams : Juliana Kerchner
Decoration : Patrike Godoy
Texts : Guilherme de Almeida
Technical Projects : Videl Engenharia / Engenheiro Lizandro Vitalli
Landscape Design : Recanto Tropical / Paisagista Lieli Hendges
City : Capão da Canoa
Country : Brazil
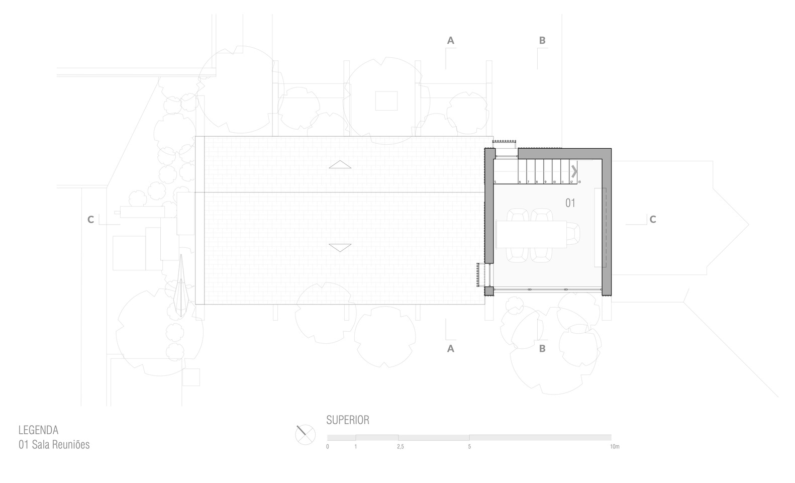
The headquarters of Galeria 733, a studio specializing in residential projects located in southern Brazil, is a small office surrounded by green areas, as a result of the retrofit of an old indoor swimming pool. The complex has approximately 200m 2 of outdoor patios, and no more than 100m 2 of useful area, divided into reception, toilet, pantry, administration, meeting room, and integrated office, with extensive windows facing the gardens.
The composition is divided into two clearly articulated parts, with emphasis on the vertical block, which contains the pantry and the meeting room. On the opposite side, the horizontal volume is shaped by the gabled roof that housed the old swimming pool, a kind of small semi-buried house where the studio is now located. And because it is one meter below ground level, the space becomes even more intimate and welcoming.
The gardens play a key role in the work dynamics, where both informal creative meetings and relaxed outdoor moments take place, especially on the deck. Held regularly, the creative workshops are supported by books scattered around the office, which are an integral part of the ambiance of the interiors. And for planning meetings, a large drawing board is used, which also serves to fix images and illustrations.
White and light tones predominate in the interiors, thus giving greater visual unity to the space and highlighting certain elements. Due to the solar orientation and use of cross ventilation, the need for air conditioning is reduced for most of the year.
▼项目更多图片
客服
消息
收藏
下载
最近




























