查看完整案例

收藏

下载
吴媛媛
南京拙木空间设计联合创始人
南京艺术学院在读硕士研究生
项目坐落于南京熙南里历史文化街区。餐厅自2020年始经营了一年半左右的时间后,基于不断升级的需求,重新梳理了场地的构架与秩序。期望以全然新异的空间意象回应有关生活的更多可能。
The project is located in Nanjing XiNanli Historical and Cultural Block.After running around one and a half years since 2020, the restaurant reorganized the structure and order of the site based on the escalating needs.We expect the new space can respond to more possibilities about daily life .
餐厅入口位于一楼,而用餐区主体位于二楼。小山南定位于中高端私宴,在此语境下承载对纯正味道的追求。既有对历史传统的记忆,也有对当下融合的创新。
The entrance is located on the first floor, while the main section of the dining area is located on the second. Xiao Shannan is positioned in the high-end private banquet, Pursuing the pure taste in the contect.Thus there are both memories of traditional falvor and innovation in the integration of the present.
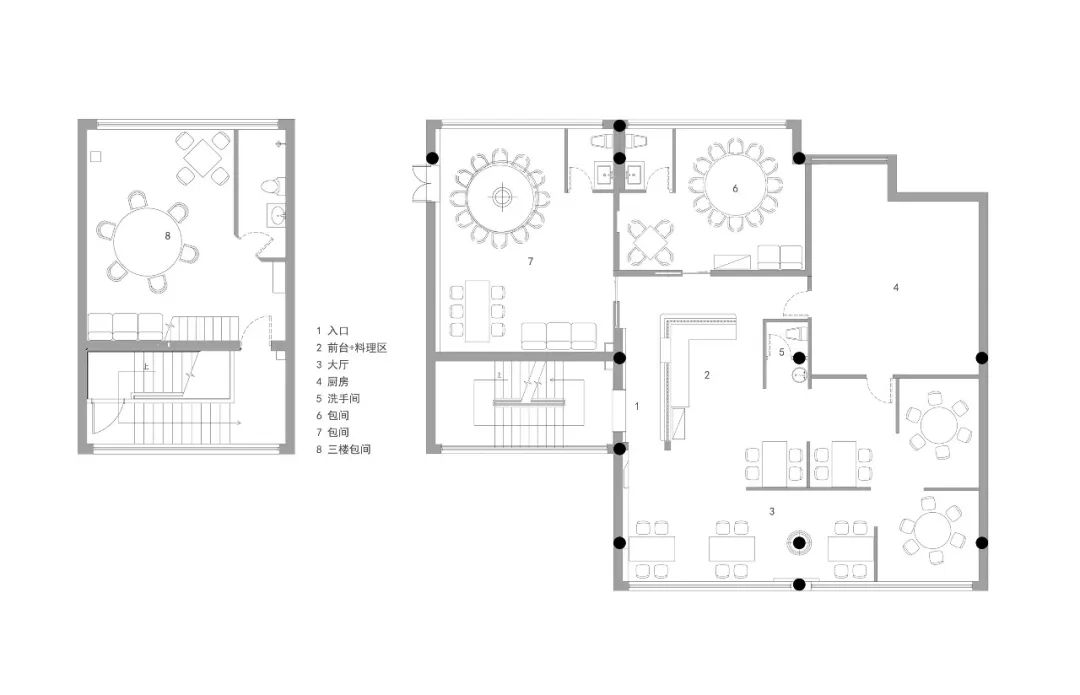
新空间的秩序来自于对平面整体维度的调整思考。以半墙围合成集前台和料理台的中心枢纽。东侧为公共性的用餐大厅,西侧为私密性的宴请包间。厨房在其北侧。因此整个餐厅的服务流程即围绕此枢纽展开。
The order of the new space comes from the adjustment of the overall plane. The central part is a reception and arrangement table combination surrounded by a half wall. The east side of it is the public dining hall, and the west are private rooms. The kitchen locates on its north. Therefore, the service process of the whole restaurant revolves around this hub.
用餐大厅以半敞半开式区隔,三面隔墙以老木柱围合。
The dining hall separated in the semi-open form, and three partition walls enclosed by old wooden columns.
墙面刻壁龛绘以金箔水墨。金箔对光的不可捉摸,时而空灵,时而昏暗。正如谷崎润一郎所描述,阴影黑暗同光亮拥有同等价值。
The wall carved some niches which sticked with gold foil and painted with ink.Gold foil is unpredictable about light, sometimes ethereal and sometimes dim.Like Tanizaki Junichiro describes, shadow darkness has the same value as light.
从西侧包间入口回望东侧大厅尽端,这一空间中的最长对角线几乎囊括了餐厅的所有功能,墙体变化穿插其中,隔而不隔,界而未界。交错的人流在静谧的叙事中释放着情感的张力。
Looking back from the west private room to the east end of the hall, the longest diagonal line in this space includes almost all the functions of the restaurant. The wall changes among it, separated but no separated.People release their emotional tension in this quiet narrative.
大厅洗手间南侧的墙体同时也承担了入口背景墙的视觉存在。墙体断开以锥形花器相连,两支鸢尾在裂缝中绽放,如同野境中的生命充斥着自然的能量。这种寂然本质的沉潜,使空间传递的氛围能够游离于风格语境之外。
The bathroom wall on the south also takes a background role for the entrance.The walls are disconnected by a conical floral organ, Two irises blooming in the crack, just as the living energy comes from nature.The sinking of this silent nature makes the atmosphere of space transfer freely out of the style.
二楼包间分别以“山岚”与“松间”为意向。以水墨淡彩赋色,勾勒远山绵延之景。使空间呈现出审美的宁静感。
The private rooms on the second floor take "ShanLan" and "SongJian" as the intention respectively.The continuous mountains in distance painted with light ink color.Make the space presents an aesthetic sense of tranquility.
三楼包间独立于主要用餐区,如同一个逃离的小世界,我们以“锦雀”为题,立“趣”而行,凡有趣者,皆执着于物,皆动心。
The private room on the third floor is independent of the main dining area, like an escaped microcosm, we take the "JingQue" as the title, set up "fun", all interesting person are dedicated to things and are tempted.
从餐厅回至一楼入口,原本仅用作行走的狭小楼梯间,我们将其内向的属性转为外向。以U型玻璃包裹出全新的立面,并置入桌椅接纳愿意在此停留的行人。转角处的一方小小花池是区域围合的坐标,同时池中花草也会在此默默见证日后的光阴流转。
From the dining hall to the first floor entrance, The original narrow walking stairwell was turned its inward properties to outward.A new elevation is wrapped in U-shaped glass, tables and chairs are placed to accommodate people who are willing to stay here.A small flower pool at the corner is the coordinate of the regional enclosure, and the plants in the pool will also silently witness the time flow in the future here
△平面图
Project name: Xiao Shannan Restaurant
项目名称:味至小山南餐厅
Design company: Nanjing humble wood space design
设计公司:南京拙木空间设计
Leader designer: Wu Yuanyuan
设计主创:吴媛媛
Construction period: 2021.12-2022.01
施工时间:2021.12-2022.01
Project address: 18# Xi Nanli, Nanjing
项目地址:熙南里18号,南京
Project area: 300
建筑面积:300
Photography copyright: Min Xiaofang
摄影版权:闵筱舫
Main materials: U-shaped glass, straw paint, walnut
主要材质:U型玻璃、草籽漆、胡桃木
文字/图片:南京拙木空间设计
南京拙木空间设计
南京拙木空间设计是一家小型设计事务所,我们试图以人物活动为出发去思考空间的边界。不断探索人的感性张角和空间的生动性。
往期回顾
为青年设计发声
第一时间接收精选内容
客服
消息
收藏
下载
最近

























































