查看完整案例


收藏

下载

翻译
Architects:Atelier M+A
Area :360 m²
Year :2021
Photographs :Masaki Harimoto
Architect : Masaki Harimoto, Ng Ai Hwa
Country : Singapore
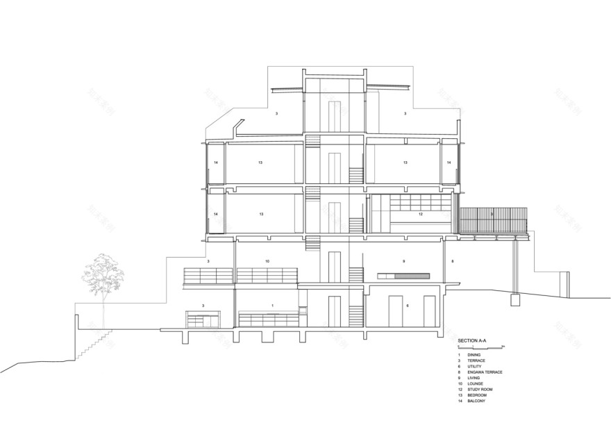
This is a terrace house for a family of 3 generations located in the east coast area of Singapore. Situated on the high point of the hilly neighborhood, the sloping terrain of the site allows for a unique 'basement' level that enjoys an open rear garden with views.
This is where the dining and kitchen are located to enjoy both the indoor and outdoor dining experience. A double-volume void above the dining brings in light, and air and promotes cross-interaction with the living on the first storey.
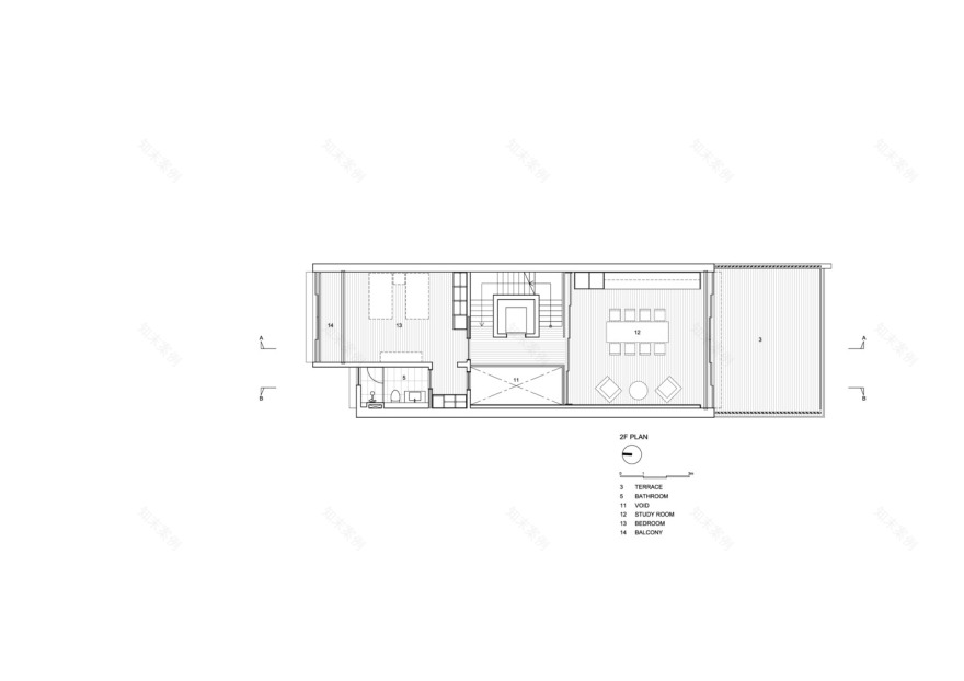
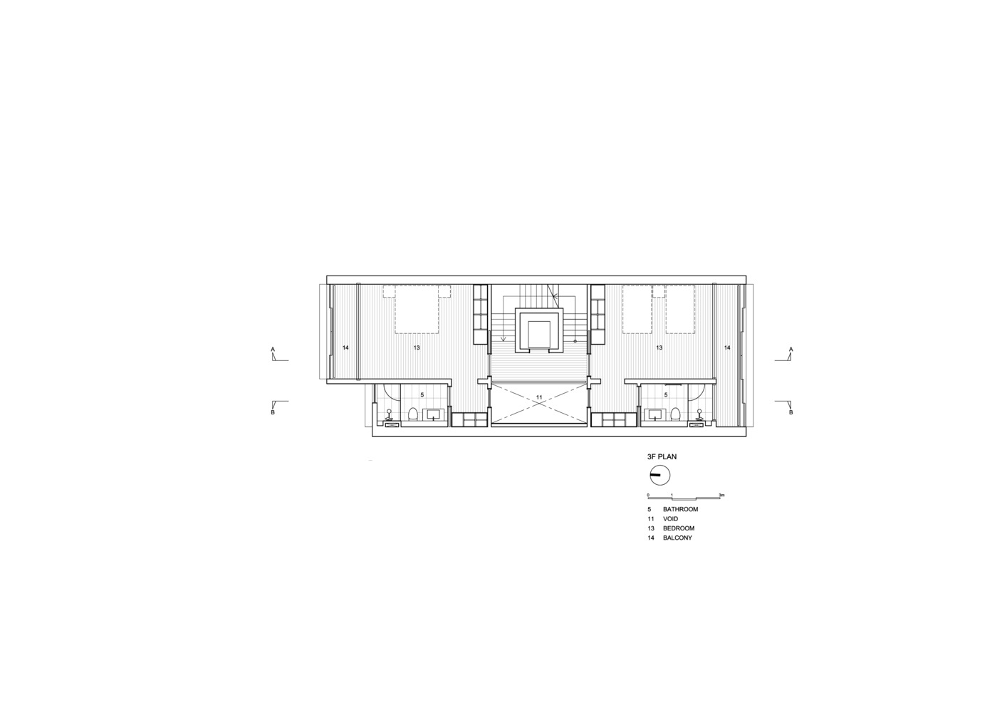
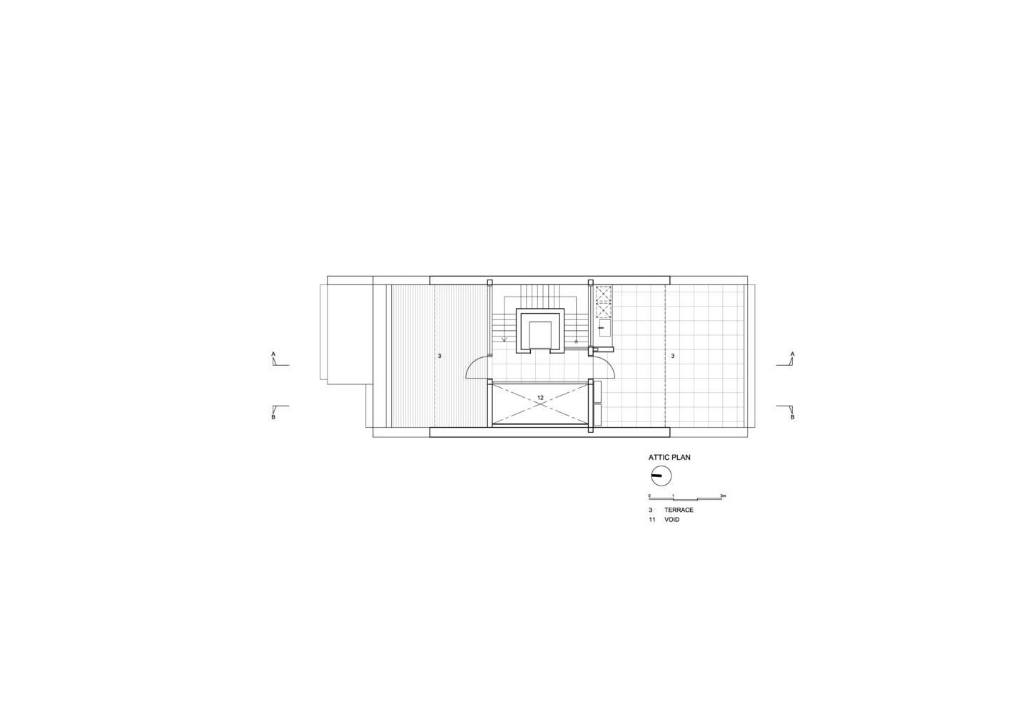
An internal light well induces cross ventilation throughout the whole house. A skylight above it brings light into the inter-terrace house. All the facade openings and outdoor communal space are sheltered with canopies and fins to protect from the weather, while bedrooms are recessed with balconies and sliding timber louver doors for added privacy.
▼项目更多图片
客服
消息
收藏
下载
最近


























