查看完整案例


收藏

下载
来源 | DAS 大森设计
编辑 | 扮家家室内设计 · 佳佳妹
不断探索的欲望在 DNA 中涌动,人类应该如何突破时间、空间的限制
01 MOMENT AS ETERNAL 刹那永恒·时光长廊
我们通过新的空间重新创造一个载体,我们将这个新的载体定义为时光走廊。
在这个精神空间里,为大众提供了一个充满吸引力甚至有一定实验性和未知性的空间,开启了对当下生活意义与未来生活期望的思考。
▲对称阵列感的长拖“1958”©YUAN STUDIO
通过保留厂房老旧红砖墙,斑驳的混凝土梁柱,煤气吊灯、工矿壁灯延续历史记忆,体现现代工业怀旧风的调性。以工矿灯作为延续过去的元素,粗犷中也有着微妙细腻感,呼应空间的情绪表达。
▲时光长廊一层接待区中轴©YUAN STUDIO
▲将灯光藏于“麦田”中,新的能量随之渐渐鼓动ⒸYUAN STUDIO
▲微光麦穗和座椅细部©YUAN STUDIO
以自然元素为灵感,麦穗芒草的精巧形态搭配以与烛光色温相仿的 LED 光源,并在延续历史记忆的老物件的新旧碰撞下进一步展现出矛盾的时代美感。
▲时光长廊二层走廊©YUAN STUDIO
故事以 1958 年的长春拖拉机厂作为平行时空的起点,在这个安静匍匐的空间里,时空出现裂痕,未来的事物开始闯入空间,传统界限和刻板规训即将被打破······
▲用拖拉机的零配件延续历史记忆,用当代手法对新与旧进行解析©YUAN STUDIO
02 FLASHBACK 浮光掠影·林荫大厅
▲自然光影透过玻璃天窗©YUAN STUDIO
自然光线和现实工业背景相得益彰,从造型上进一步强化了生态自然的设计理念。象征工业线圈的公共座椅互相堆叠、错落有致,在绿植之间虚实掩映,营造出了轻松自然的街区式商业氛围。
润物无声的再生,天窗玻璃的使用隔绝了外部杂乱的环境,反显室内浮光掠影之光景。
▲天窗优化室内采光,植物形成舒适微气候©YUAN STUDIO
▲林荫大街一层入口©YUAN STUDIO
在喧闹的旁景映衬下,榉树群仿佛是静止的,移步异景,植物在不同的功能区域之间静置,自成天地。
▲座椅细部 ©YUAN STUDIO
▲林荫大街二层局部 ©YUAN STUDIO
▲长春拖拉机长老照片通过现代艺术手法创新,呈现新旧碰撞的艺术冲击感。
©YUAN STUDIO
当观者步入,光线从天窗以不同角度倾泻下来,人们游移在光影层叠的构图与遮荫中,视觉也拥有了一丝趣味性。在错落叠加的景观里放松舒缓,在变幻多样的场景中按下时间的凝结按钮……03 ENDLESS FUTURE 无限未来·发电机市集
▲将发电机的主题融入空间,不锈钢公共座椅赋予空间社交属性。
人们熟悉的传统招牌被置于了空间顶部,观者在凝结时间的时空之间,尽情的探索未来的无限可能性。
未来的能量通过发电机萃取、传输、补给,循环往复,提供源源不断的能量,这样一座能量涌动的赛博朋克“发动机市集”就此落成。
▲艺术装置开关动态画©YUAN STUDIO
▲二层人视©YUAN STUDIO
科技早已重塑我们对世界的认知,随着元宇宙概念的出现,很快人们以穿梭于虚拟与现实之间为日常,希望这个“能量不断的发电机市集”可以提前让人们置身其中。
▲极具现代感的休息区的桌椅©YUAN STUDIO
社交的互动体验从休息区座椅开始,近乎“隐形”的异形不锈钢镜面座椅,呼应着未来赛博朋克的生态形式。在传统与未来的两级碰撞下,引发关于未来生命能量与生活方式的想象。
04 ENDLESS FUTURE 时空折叠·BIG BOX
设计方:E UV、Studio 10©YUAN STUDIO
中央大厅“big box”面对主要广场的入口空间及整个厂房最主要的公共空间,集聚艺术性与娱乐性,延续矿灯元素,不锈钢坐凳、面条软体沙发增加亲子互动性及休闲舒适体验感。
前卫金属面涂层与彩色泡沫粗砺触感的反差,增加了 big box 门后世界的不确定性,推开瞬间捕获探寻趣味。
每个门洞通向的路无法预测充满好奇,展开他们对于工业世界的想象,呵护儿童与生俱来的想象和创造天赋。通过打造沉浸式艺术叙事空间,让奔跑玩闹在 Big Box 的儿童从视、触、听等五感去感知与众不同的工业世界,在奇遇工业的探索之旅中洒下好奇心的种子。这是一次非典型的改造尝试。
▲新长拖厂 1958©YUAN STUDIO
铸光仓是整个长拖 1958 改造的第一次亮相,当观者参与到这股时代洪流中,让历史照进现实,在充满神圣仪式感的氛围下走向无尽可能的“未来”,从转型到重生,从工业性向城市性,我们期望铸光仓成为工业城区改造的启点,将会有越来越多的老城区走进现代设计的人本语境。长拖 1958 也将成为长春工业城区更新的新典范。
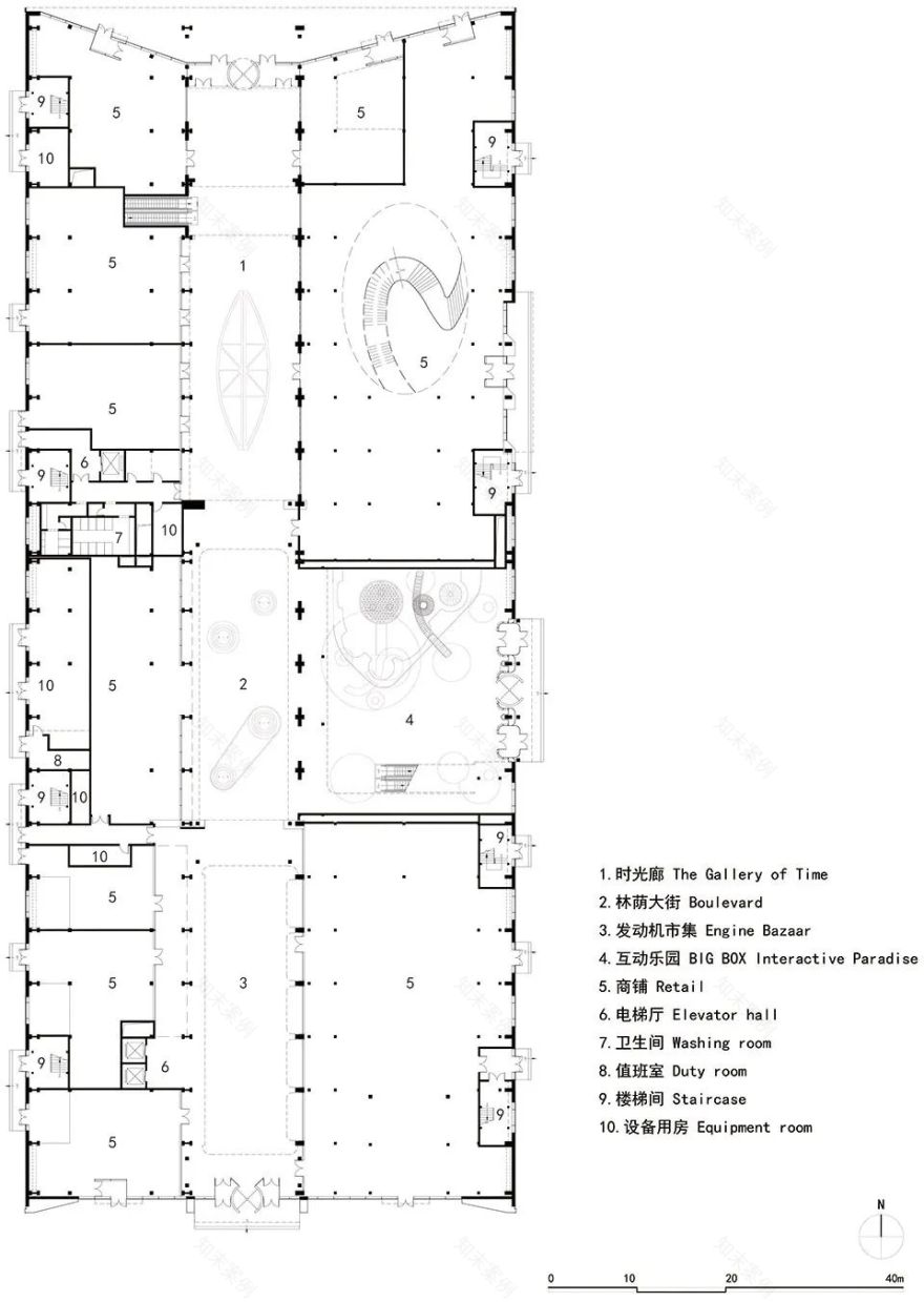
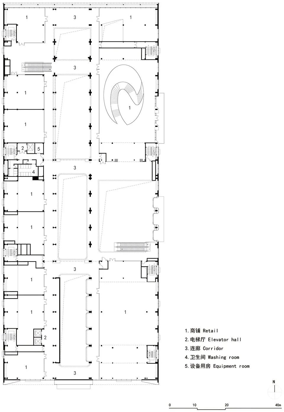
项目名称 | 1958 长拖厂的新生
项目地址 | 中国 · 长春
建筑面积 | 13,000㎡
摄影版权 | YUAN STUDIO,金伟琦,E UV
建筑及文保施工图 | 上海华东建筑设计研究有限公司历史建筑保护院
室内设计 | E UV 、Studio 10、深圳九思室内设计有限公司(施工图)
软装设计 | E UV 、DAS 大森设计
艺术顾问 | 北京方二文化艺术传播有限公司,尤艾普(上海)艺术设计咨询有限公司
标识顾问 | 图石设计
幕墙顾问 | 英海特工程咨询(北京)有限公司
机电顾问 | 铂诺客工程咨询(北京)有限公司
灯光设计 | 深圳市汉都灯光设计顾问有限公司
室内植物设计 | 杭州物喜文化创意有限公司
大森设计成立于 2012 年,专注于地产、办公、零售、长租、医养等空间设计,并不断向建筑、景观、产品设计领域深入。森之广袤,能包容万物,我们善于透过客户视角洞悉市场需求的关键所在,积极回应市场,以更包容的“大设计”视野在艺术与商业之间找到平衡。
Tel: 0755 33989118
Add: 深圳市南山区香年广场 A 座 20 楼 2002 室
客服
消息
收藏
下载
最近











































