查看完整案例

收藏

下载
欧盟委员会和密斯凡德罗基金会宣布, Lacol 设计的 La Borda 合作住宅获得了 2022 年欧盟当代建筑奖——密斯凡德罗奖。2022 年新兴建筑奖由 Lacol 授予 La Borda 合作住宅在巴塞罗那,因其“共享资源和能力的共同所有权和共同管理”而受到赞扬。
La Borda 住房合作社是一个由用户自行组织的开发项目,旨在通过集体结构获得体面的、非投机性的住房,将其使用价值置于中心
位置。
住房合作社的想法诞生于 2012 年,作为 Can Batlló 的一个项目,该项目由社区推动,在工业场所的恢复过程中,以及巴塞罗那Sants 社区的社区和合作结构。
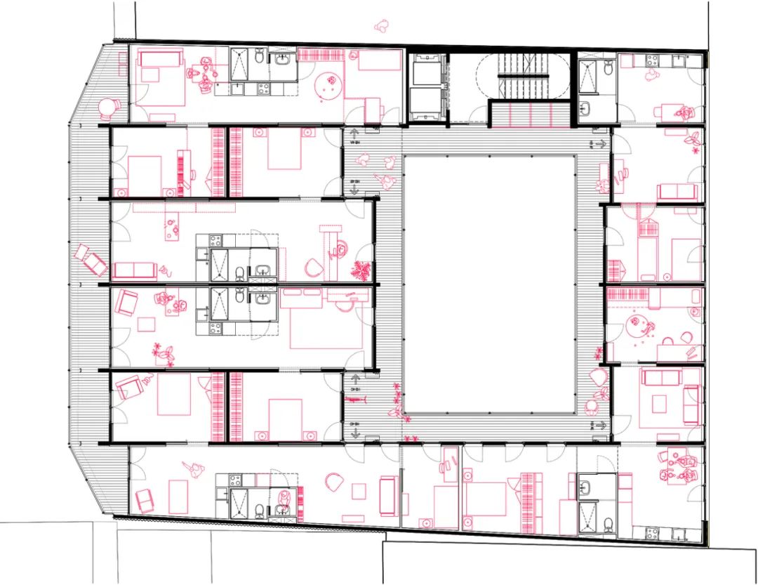
该项目位于社会住房公共土地上,租赁期为75年。位于 Constitució 街,位于 Can Batlló 工业区的交界处,正面朝向现有的 La Bordeta 社区。
该项目有三个基本和横截面原则,(1)重新定义集体住房计划。该建筑方案提出了 28 个单元(40、60 和 75 平方米)和社区空间,可以将生活从私人空间延伸到公共空间,以增强社区生活。
这些空间是:厨房-餐厅、洗衣房、多用途空间、客人空间、健康和护理空间、每个工厂的存储空间,以及庭院和屋顶等外部和半外部空间。所有这些都围绕着一个中央庭院进行连接,这是一个让人联想到“畜栏”的大型关系空间,这是西班牙中部和南部地区流行的住房类型。
(2) 可持续性和环境质量。目标是在建筑工作和生命周期中尽可能降低对环境的影响,最重要的是,以最少的消耗实现家庭舒适,降低获得住房的总体成本并消除能源匮乏的可能性用户之间。
我们坚信最好的策略是减少对建筑所有环境载体(能源、水、材料和废物)的初始需求,特别是在能源层面,我们优先考虑被动策略以最大限度地利用现有资源。
(3)用户参与。自我推销和随后的集体管理意味着未来用户对过程(设计、建造和使用)的参与是项目最重要和差异化的变量,产生了与他们及其特定需求会面和项目的机会。
在设计过程中,通过建筑委员会明确参与,这是技术团队和大会之间的纽带,负责准备建筑工作坊。我们进行了一场虚构的研讨会、计划、项目战略、环境战略、类型学和会议,以验证初步项目。
- END -
几朵设计丨绿色主义艺术,生态美学下的城市花园
24㎡超小型住宅,巧妙有效布局,生活精致又轻松
占地仅40㎡的小别墅,太惊艳了!
693㎡ 大平层,远看是别墅,其实底部全架空!
长按即可前往关注 : )
客服
消息
收藏
下载
最近





































