查看完整案例

收藏

下载
白羽我们提出“化整为零”施工策略,把建筑物拆解成可以同时施工的两部分:底部是混凝土结构的儿童展厅,平沿河步道的标高;上部是钢结构的成果展厅及公共教育用房,架空于河岸步道,连接马路标高的主广场。感谢 WAU 建筑事务所。
项目位于江门蓬江区天沙河边,展厅作为蓬江治水成果的集中展示,是对外治水环保科普、治水沙龙交流的重要场所,同时是一年一度的龙舟赛的主席台。业主希望在 2021 年的春节后的世界水日开放给市民,从设计到建成开放只有 8 个月时间,其中还包含春节假期及一个半月的室内布展。这是一个快速建造的建筑,是一个施工策略占主导的项目。
▲建筑沿河外观
©白羽
▲鸟瞰©白羽
我们提出“化整为零”施工策略,把建筑物拆解成可以同时施工的两部分:底部是混凝土结构的儿童展厅,平沿河步道的标高;上部是钢结构的成果展厅及公共教育用房,架空于河岸步道,连接马路标高的主广场。
▲顶视图
©白羽
▲建筑底部为混凝土结构,上部为钢结构
©白羽
▲架空步道©白羽
因为防汛的要求,我们在底部采用混凝土剪力墙结构,200 平米的儿童展厅在被拆除的旧建筑范围内,远离河岸留出大面积的步道空间,可减少土方开挖,更主要的是有现成的施工面,节省时间。同时,部分功能位于河岸标高,可以削减主广场标高的建筑体量,保持城市界面与河流之间的亲切尺度感。
混凝土结构与下沉庭院©白羽
建筑前的广场
©白羽
▲水景和通往展厅的步道
©白羽
▲展厅入口©白羽
上部则采用标准重复单元的钢结构,半个月的桩基础施工结束后,工厂预制的结构部件刚好可以运达现场安装。
▲结构图解©WAU 建筑事务所
柱跨为 2.4 米,以 0.6 米为模数,可以让固定家具的板材、地砖、门窗、栏杆及墙板等非常兼容,保证快速施工的品控。悬浮的上部轻巧地避开原有的景观步道及树。建筑的上部与下部在平面上错开,只有楼梯连接,也是唯一的结构连接。
▲从架空建筑底部看向河流
©白羽
▲楼梯连接上下部平面
©白羽
▲仰望沿河的钢结构立面
©白羽
▲架空层避开原有步道
©白羽
▲错开的结构
©白羽
上层步道 ©白羽
▲观景平台
©白羽
▲步道和结构细部©白羽
架空的建筑给河岸公园的人们提供一个阴凉的休憩空间。整齐的外露斜钢柱会让人联想到龙舟赛的划桨,悬浮的上部犹如飘于水面的小舟。位于顶层的公共教育空间的落地门可以完全打开,可供观赏龙舟赛。
顶层教育空间,落地门可以完全打开©白羽。因我们设计时主动考虑施工步骤及周期,确保项目在非常短的时间完成。落成一年,这里成为主要的儿童环境治理科普教育基地。
▲施工过程
©WAU 建筑事务所
项目图纸
▲底层平面图
©WAU 建筑事务所
▲二层平面
©WAU 建筑事务所
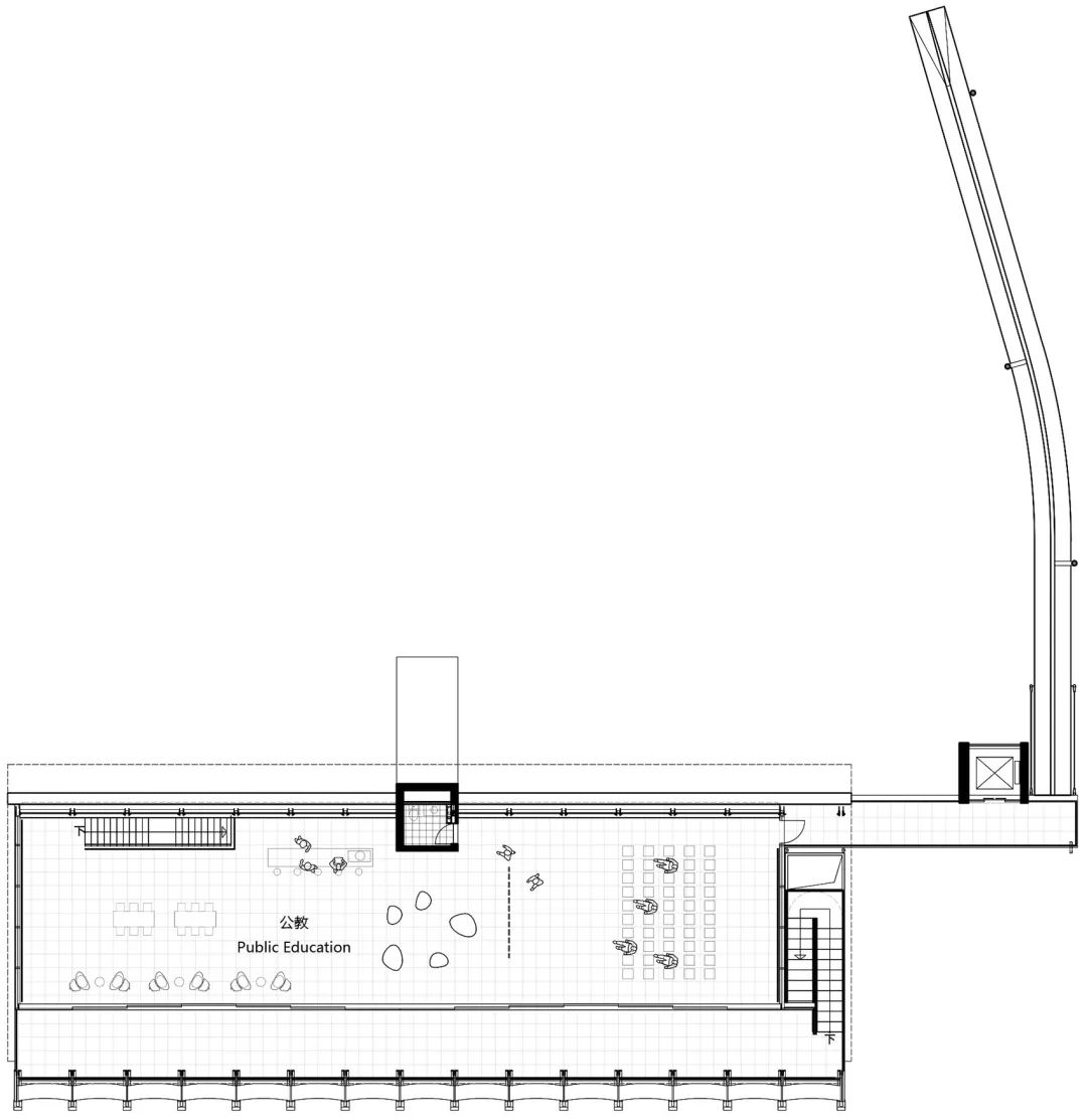
▲三层平面图
©WAU 建筑事务所
▲剖面图
©WAU 建筑事务所
项目名称:蓬江智水展示中心
设计方:WAU 建筑事务所
项目设计&完成年份:2020/2021
主创:吴林寿,赵向莹
团队:张玮莹,罗倩萍
项目地址:广东江门
建筑面积:900㎡
摄影版权:白羽
结构:陈招智
客服
消息
收藏
下载
最近




























