查看完整案例


收藏

下载
大成建设(TaiseiCorporation)是日本五大综合建设公司之一,由二战前大仓财阀的核心企业演变而来,TAISEI DESIGN Planners Architects - Engineers作为旗下的设计部门,承接了许多日本境内的建筑项目,并在可持续和低能耗的建造及技术探索等方面有着巨大的贡献。
Fujita Museum
明治维新之后,为了避免收藏家藤田传三郎先生的艺术作品避免流离海外或遭受破坏,藤田家族将位于大阪城脚下的藤田传三郎宅邸捐赠给了政府,并修建了一座服务于大众的博物馆。作为连接历史与未来的“知识仓库”,藤田美术馆自1954年开放以来,深受大众欢迎,以至成为当地的文化艺术传播基地。
随着时代的发展,全新的建造技术可以为收藏品提供更专业化的保护环境,因此,TAISEI DESIGN受邀对美术馆进行重建,并以打造“一个可以体验博物馆自身历史的博物馆”为目标,传扬藤田家族的理念和思想。藤田传三郎的宅邸包含了一个大型的花园,TAISEI DESIGN与当地政府反复协商后,拆除了其与街道的围栏界面,令博物馆与周边环境无缝衔接。
更新后的博物馆与藤田美术馆曾经的仓库有着相似的结构形式,钢结构成为包括入口在内的部分空间的主要结构形式,并通过钢框架将可能受到的地震力传递至承重的混凝土墙,使横截面的梁柱结构最小化,避免与地下的大阪地铁涵洞结构产生冲突。
在前期规划时,TAISEI DESIGN通过实地勘测确定了场地的室内温度、湿度和气流的走向,通过引入基于热感指数的空调控制系统,保证室内温湿的平衡。与此同时,TAISEI DESIGN还在博物馆后花园中心的茶室周边设计了一片茶园和竹林,为参观者提供深入自然山林般沉浸式的奉茶体验。
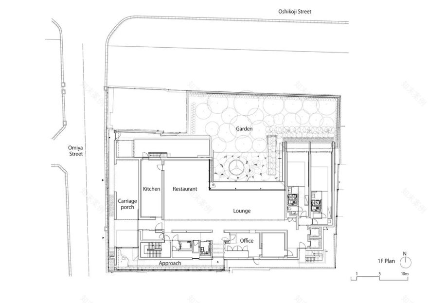
Garrya Nijo Castle KyotoHotel
位于京都的二条御所修建于1603年,是江户幕府时期政治权力的象征,如今已成为历史建筑群的一部分而得到了妥善的保护。二条御所水庭周边的植被形成了一条高低错落、变化丰富的林冠线,成为周边建筑争相取景的最佳视线焦点。
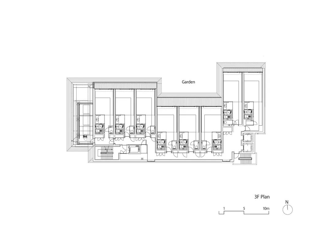
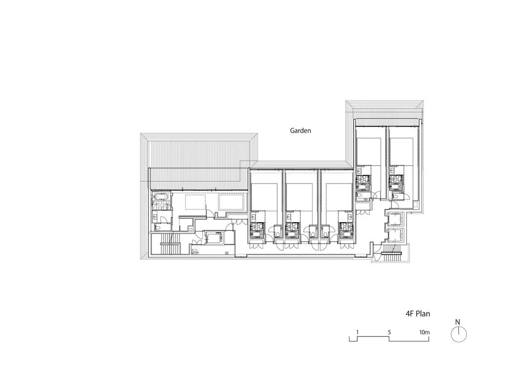
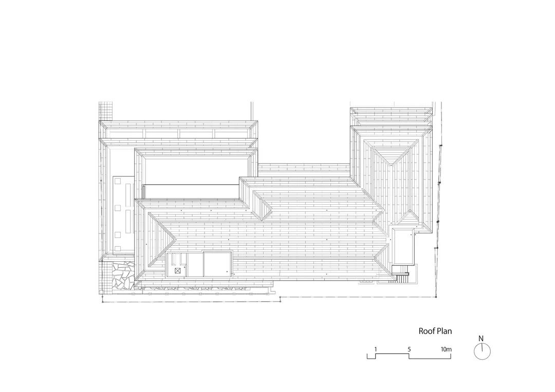
Garrya Nijo Castle Kyoto酒店就坐落在毗邻二条御所南侧的场地上,为客人提供25间不同形式的客房和套房。为了使每个房间都能充分欣赏到御所的景观,TAISEI DESIGN从二条御所和桂离宫的“雁阵”形平面中汲取灵感,通过建筑的退让处理为花园和水池提供了足够的余地和空间。
酒店采用钢筋混凝土的平挑结构营造了一个没有柱梁的纯粹空间,除了北侧的二层及以上空间外,酒店的每一侧都建有钢筋混凝土的墙体,并通过正交的钢柱来支撑楼上的空间。TAISEI DESIGN在室内布置了一个随季节变化的盆景装置,与御所的花园相呼应,将“sanshi-suimei”引入室内。(sanshi-suimei指纯净美丽的山水景观)
考虑到设备节能及环境消音的需求,酒店的内部采用了高效的冷热泵机组空调和潜热回收热水器,并利用吸音板和消音的特殊装置等措施降低对周边环境的影响,以保证历史街区的原始风貌。
撰文: YouChuan
建筑 | 室内 | 设计 | 艺术
客服
消息
收藏
下载
最近

























































