查看完整案例

收藏

下载
你可能还喜欢
换一换2022 月 4 月 26 日,尼克建筑设计集团(Nickl & Partner Architekten AG)+中机国际工程设计研究院有限责任公司设计的深圳龙岗区养老护理院重新选址建设工程设计中标。设计灵感来源于“森林魔方“概念。建设单位为深圳市龙岗区建筑工务署。
项目视频
项目鸟瞰图
设计紧紧围绕顺光生长、垂直森林、立体社区三大理念,不光满足为广东省打造首个充满阳光、充满绿植、充满欢声笑语的医养融合示范性标杆——森林魔方,更是富有创新地引领了具有时代性和前瞻性的综合养老护理院设计探索,为未来深圳养老建筑设计打造一个高起点的开篇。
森林之城
对面住宅视觉形象
顺光生长
建筑设计从来都离不开光的设计,尤其老年人建筑,对阳光又有着独特的喜爱,因此阳光成为设计师设计的第一要素。从而衍生出第一个设计理念——顺光生长,让阳光来指引建筑形体的生成。
顺光生长
为满足基地周边建筑日照诉求,以最合理日照为切入点,推导出退台式形体。并结合城市空间及视线通廊,建筑整体采用螺旋上升形体,让建筑顺着阳光自由生长。
核心因素推导
顺光生长理念引入。基于螺旋生长的体块,赋予其绿植空间,利用绿色植物旺盛生命力的特点,创造向阳而生的整体意境和氛围。
顺光生长理念引入
屋顶夕阳效果图
垂直森林
采菊东篱下,悠然见南山,是传统国人对老年退休生活的理想向往。尤其是住进护理院的每个老人,受限于物理空间的限制,对接触大自然的愿望会更加的迫切和渴望。结合项目用地紧张,绿地和活动场地显得严重不足。从而衍生出第二个设计理念——垂直森林。
垂直森林
沿街城市形象
老人行动不便,通过错落有致露台的引入,让立面露台获取更多垂直绿化,老人足不出户,就可以亲近大自然和沐浴阳光;通过建筑的层层退台来获取更多的无障碍同层活动平台,同一护理单元的老人获得小小的归属感,老人可以组织他们力所能及、小团队偏好的户外休闲活动,照顾他们偏好的花花草草。
同时,底层架空让绿色渗透进入建筑内部空间,让绿色沿着建筑缓缓攀爬。
垂直森林理念引入
垂直森林效果
立体社区
老年生活,比其他年龄人群更迫切需要丰富的社交和活动。传统养老院封闭冷清,老人最易感到孤独。从而衍生出第三个设计理念——立体社区。
立体社区
架空入口大厅效果图
入口大厅效果图
公共庭院效果图
建筑空间至下而上按照三级私密层级进行划分:底层架空社区,开放共享空间,引入外部社区人气;中层大平台半私密立体社区空间,为院内老人提供丰富社交活动场所;顶部私密居住养老空间,为老人提供安静休憩疗养空间。层级分明的立体社区架构,既满足了老年人的社交需求,又在很大程度上保护了老年的隐私与安全。
三级私密层级分析:在退台的基础上内凹形成庭院,与塔楼退台成为一整体。同时,内部庭院成为老人的康复花园,老人在建筑内部即可享受自然与生态的宜人景色。
内聚空间定位
项目注重与城市关系的互动,采用层层退台、空中花园、底层架空和局部架空的形式等,加强与周边环境的互动,以带动周边区域活力,创造多样化的老人活动空间与体验。
城市关系与互动
魔方之城
最终设计以标准化居室体块为设计母题——“魔方”,对魔方单元进行精细化、无障碍化、温馨化、标准化打造。通过魔方单元的穿插组合,合理的功能植入,形成一座错落有致的魔方之城。
魔方主题引入
屋顶平台效果图
错落的魔方立面
合理的功能植入
建筑形体生成
温馨的老人康养之家
平面布局:方案打破传统养老护理院的布局模式,一二层对社会和城市开放,三层以上则为内部老人提供安全和隐私保护的环境,将开放与封闭相互协调统一,探索未来养老院运营的创新模式,打造具有开放性、社会性的高品质养老护理院。
该养老护理院访客包括普通访客、社交访客和代际交流访客,访客活动范围为一至二层,充分保护了内部老人的隐私和安全。养老护理院流线设计高效合理,医护流线、办公流线、后勤流线互不干扰,针对老年人和新冠疫情的背景,设置专门的急救流线和疫情突发控制流线,对于处理突发事故和疫情具有完善的应对措施。
首层开放空间包括架空空间、入住服务用房、咖啡厅和员工休息区等,架空空间可提供等候、休闲、展示等多样化功能,吸引周边居民及市民来此活动,充分激活城市空间活力,优化城市空间质量。
首层平面图
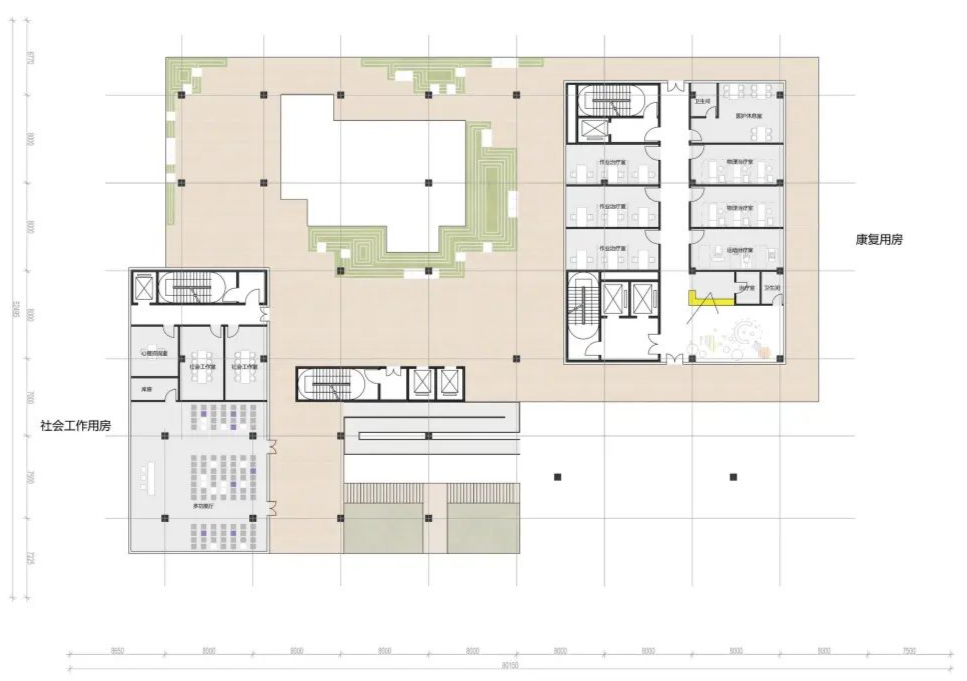
二层为社会工作用房和康复用房,社会工作用房中的多功能厅可为养老院内部及周边学校等提供活动场所,加强与周边居民的联系。康复用房则是相对封闭的,用于为内部养老院的老人提供服务。
二层平面图
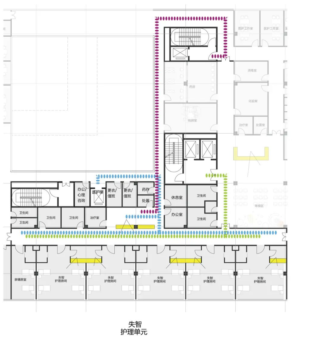
三层功能用房包括行政办公用房、食堂、卫生保健用房和失智护理单元。失智老人护理单元充分考虑失智老人的心理行为特点,参考德国养老护理院布局模式布置四人间,每间居室有特定护士 24 小时监管,保证了管理的有效性和安全性。
三层平面图
四层空间布局灵活,设置大跑道环绕布置,为老人提供充足的休闲散步空间。跑道内布置娱乐用房,包括亲情网络室、阅览室、书画室、棋牌室、会见聊天厅,手工室等各类功能空间,满足不同老人的各项活动需求。
四层平面图
剖面图
养老专项:护理单元设计充分考虑老年人的需求和行为,老年人可乘坐电梯方便到达各个楼层。每层护理单元设置多功能起居厅、养护区餐厅等,并配有户外活动区域。护士站采用智能化监护系统,可随时随地监护各居室老人情况。老人流线并与医护人员、后勤人员流线分开,互不干扰。
护理单元流线
卫生保健用房流线
失智护理单元流线
景观专项:景观设计多维立体、由地面到顶层,依据各层使用人群及功能需求的差异,营造不同主题的生活场景。由下至上:开放到私密、护理到自理。由局部到整体:采用相同的设计逻辑,营造从局部到整体统一和谐的景观设计语言。
共享平台景观设计
屋顶花园景观设计
景观设计中重点关注无障碍景观,设计尺寸依照无障碍考虑,景观设置体现无障碍细节,包括轮椅通行与回转、无障碍坡道、扶手设置、无障碍电梯。
地面景观无障碍设计
共享平台景观无障碍设计
屋顶平台景观无障碍设计
设计师通过错落有致的屋顶变化,营造了丰富的第五立面,为城市立体景观打造了一座森林之城。
第五立面
项目建成后可有效解决龙岗区老人数量日益增长造成的养老床位缺口问题,多维度实现“老有颐养”,不断增强长者的获得感与幸福感,实现公办养老机构转型升级广东新模式,打造首个区级“医养融合”示范性标杆。整个养老护理院由下而上、自内而外,其功能性、需求性、景观性相互协调统一。
项目区位:项目位于深圳市龙岗区平湖旧墟镇 GX01 地块,平湖街道平安大道东侧,紧邻新南路,与轨道站点(10 号线平湖站)距离 500 米,交通便捷。项目周边均为建成区,北侧、西侧均为佳兆业金御雅园,南侧为旧村、幼儿园及平湖小学。占地面积为 5032 平方米,总建筑面积约 27000 平方米,建设内容主要包括 350 床养老床位、生活用房、康复与医疗用房、文娱与健身用房、管理服务用房。最大单体建筑面积为 2 万平方米以上。
客服
消息
收藏
下载
最近











































