查看完整案例


收藏

下载
藏心住所
致虚极,守静笃,万物并作,吾以观复
——老子《道德经》
世间万物,只有静下心来一遍又一遍反复、仔细观察,才能认清它的本质,此谓“观复”。而繁华都市里穿梭的心灵,被无限数的重担不断叠加,变得不再恬淡、虚明,观物不得其正,行事则失其常。或许,客观环境的塑造,能够使心回复到宁静的状态,重拾生活之芳馥。
本案位于花城广州,居者夫妇是极为温文尔雅之人,喜读历史、品文化、聆音乐,雅趣盎然。他们对于居住空间的定义,除了追求功能上满足一家人生活的便捷以及解决宠物猫的宅养需求之外,更希望它会是一个可以观生活、复雅事、安抚心灵的场域,于是,我们以匠人的情怀、信念以及态度,为居者一家定制一处藏心住所。
01
于简静与清欢间
领悟生命的真实
-
古人云:“高堂素壁,无舒卷之劳,明窗净几,有坐卧之安。”从玄关迈入客厅,大面积木质家具的运用传达着宁静和清欢,精致摆物寄托了居者对生活的热爱,设计师巧妙地将桃木、布艺与皮质椅子融合嵌入,满足居者在不同季节、不同生活场景下的需求。空间简约不招摇,材质和色彩之间轻柔过渡,平衡出无限的舒适,再以艺术品植入,为居者提供心灵上的享受。
为保持空间的利落,设计师索性将电视位抹除,以投影仪的形式满足居者观影需求。驻足一侧大量客厅,满足雅趣物件令人静赏。牌匾、简画、木柜、木书架乃至落地瓶,彰显着沉着内敛的国风文化,在高贵与亲和间自然过渡。沙发一侧放置立式置物架,收纳居者收藏的来自世界各地的流行乐、古典乐等碟盘,使原本典雅的空间氛围多了些许活力。
超大的落地窗将室内外联通,中式气韵元素与洒落进来的阳光共同构筑一幅雅致诗意的画卷。静坐与景观阳台,享受空间自由不受拘束的自然状态,风吹拂鬓发的声音,清晨鸟鸣的声音,猫咪踱步的声音,一应入耳。此刻尽可于简静与清欢间,观复千年美学的流转,领悟生命的真实。
02
和岁月约一场
深挚且平静的交谈
-
迈入餐厅场域,没有太多造作的修饰与约束,简制的桌椅、灯饰轻柔点缀,在细节处体现出对文化的极致追求。简约空间塑造与赫然入目佛像挂画相衬,令人不仅想起禅宗后世的惯用语“还我本来面目”,这正传达者居者对于归复内心宁静状态,重拾生活芳馥的禅思。再多添一抹绿色自然的惊艳,以此增强空间的宽容度,让空间不仅仅是享受美食的场域,更是享受与岁月真挚且平静交谈的轮回时光。
秉持 “有品质的简朴,有节制的奢华”的品质理念,玄关至餐厅空间中选用大量坚实的木质与冷静的白色达成既冲突又和谐的平衡感,而厨房简洁的线条,精良的材质搭配,质朴的肌理、淡雅的色彩,为生活平添许多悠闲和禅意。在这里,凝聚一家三口与小宠物的情感,承载关于家的春秋冬夏。
03
将喜爱溶于生活
让生活源于热爱
-
过道空间的设计处处透露着设计师的小心思,深绿色的空间基调沉稳且养目,满墙艺术挂画与艺术品收纳架相衬,完美将居者喜爱的人文特点演变为空间符号,将生活的热爱浓缩在其中,展现出了一个艺术与生活共生共融的境象。
如果能在日复一日的浮沉奔波中,偶尔放松精神,静享所爱,实在难得之至。书房一整面墙打造L型书架,置满居者喜爱的历史书刊,呈现出更加规整的空间感。木质家具配合浓郁的书香气息,让阅读空间也优雅、精致,并充满生活情调。远离喧嚣,静坐书房,看一本书,品一杯茶,隔离外事的烦杂,鉴赏内心的喜爱与享受难得的宁静。
设计师认为,猫咪不是这个空间的附属,而是与人一样对等的“空间使用者”,所以大胆将飘窗的位置设置成猫咪城堡,搭配爬架,满足猫咪磨爪、跑酷、高睡等猫咪所热爱的行为。而寝居环境的设计,在浅蓝的色彩中解锁一场拂去疲惫的酣睡,宫廷风黄色圆凳,韵味悠长,家具木香沁人,清幽萦绕,方寸之间的美与静宛如一幅淡雅闲适的画卷。
沉稳端庄是男主人房最为迷人之处,没有繁复华丽的家具,空间巧妙的运用、精致细腻的设计风格将简约优雅的氛围渲染。儿童房钢琴与艺术挂画相融,巧妙地将床铺进行临窗设置,近揽苍穹与大地美景,辉映空间孩子天马行空的思维感想,艺术的热爱在这里延伸,诗意的细胞在这里得到释放。
卫浴空间给人的印象总是浊气的,设计师取纳浅色、深绿色调以及镜像所赋予的秩序与空灵,使主人进入空间时心情得以愉悦放松。而强采光设计,是居者视野不被框定在室内的固有物上,而是更多关注“赏心悦目”的室外光景。
从晨光熹微到夜幕四合,从春季生机到冬日侘寂,循回往复,空间总是收录着生活的美好与雅趣。我们以匠人的情怀、信念以及态度,为居者一家定制可以观生活、复雅事、安抚心灵的场域,久居于此,慢慢领悟生命的真实、深挚与岁月交谈、让生活所见皆热爱!
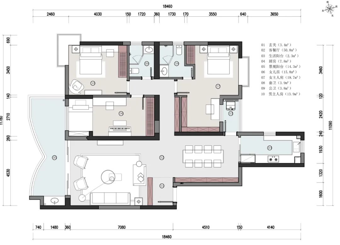
平面布置图
项目地点 | 中国·广州
设计机构 | 从容设计
设计主创 | 吕媛媛
项目面积 | 165㎡
竣工时间 | 2021.11
项目摄影 | RICCI
主要材料 | 釉面砖,户外木,哑光木饰面
客服
消息
收藏
下载
最近
























