查看完整案例


收藏

下载

翻译
Architects:Noname 29
Year :2020
Manufacturers : Piedra palomaPiedra paloma
Natural Stone : Incom Pastor
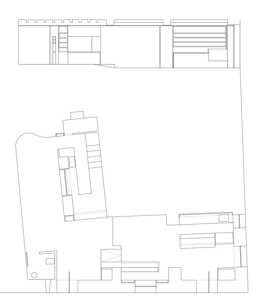
Five hundred kilos of Calatorao stones, stainless steel 3mx1.5m plates, solid Spanish walnut wood 50 mm thick. Thickness is the word that would define the proposal and the “raw” presence of the material, responsible for building its friendly atmosphere. Five large blocks of stone, which seem to float, build a fluctuating "magma".
Space, alongside polished steel, escapes between these stones towards infinity, as if, once inside the premises, you could lose yourself beyond its limits, and escape into nothingness. Although, you don't even try... These powerful blocks, in addition to articulating the space, take you to the heart, hide the structural elements and contain all the necessary machinery for the restaurant to work. The "cavern", which for years was this restaurant, is transformed into a "magic box" which, however, maintains the "soul" of the place.
The intervention on the façade, in a building from the end of the 19th century of which no plans are preserved, is the result of an almost archaeological investigation to discover its origin. The facade of the premises has undergone different interventions throughout history, and the action seeks to re-establish the closest thing to what the original building could have been. The façade has been cleaned of foreign elements, hollows have been restored following the traces of the old wooden landings, the lost massifs have been rebuilt, following the laws of the building, and a lime mortar has been laid that worthily recovers the base of the building. In this way, the façade recovers the original plan and is closer to the massive appearance of the time of its construction, restoring the power of the original image, as well as the slenderness of the openings, so characteristic of the ground floors of historical architecture from Alicante.
In this proposal, the work is claimed as a "factory", improvising and solving in situ with the trades on a continuous day-to-day basis, drawing details, adjusting layouts, and comparing samples. Exciting day-to-day with a project that does not have an image final, why a final image? The process is committed, and the construction is humanized so that each stone has its name.
The materials have their own life, and identity: each stone, each steel plate, each wooden board... each one of them is precisely measured on-site, and templates are drawn, cut and later find their place on the site. Every detail is taken care of in a work without details apparent. A technic ceiling without diffusers, without speakers, without detectors, and a “night owl” lighting made of blown glass, with a presence but then disappears. Once seated at the table, all this disappears so that we can focus on the wonderful hamburgers
▼项目更多图片
客服
消息
收藏
下载
最近


















