查看完整案例

收藏

下载
亲子住宅
丰心设计〡中国·台中趣味亲子大平层住宅不论是秋千摆荡时的爽朗笑声,抑或是静心阅读的书香时光,每个时刻都揉入了一家人紧密相连的互动情感。这是屋主委由丰心设计打理规划的家宅,简约白净佐入木质语汇,映现恬雅舒适的家宅轮廓,刻意将电视墙隐藏起来,留下宽敞环境让小孩玩耍嬉戏。
女主人深知运动与培养孩子自律的重要性,体验生活、感知生活的细节与家人间温暖而亲密交流,有助于成长期幼儿的各方面发展,由「家」这个起点出发,陪伴彼此一段丰富的旅程。
同样育有子女的设计总监深知屋主的用心,以同为人母的细腻心思,梳理需求,蕴藏体贴一家大小的流畅动线与敞朗布局,构筑一处友善幼儿并饶富趣味的宅邸。
回应屋主希望小孩在家中远离3C,打破过往认定电视墙为客厅主体的常规,巧用拉门藏起影音渲染,回归纯净无杂的公领域,还给居者不被打扰的家庭日常。
玄关架设的秋千,是小孩们一回到家的运动天地,一旁偌大的空地,也能设置室内篮球架,常见爸爸陪着一起打球的欢乐画面。
充分利用琐碎畸零处,于玄关一侧嵌入设置零食柜,以内凹+层板方式直立陈列展示,这些具有奖励性质的小点心是给孩子们的一点鼓励。
客厅与餐桌间的柜体分界线,贴心地降低高度,设计为让小朋友易拿取物件、书本与玩具等,自主的好习惯在惯常节奏中自然养成。
旋身一望,地坪悄悄自建商原本附的亮面抛光石英砖,转换为散发温润感的超耐磨木地板,略带深褐色的底蕴,自带一股稳定人心的力量,木系线条晕染为公领域的厚实基底。轻浅木纹门片以巴士门五金开合式巧妙遮蔽电视,女主人希望让幼儿尽量避开影音声光,保留宽敞领地弹性灵活运用,成排落地的抽屉收纳柜,同样考量以适合幼童身高,便于孩儿自行取放玩具等物品。
紧扣着保持通畅无阻视感的核心轴线,以低矮柜取代沙发背墙,不仅扩增储纳能量,也利用长型柜体划分出隐形分野,塑造逻辑分明的流畅动线。融入多功能复合式概念,此区既是餐厅也是男主人办公的地方,以一席订制长方桌落定,特殊的「折角」简易区分出餐叙与公务的差别,小朋友在用餐之余也能在这做美术劳作。
原本素白的墙面铺上织纹壁纸,沉稳的棕褐色系蕴含稳敛气息,整片书墙妆点家中的垂直向度,综合型空柜与抽屉机能,满足主人丰富藏书与展列值得纪念的小物。
移步迈向睡眠区,诉求简洁优雅的新古典风格,班杰明摩尔漆刷出淡雅蓝色调,具有耐刮、好清洁的特性,柔和雅韵中揉植沉静氛围,宁谧睡卧境地伴香甜入梦。
精心丈量尺寸与仔细分配收纳区域的系统柜,是主人储藏衣物的好帮手,随着拼接双色窗帘漫进的煦煦日光,床头一盏典雅壁灯,泛起金属光泽互相辉映。
另一侧以浅色木皮框塑出卧榻区,睡前亲子谈心共读相伴,创造全家共享的亲密空间,浓浓亲子情洋溢于朗读笑语声间,上方镶嵌长条LED灯补足灯源。
本案规划两间儿童房,恰是一双儿女各自的小天地,以油漆的手法随性表现女孩柔和与男孩自由奔放的气氛,同时挹注圆弧、曲线等元素,活络视觉感官,增添活泼动感。
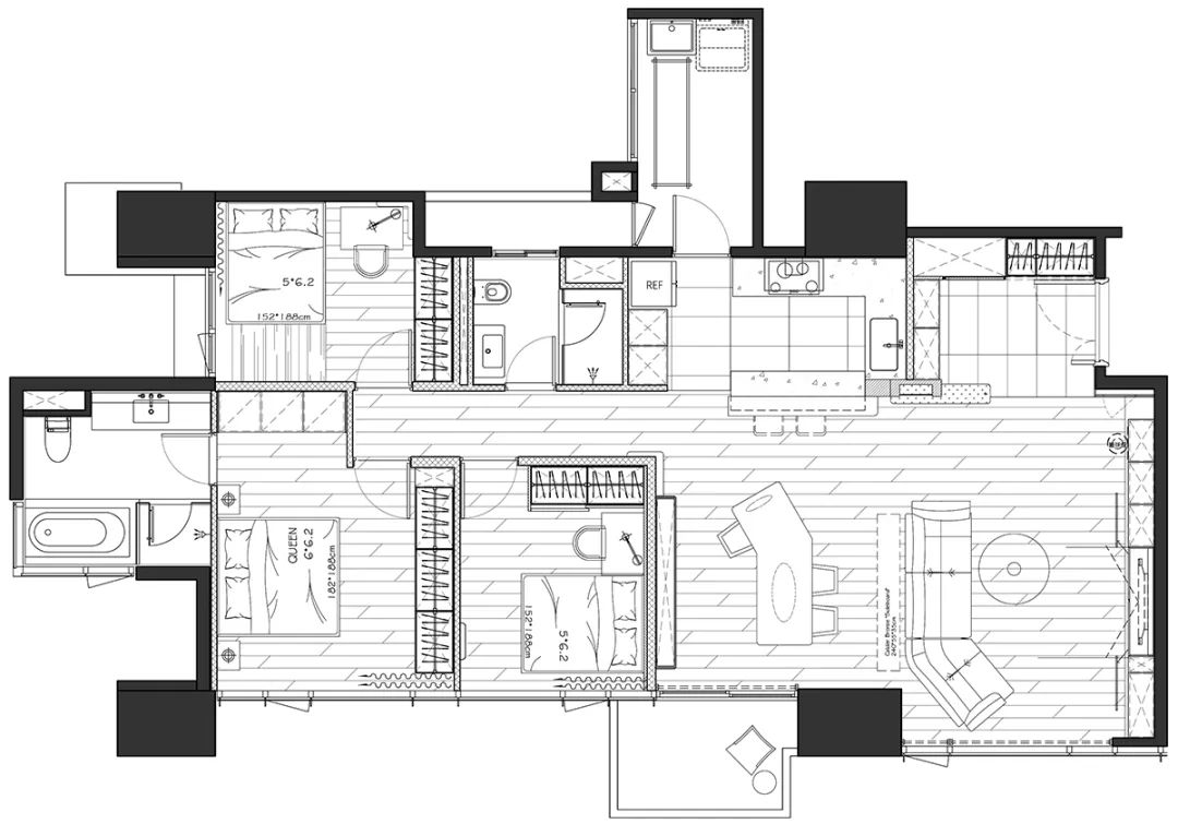
△平面图
本文为全球设计风向原创/整理内容,包括且不限于文章标题、文字内容、排版形式。
联 系 我 们
C O N T A C T U S
&高品质供应商
编辑/总监
设计服务咨询&找设计师
编辑推荐
300㎡,北京年轻男演员的美学小别墅
这样的家,像美术馆一样!
55㎡,宁静优雅、诗意小宅!
最小宅--分享全球最美小宅!我们介绍设计与功能完美结合的典范.
更多优秀内容
客服
消息
收藏
下载
最近































