查看完整案例


收藏

下载
“二十世纪将会是第一个放弃将结构作为建筑形式来源的世纪。”——Rudolph Schindler
出生于维也纳的鲁道夫·迈克尔·辛德勒 (Rudolph Michael Schindler)是一位善于将理论与实践相结合的激进派建筑师,当他还是建筑系的学生时,他就预想在新的材料和技术的支持下,未来的建筑师将摆脱结构技术的束缚,通过合理的自然光线和动人的情绪感知来自由的表达和设计空间。
The Schlessinger Residence
在辛德勒的职业建筑师生涯中,赖特(Frank Lloyd Wright)是他难以避而不谈的关键人物。从1918年开始,他与赖特合作了帝国饭店(the Imperial Hotel)、蜀葵之家(Hollyhock House)、半透明住宅(translucent house)等在内的一系列私人住宅,但由于1931年辛德勒与赖特的关系决裂,关于这些作品的所属人问题产生了很大争议,这也促使了辛德勒开始自己独立的建筑事业。
Bubeshko Apartments
辛德勒将自己独特的建筑形式称为“Space architecture”,他后期专注于住宅的建筑和空间设计,职业的一生大约建成了150座单户住宅。此外,为了降低建筑的成本,辛德勒研发了一种使用灰泥和木框架等廉价材料建造现代建筑的方法,并在许多项目中尝试用人字形屋顶来调整他的木框架结构,实现他对空间连续性的构想。
Rodriguez House
Lovell Beach House
1953年,辛德勒病逝。1960年美国建筑史学家Esther McCoy将他列为加州具有影响力和贡献的五位建筑师之一,他才渐渐为新一代建筑师所熟悉。目前,辛德勒的作品Mackey公寓和Schindler住宅由the Friends of the Schindler House(FOSH)和MAK中心负责维护,供大众参观、学习和研究。
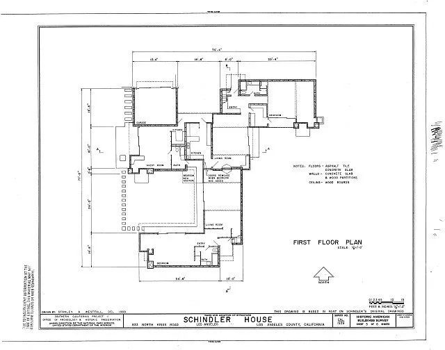
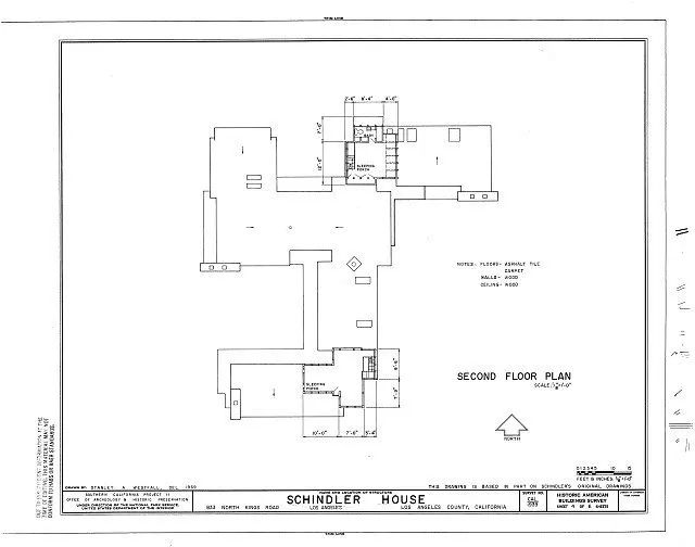
Schindler House
辛德勒自宅被公认为美国或欧洲建造的第一座现代性质的住宅,而它也具备了被称为杰作的标准和特性。无论是材料、建筑结构,还是它的室内外空间关系和居住的社会关系,都完全的摒弃了传统住宅的设计模式,为辛德勒和他的妻子所推崇的“修正主义”生活方式建造了一个与之相匹配的住宅空间。
辛德勒自宅始建于1921年,当时的辛德勒夫妇刚刚来到南加州,在约塞米蒂国家公园露营之后,被风景迤逦的南加州所吸引,并决定移居于此,随后在国王路买下了这片用于建造住宅的土地。辛德勒花了两个月的时间来进行方案设计,于1922年竣工完成。
这座自宅是公共生活的实验场地,为辛德勒夫妇以及他们的朋友Chace夫妇所共享,室内包含了四人独立的工作室、一个公共厨房、一间客用工作室和车库,住宅中没有设置常规的卧室、餐厅和客厅,仅在露天门廊中加入了名为“sleeping baskets”的休息空间。浴室、储物空间等附属空间位于两个L型体块的转角处,便于使用。
住宅的结构延续了辛德勒一贯的1.2*1.2*1.2m(即4*4*4英尺)比例系统,采用与钢筋衔接的混凝土标准板撑起整个空间,并用红木和玻璃来对立面进行装饰,调节室内的日常光照。
每间独立的工作室都有用来采光的天窗,以此强调室内与外部的连接。
住宅与景观的水平界面处理有着赖特作品的痕迹,半透明的推拉门又暗含了日本传统建筑的韵味,辛德勒在这个作品中融入了他经验的积累、学习到的思想理念和建造技术,他在学生时代所宣言的“建筑将由空间、自然光照和情绪来定义”逐渐成为显而易见的事实。
对于1920年代的欧美国家来说,辛德勒的设计过于激进,因此在竣工十年后住宅的设计图纸才对外公布。在辛德勒夫人去世后,这座出色的自宅交由FOSH代管,并在1994年与维也纳奥地利应用艺术博物馆MAK合作,将其作为MAK的分部进行运营,为公众提供展览、音乐会、讲座和其他公共活动,为建筑注入新的生命活力。
撰文: YouChuan
版权:Rudolph Schindler
建筑 | 室内 | 设计 | 艺术
客服
消息
收藏
下载
最近










































