查看完整案例


收藏

下载
Belridge 中学表演艺术中心的设计核心旨在为富有戏剧性的室内空间引入动态的户外体验,将观众从被动的观察者转变为具有积极性与自主性的参与者。原建筑由西澳大利亚建筑管理局于 1994 年设计。如今,iredale pedersen hook 事务所受当地财政部门委托,为该艺术中心增加了一处新的表演艺术剧院,并对老剧院进行翻新与扩建,此外,还升级了艺术中心现有的设施,同时梳理出便捷清晰的交通流线。
The Belridge Secondary College Performing Arts Centre transforms the drama of the interior into a dynamic and engaging exterior experience that shifts the audience from passive observer into excited and willing participant. The original Belridge Secondary College Performing Arts Centre was designed by the Building Management Authority of Western Australia in 1994. iredale pedersen hook were engaged by the Department of Finance to add a new Performing Arts Theatre, renovate and extend the existing theatre, upgrade existing facilities and provide universal access.
▼外观概览,overall of exterior
扩建部分从学校管理中心延伸出来,环绕在一片高耸的木麻黄橡木林中。建筑师并没有消极地看待场地大小的限制,而是乐观地将内部空间与外部环境联系在一起,将橡木林转化成为艺术中心的自然室外礼堂。在自然的环绕下,建筑成为了舞台与幕布,倾斜的草坡则变身为供人放松休闲的座位区。
The addition extends from the school administration centre, bordered by an elevated grove of mature She-oak (Casuarinas) trees. Rather than view the restricted site size negatively, we optimistically embarked on a solution that would connect interior performances to the exterior, allowing the She-oak grove to act as a natural external auditorium and the sloping grass mound to become an alterative relaxed seating area with the building acting as a stage and cantilevered curtain.
▼由橡木林看建筑,viewing the project from the She-oak grove
▼建筑外观由砖材与金属构成,exterior of the building is made of brick and metal
▼悬挑结构形成的外走廊
exterior verandah formed by cantilever structure
▼立面细部,details of the facade
入口位于现有中心的十字轴线上,这种设置延伸了人们到达场地时的仪式感,同时以戏剧性的手法彰显出入口的存在感。由 Rick Gurney 设计的综合生态艺术装置悬挑在入口上方,下方则形成了入口门廊。入口另一侧则是一个巨大的蓝色装置,这个装置不仅起到支撑作用,同时以优雅的姿态将从屋顶溢出的雨水疏导向地面。
The entry is on a cross axis to the existing centre, stretching the experience of arriving and dramatically announcing the entry to the public. A cantilevered bio box doubles as a verandah an integrated art installation by Rick Gurney. Opposite sits a large bold blue object that confidently captures and reveals the spilling and elegance of flowing and falling rainwater.
▼由 Rick Gurney 设计的综合生态艺术装置悬挑在入口上方,acantilevered bio box doubles as a verandah an integrated art installation by Rick Gurney
▼主入口,main entrance
Belridge 中学在舞蹈教育方面极具优势,流动与同步的舞蹈理念在这里被推向极致,然后反映在建筑的悬挑元素中,优雅的锥形、折叠、漂浮与悬垂结构,不仅为建筑提供了顶棚与遮阳,同时为人们带来了视觉上的惊喜。门廊屋顶陡峭的倾斜部分参考了现有通风口的位置,以一连串光晕般的圆形天窗将光线引入室内,在对侧的墙面上投下天使般神圣的光影。一面以青铜为材料的镜面墙则完成了精心安排的门厅序列,让人们在他人的背景下凝视自己片刻,这同时也迎合了当代人喜爱自拍的潮流。
The school includes a strong dance program. The notion of synchronised and fluid bodies pushed to their extremity is reflected in the cantilevering building elements that elegantly taper, fold, float and drape, providing shade and cover with an element of surprise. The steeply raking section references the existing (redundant) wind scoops with a sequence of light halos casting circular, angelical light on to the adjacent wall. A bronze backed mirror wall completes the orchestrated foyer sequence, a brief moment to gaze at oneself in the context of others, and a response to the contemporary desire to find a selfie moment.
▼入口门厅,entrance hall
▼由大厅看门厅,viewing the entrance hall from the foyer
光可谓是戏剧表演中的一部分,本项目则以极富艺术性的背景光向整个社区宣告了自己的存在。连续的条形灯带将独特的视觉体验从外部延伸到室内,并投射在青铜镜面墙上,描绘出一幅精致的戏剧场景。三扇圆形的天窗投射出独特的神秘光环,将太阳的运动轨迹具象在人们眼前。六盏青铜圆形壁灯聚集着人们的目光,让人们沉浸在怀旧的氛围中。随后,人们的目光又会延展到大厅中三盏由阿尔瓦·阿尔托设计的 A110 吊灯上,人们亲切称呼它们为“手榴弹”。
Light is considered as an act of theatre, beginning with the backlit artwork announcing the facility to the neighbourhood. Continuous strip lighting stretches the experience from outside to inside, building a refined drama, elongated in the bronze backed mirror. Three circular lights project distinctive mystical halos that register the movement of the sun. Six bronze circular wall lights gathers one’s gaze in a moment of nostalgia. This extends to the three lights designed by Alvar Aalto, the A110 pendant light, affectingly known as the ’Hand Grenade’.
▼大厅中悬挂着三盏由阿尔瓦·阿尔托设计的 A110 吊灯,three lights designed by Alvar Aalto, the A110 pendant light in the foyer。
全新表演空间的入口与现有空间的十字轴线对齐,在表演之前,这部分空间会沿着轴线上升和下降。与前厅形成对比的是,主要表演空间的氛围是克制和集中的,在这里,人们所有的注意力都指向舞台。服务设施的干扰被最小化,并隐藏在天花板结构中。由木板条组成的内墙饰面不仅具有良好的声学效果,同时也为表演者提供了一个微妙的、具有质感的温暖背景,在心理上将表演者和观众联系在一起。由观众席看向舞台,墙壁慢慢聚拢,营造出集中的视觉效果,没有丝毫分心,无声地回应着表演对声学的极致追求。
The entry to the new performance space is aligned on the cross axis of the existing space, the section rises and falls along this axis building expectation prior to the performance. In contrast to the foyer, the main performance space is restrained and focused, all attention is directed to the stage. Distractions of services is minimised, shadowed to the ceiling and out of view. A band of acoustic performing timber battens provides a subtle, tactile and warm backdrop to the performers, connecting performers and audience. Walls gently taper in and out without distraction, silently responding to acoustic desires.
▼主要表演空间,main performance space
主要表演空间创造出多样化的氛围,这归功于建筑整体对空间的互动与支撑,同时避免了空间中任何具有干扰或竞争意味的元素。在这里,灯光不再是空间的焦点,而是被故意隐藏了起来。室内采用了绿色节能的 LED 灯具,旨在为如今看来已经过时的单体灯泡进行现代化的诠释。
The main performance space creates diverse atmospheres, the architecture must support and interact, without distraction or competition. Here, lighting is purposely concealed, no longer is lighting as an object desirable. The green room embellishes a contemporary LED interpretation of the now obsolete individual bulbs.
▼由舞台看观众席,viewing the audience seats from the stage
▼观众席座椅可以折叠收起,the seats can be folded and retracted
设计的重点关注于建筑空间营造丰富表演体验的能力,并希望以此将表演者与观众联系在一起。该建筑展示出的是一种自信且谦逊的姿态,丰富的材料质感与纹理,提高了中学表演空间的质量,满足了大众对于社区设施的预期。在夜晚,外部光源将建筑宏伟的悬臂、精细的砖材与金属外立面照亮,揭示了建筑的戏剧性本质。项目从设计到落成仅用时 19 个月的时间,实现了卓越的经济效益。
The design focuses on the capacity of architecture to enrich the experience of performances and to connect performers and audience. The architecture is confident but knows when to be silent, it embraces rich and tactile materials and textures and elevates the quality of our secondary school performance spaces to that of a community facility expectation. Externally up-lights and downlights reveal the drama of architecture, from heroic cantilevers to finely detailed brickwork and metallic surfaces. This is achieved with exceptional value for money and within a compressed timeframe of only 19 months from design commencement to construction completion.
▼夜景,night views
▼手稿,sketches
▼区位图,location plan
▼总平面图,site plan
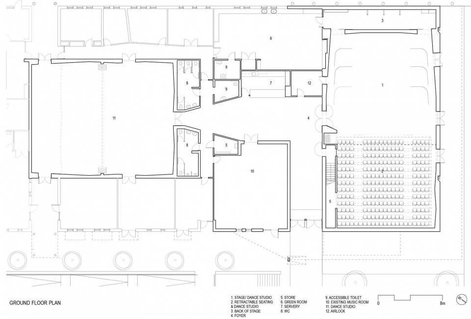
▼底层平面图,ground floor plan
▼立面图,elevations
▼剖面图,sections
Project Title:Belridge Secondary College Performing Arts Centre
Client:Department of Finance and Department of Education Western Australia
Project Type:Education
Architectural Team:Adrian Iredale, Finn Pedersen, Martyn Hook, Mary McAree, Kim Valas, Tessa Ansell, Sion Bourne, Rebecca, Hawkett, Amanda Hendry, Jason Lenard
Gross Floor area:1127m2
Status:Built
Project Commencement date:23/04/2019
Project Completion date:18/12/2021
Cost m2 (not for publication):$3,306.00 AUD
Photographer:Dion Robeson
Builder:McCorkell Construction
Interior:iredale pedersen hook architects
Structural Engineer:Terpkos Engineering
Art Installations:Rick Vermey
客服
消息
收藏
下载
最近



























