查看完整案例


收藏

下载
Kubo Tsushima Architects由HideakiKubo和Yumi Tsushima于2011年共同创立,两位建筑师都对日本文化有着深刻的理解,他们的作品兼具日本传统艺术的细腻风格和顺应时代发展的技术理念,为建筑领域开辟了新的探索方向。
The Raysum是一座建于日本泡沫经济时代的高尔夫俱乐部,Kubo Tsushima Architects改变了原有项目的属性定位和设计风格,将相对小众的高尔夫球场转变为适合人们出行旅游的精致度假场所。
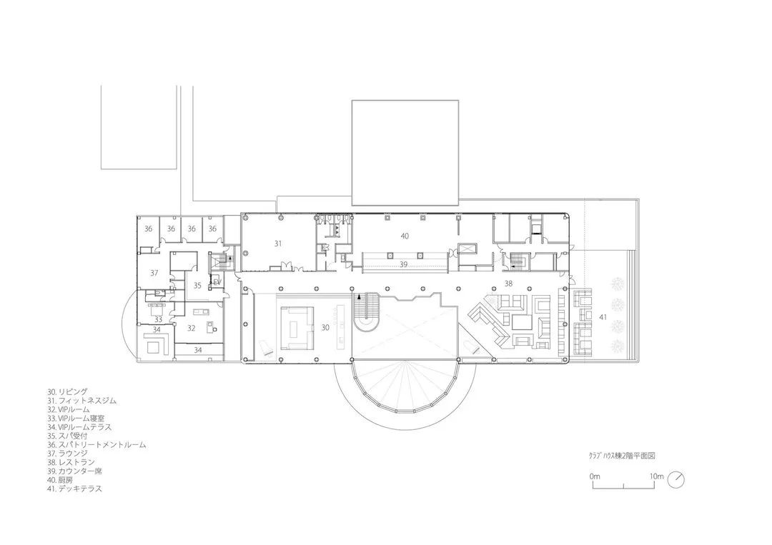
入口的迎客区拆除了原有的装饰,并以拱形的门洞对空间进行划分,将整个大堂改造成一个木制的圆顶空间,呼应“回归自然”的主题。此外,一楼的浴场和桑拿室也得到了全面的翻新,为旅客提供更加丰富多彩的休闲活动空间。
大楼的二层主要服务于俱乐部的会员,内置的厨房、起居室和音乐厅都包含在一个宽敞的套间内,Kubo Tsushima Architects通过空间的重置减少了梁柱等建筑结构对视觉效果的影响,为会员提供更具私密性的休息之处。
Hotel Screen Kyoto
Kubo Tsushima Architects受委托改造了一家位于京都的设计型酒店客房,这家酒店拥有13间风格不同的房间。建筑师在设计时着重考虑酒店空间和当下审美潮流发展的关系,尝试创造一种能够适应其未来变化的特性。
该房间只有一扇面向庭院的窄窗,因此Kubo Tsushima Architects设计了一个特殊的圆形照明装置,能够通过人工设计呈现出从新月到满月的时间变化,适应不同时段对光线的需求。另外其利用灰泥将客房的墙角调整为顺滑的圆弧,结合灯光营造出温暖的客房氛围。
Ryogoku Yuya Edoyu Spa
这座带有明显江户时代特色的建筑位于东京江户博物馆和北斋博物馆之间,是一家提供沐浴和水疗体验的浴场。建筑的外立面从浴室入口的特色门帘中汲取灵感,通过弯曲的穿孔铝板模拟布料在风中摇曳的形象,并用江户时代流行的纹理图案来呼应主题。
大楼内部通过钢混实墙实现空间的无柱化,色调和谐的浴池和室内设计使不同功能的空间形成一个连贯的整体,为最多400名顾客提供舒适的泡澡体验。此外,女性专用的浴池被设计成柔和的云形,Kubo Tsushima Architects将天花板的照明设施与曲线相结合,凸出云朵的主题元素。
虽然整个浴场的设计灵感源自日本浮世绘大师葛饰北斋的作品,但Kubo Tsushima Architects的目标是希望在现代、以致将来重新回望、融合、展现江户时代的文化与艺术。
客服
消息
收藏
下载
最近























































