查看完整案例


收藏

下载
自2020年,盐·创意西厨落户佛山,提炼餐饮市场的品类差异化,伴随产品迭代、店面模式升级而呈现一个兼具温度与轻奢感的创新西餐品牌。继广州金沙洲金铂天地首店后,盐·创意西厨将新店选址在天河佳兆业广场,唯尼设计与之再度联袂,担纲空间场景的整体解决与创意执行。从空间设计和品牌策略的维度,将优雅的简练与美学意象相结合,以温度、感知和细节的集合,回归烟火与时光交融的艺术。
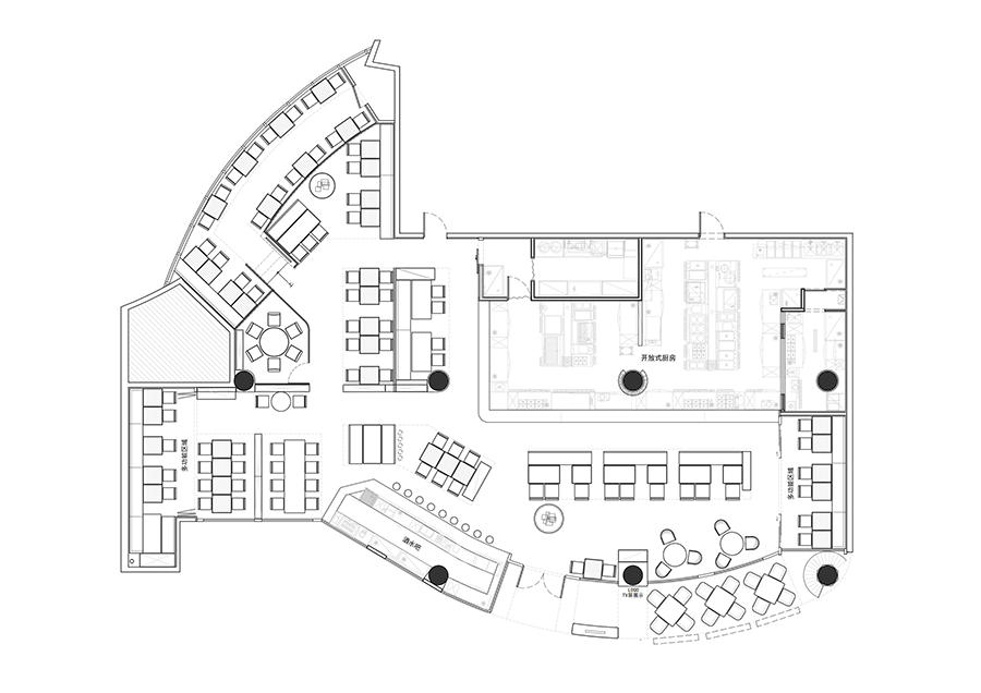
项目入驻繁华中心地广州天河区的老商场内,周边多为办公写字楼和老旧住宅,面积达480平方米的场地现状不尽理想,硬装、动线、灯光环境都尤为压抑而亟待重整焕新。
SENSE OF CEREMONY
设计依循现有结构及采光推导门头方案
以内退式界面形成门廊休闲缓冲区
整面墙的玻璃门和落地窗贯通内外
灯饰的造型感与通透性是空间灵动的存在
NATURAL SUNLIGHT
由外及里 内部环境亦因管线老旧
消防排烟设置不合理导致部分层高过低
原后勤保障区甚至仅高2.3米
极其压抑的硬性结构使得观景窗几近废弃
至少70平方米的空间被低效浪费
设计针对或高或低的层高区域布置差异化场景
多维度平衡考量从落地到运营的空间逻辑
基于品牌创始人对生活健康品质的高标准要求
以趋向自然阳光的简净与轻盈环境
异于市面常规的“暗黑系”西餐模式
升华更多样化的用户就餐和社交体验
INTERACT GENTLY
纳入风景 人与自然温柔互动
也指引着本案空间改造的可持续设计介入
将人为与自然的风景叠合为自成一体的崭新环境
原本作为办公室和储物间的最低层高区
结合内外景观全部重新优化
设计方案协调空调管道 消防强排和外墙栏杆
以弧形落地窗围合出一个抬高区域
重获俯瞰整个天河北商圈的核心景观视野
而成为需要预订的超人气餐位
,设计总监蔡威, 多次荣获国际设计大奖,意大利ADesign Award设计奖,美国建筑大奖(American Architecture Prize)设计奖,德国IF设计大奖。
拥有10余年商业全案空间设计经验,擅长餐饮、商业等全案策略空间设计,注重文化与精神的多元化空间表达,强调艺术感与商业氛围及实用性结合的整体化构想。
创意-以商业目的为核心、做与众不同的空间设计;拒绝程式化、套路化设计;便利性-以客户的需求为本、提供专业的配套服务、为客户节省时间、减少麻烦;项目落地--成本可控、全程跟进各专业落地细节及配合;增值空间--设计赋能商业、建设品牌空间独特体验感受。
客服
消息
收藏
下载
最近










































