查看完整案例


收藏

下载
“戏马原来楚故乡,鸿沟还记各分疆。尽教率土归刘氏,剩有斯台与项王” ——杜紫纶"The Xima was originally the hometown of Chu, and the gaps are still divided into different borders. Do your best to lead the land back to the Liu family, and there are only Sitai and King Xiang"——Du Zilun
刘邦、项羽同存于一座城市,让古彭徐州拥有了宽阔与包容的精神印记。“汉学”文化的徐州历来被视为汉文化的重要发源地,数千年的文明史给云龙区留下了丰富的文化古迹,尤以汇集两汉文化的精髓而闻名于世。Liu Bang and Xiang Yu co-existed in the same city, giving Gu Peng Xuzhou a broad and inclusive spiritual imprint.Xuzhou with "Sinology" culture has always been regarded as an important birthplace of Han culture. Thousands of years of civilization history have left Yunlong District with rich cultural relics, especially famous for bringing together the essence of the two Han cultures.
如果“千古繁华地,徐州不夜城”的户部山是了解徐州历史的一张城市名片。那么为云龙新城妆点上一枚“汉家书院”,将成为这座城市汉文化发源地上的一处新的地标。If "the prosperous place through the ages, the city that never sleeps in Xuzhou", Mount Hubu is a city card for understanding the history of Xuzhou.Then, adding a "Han Family Academy" to Yunlong New City will become a new landmark on the birthplace of Han culture in this city.
我们首要关注点是打造出"唯一"的图书馆属性,那么第一步就是将内容直接提炼出来升华给受众,以这些传统文化与国际图书馆交流互动,“汉文化”内核打造鲜明的地域特色。Our primary focus is to create a "unique" library attribute, then the first step is to directly extract the content and sublimate it to the audience, use these traditional cultures to communicate and interact with international libraries, and create distinct regional characteristics with the core of "Han culture" .
作为繁忙的现代人,如何安放身心疲惫的灵魂,除了可以选择休闲娱乐的快消体验,还可以踏进肆意放松的“第五空间”。As a busy modern person, how to settle the physically and mentally exhausted soul, in addition to choosing the fast-moving experience of leisure and entertainment, you can also step into the "fifth space" of wanton relaxation.
褪去一切浮夸与谦卑,自我净化的内心世界本应是平静的。Remove all exaggeration and humility, and the inner world of self-purification should be peaceful.
生活在竞争日益激烈的城市中,让那些对未来充满希望,希望通过不断的自我修炼提升自己的精英们,从最初的定位开始,图书馆就是要把最好的位置留给你们,让你成为每个夜晚陪伴进步的主角。Living in an increasingly competitive city, let those elites who are full of hope for the future and hope to improve themselves through continuous self-cultivation, starting from the initial positioning, the library is to leave the best position for you, so that you can become The protagonist who accompanies progress every night.
界非界邀请业主团队和投资管理层一起,在空间的核心位置中把24小时图书馆的规划,第一次做到了前所未有的面积。从它落地开馆到经历寒暑,它真的成为照亮寒夜的不灭明灯。Jiefeijie invited the owner team and the investment management team to plan the 24-hour library in the core location of the space, and for the first time achieved an unprecedented area. From the opening of the museum to the experience of cold and heat, it has really become an immortal beacon that illuminates the cold night.
架设了一条全通透的空中栈道、拆掉了原始场馆的柱子重新加固。投入了大约总成本的三分之一的成本和接近一半的工期。终于把南座的文化馆和北座的图书馆链接起来,并共享展演报告厅,用最小的代价解决了两馆公共文化场馆原有规划面积不足的硬伤。A fully transparent sky plank road was erected, and the pillars of the original venue were removed and reinforced. Invested about one-third of the total cost and nearly half of the construction period. Finally, the cultural center in the south block and the library in the north block are linked, and the exhibition hall is shared, which solves the flaw of the original planning area of the public cultural venues of the two museums with the least cost.
图书馆是一座城市的大脑,所有空间都应该与中心形成链接,联系就成为连接大脑与神经系统的通道,打破边界,才能没有界限。The library is the brain of a city. All spaces should form a link with the center. The connection becomes the channel connecting the brain and the nervous system. Only by breaking the boundaries can there be no boundaries.
汉王朝一统华夏四百年,是人类历史上农业文明的一次巅峰,中国也从此确立了文化的根基,从饮食、衣着、礼仪、武器、外交、战争等,演进出鲜明的东方文明。The Han Dynasty unified China for 400 years, which is a peak of agricultural civilization in human history. Since then, China has established the foundation of culture. From food, clothing, etiquette, weapons, diplomacy, war, etc., it has evolved a distinct oriental civilization.
思想上也继承了秦朝的科举制,影响后世两千年,至今对现代中国的社会依然发挥着作用,科举制也是人类历史中最伟大的发明之一。它给普世提供了一个人人平等地进入上层社会的通道。在人人平等的权力面前,图书馆是作为机会无偿提供的一种机制。任何人都能利用这个资源,任何人都能提升自我价值,它静静地陪伴着每一个人的成长。Ideologically, it also inherited the imperial examination system of the Qin Dynasty, which has influenced later generations for two thousand years and still plays a role in modern Chinese society. The imperial examination system is also one of the greatest inventions in human history. It provides universal access to the upper classes on an equal footing.In the face of equal rights for all, the library is a mechanism that provides opportunities for free. Anyone can use this resource, anyone can improve their self-worth, and it quietly accompanies everyones growth.
培养儿童阅读乐趣:牵引孩子们到达可触碰未来的地方。如果说殿堂是成人思辨的场所,空间的另一处便是孩童探寻世界的征程。Cultivate childrens reading pleasure: lead children to a place where they can touch the future. If the hall is a place for adults to speculate, another part of the space is the journey of children to explore the world.
绘本是孩子梦想中的小世界,我们想在现实中为他们创造一个绘本中的天地,便将月亮带到了绘本馆。镜像的天花映照出地面的点点星辰,孩童在阅读过程中不断仰望,直至有一天伸手即可触碰月亮,便是少年真正长成之时。努力诠释图书馆与云龙共同成长的故事的同时,我们也不忘在图书馆内营造更好的空间氛围,让每一位读者都能在馆内找到自己的安心之处。Picture books are a small world in childrens dreams. We want to create a world in picture books for them in reality, so we bring the moon to the picture book library. The mirrored ceiling reflects the stars on the ground. Children keep looking up during the reading process, until one day they can reach out and touch the moon, which is when the teenager really grows up. While striving to interpret the story of the library and Yunlong growing together, we also do not forget to create a better space atmosphere in the library, so that every reader can find their own peace of mind in the library.
人们可以在云龙特色文创区完成手作,享受午后阳光穿过冲孔板撒下的斑驳光点;People can complete their handmade works in the Yunlong Cultural and Creative Zone and enjoy the mottled light spots scattered by the afternoon sun through the punching board;
松弛的环境下,在咖啡区完成工作;百无聊赖的周末,进入图书馆内随手拿起一本书,让书海把自己包裹。图书馆中的人们,在知识寻觅的过程中不断完成对自我的塑造。In a relaxed environment, finish work in the coffee area; on boring weekends, go into the library and pick up a book, and let the sea of books wrap itself. People in the library continue to shape themselves in the process of seeking knowledge.People can complete their handmade works in the Yunlong Cultural and Creative Zone and enjoy the mottled light spots scattered by the afternoon sun through the punching board;
一层平面图 First Floor Plan
一夹层平面图 First Floor Attic Floor Plan
二层平面图 Second Floor Pla
三层平面图 Third Floor Plan
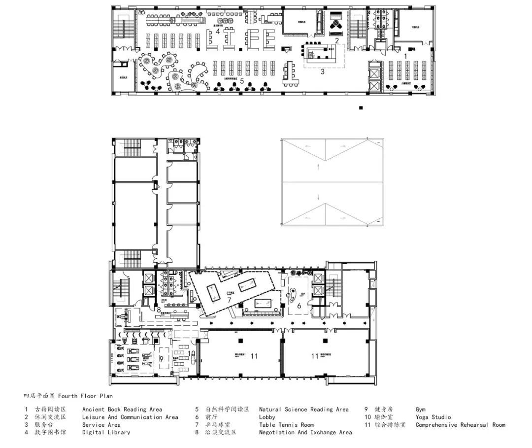
四层平面图 Fourth Floor Plan
客服
消息
收藏
下载
最近





















































