查看完整案例

收藏

下载
SongImage
在不同高度的台阶上看到的是不同的风景,眼前是烟火气息的生活日常,远方是众星拱月的梦想山巅,人生亦是如此。夜幕降临,台阶下的小屋点亮暖意,轻声翻阅书籍,裹一条毛毯,沉浸在自由和梦想的怀抱里。
感谢多么工作室所学隔山海,山海皆可平;翻阅书海,不忘初心。
项目概况
多么工作室受委托为书一设计其苏州分店-书一·山海集自习室。项目位于苏州市姑苏区石路商圈,老城区有着悠久的历史文化氛围:不管是百年石路、山塘街、观前街,还是护城河环绕的西园寺宇,这里的一砖一瓦都是历史的见证。同时,石路商圈又是现代文明飞速发展的亲历者,步行街和商业广场为老城区增添了浓浓的烟火气息,新的高楼大厦拔地而起,年轻的人群让它重焕青春。一静一动,一老一新,反差的冲击如此强烈,让人不禁感叹,却又沉浸于他们的完美融合,和谐统一。
▲空间鸟瞰
©SongImage
▲半透明隔断分隔的丰富学习空间
©SongImage
生活就像是盒子里的巧克力。我们将项目分为前区(接待区)和后区(自习区)。进入到自习室,首先映入眼帘的是明亮接待区,这个区域包含着换鞋、储物、前台、就餐、会议室几个功能区块。我们在前台的设计里加入了一个个可开启的储物柜,每一个格子好像待人开启的巧克力盒子,你可以从中取出任何赋予学习的动力。
▲接待区
©SongImage
▲前台©SongImage
▲换鞋区
©SongImage
▲就餐区
©SongImage
平行空间
推开木门进入学习区,两侧被朦胧的阳光板遮蔽,只能看到用功学习的背影和远方蓝色的天际。半透明的隔断是两个座位之间的分割线,也是连接点。在各自隔断内自习的人如同两个平行空间里的人,看似没有交集,却又做着一件相同的事情。连续的半开放隔间阵列成有序的组件,光透过阳光板将空间渲染成层叠的书页,一层一层,一页一页,与光同尘,与影同伴。
▲从木门进入学习区
©SongImage
▲被朦胧的阳光板遮蔽的空间
©SongImage
▲楼梯下的私密空间
©SongImage
虚即是实
开放自习区多以半透明的材质渲染出明亮且开放的空间气质,沉浸区则以温暖的多层板营造静谧深沉的氛围,两种不同气质的材质在空间里碰撞,虚实结合形成鲜明对比,人、空间、活动、环境和谐而统一。
少量的材质,很少的细节,半透明的质感,虚空的气质,这是我们对于纯粹空间的理解和追求。虚空并不代表“无”,而是无中生有,正因为容器是空的,所以才能盛放物体,一无所有中蕴含着所有。
▲半透明材质渲染出明亮开放的氛围
©SongImage
窗边座位可以鸟瞰城市景观
©SongImage
▲隔断和灯具细部
©SongImage
登高远眺,视野越来越清晰。
室内空间是一个规则的长方体,5.3 米的建筑层高要分为两层空间会稍显压抑,于是我们将中央区域的二层楼板打开,植入一个大台阶,以台阶为中心连接上下两层,极大地消除了层高不足的压抑感。大台阶作为交通空间的同时,也兼具了休闲的功能,使用者可以坐在台阶上休息、看书、远眺、放松。我们有意将大台阶以东西方向布置,顺着台阶向上,翻越山丘式的半透明体块,可坐可立,远方的视野越来越清晰。坐在台阶上面朝东侧城市景观,远处是苏州高新区的地标性建筑,近处是老城区的苏式住宅。在不同高度的台阶上看到的是不同的风景,眼前是烟火气息的生活日常,远方是众星拱月的梦想山巅,人生亦是如此。夜幕降临,台阶下的小屋点亮暖意,轻声翻阅书籍,裹一条毛毯,沉浸在自由和梦想的怀抱里。
▲通往二层的大台阶
©SongImage
沿台阶设置的半透明学习单元
©SongImage
▲台阶上的学习单元近景
©SongImage
▲单元内部
©SongImage
▲台阶与沉浸式自习室之间的走道
©SongImage
▲沉浸式自习室
©SongImage
更加私密的空间
©SongImage
▲隔间细部
©SongImage
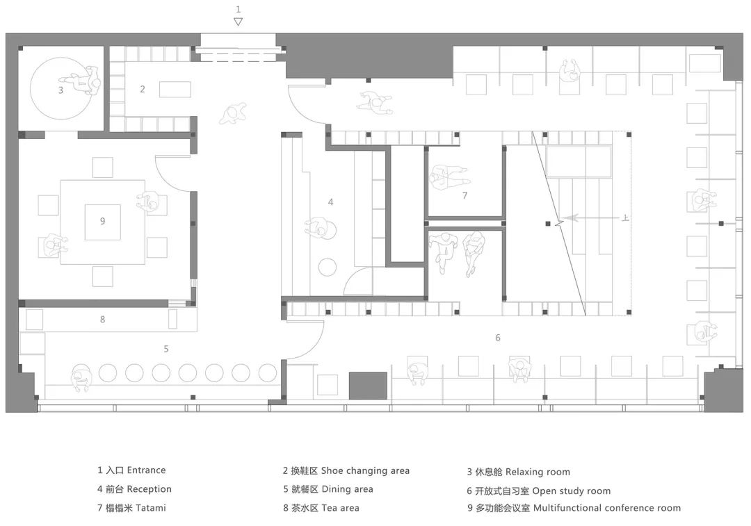
项目图纸
▲一层平面图
©多么工作室
二层平面图
©多么工作室
项目名称:书一·山海集自习室
设计方:多么工作室
设计时间:2021 年
建成时间:2022 年
主创建筑师 :王维、盛乐
设计团队:颜菲、豆会会
项目地址:苏州,中国
建筑面积:220㎡
摄影版权:SongImage
客服
消息
收藏
下载
最近




























