查看完整案例

收藏

下载
©
Ewout Huibers
围绕着“回家”这一概念,设计旨在实现房间的多样性,并通过PET织物等声学材料放大了室内空间的舒适与触感。每间客房的标配包括带经典台灯的书桌、带储物空间的舒适床、灵活的悬挂式床头柜、带靠垫的飘窗、食品贮藏处以及多功能墙。
感谢
i29
阿姆斯特丹Casa酒店的故事始于四个学生的一个使命,酒店创立于50年代后期,旨在解决学生住房短缺的问题。通过按季向客人租赁客房,卡萨酒店直到今天还在为学生们提供经济住宿,也因此创造出独特且鼓舞人心的用户社群。
▲项目概览
©Ewout Huibers
i29与家具品牌 Lensvelt 和纺织品设计师Mae Engelgeer达成合作,为所有518间酒店客房提供了室内设计。围绕着“回家”这一概念,设计旨在实现房间的多样性,并通过PET织物等声学材料放大了室内空间的舒适与触感。每间客房的标配包括带经典台灯的书桌、带储物空间的舒适床、灵活的悬挂式床头柜、带靠垫的飘窗、食品贮藏处以及多功能墙。
▲客房
©Ewout Huibers
▲看向多功能墙
©Ewout Huibers
▲食品贮藏处与衣柜
©Ewout Huibers
Casa酒店在65年间一直作为顾客、学生和邻里之家,这份理念和“永远年轻”的口号一起,已成为独一无二的品牌概念。i29将这种精神转化为灵活多彩的设计,使空间既可以作为学生用房,也可以作为酒店用房,无需额外的家具即可轻松打造个性化房间。此外,设计还从高效管理和牢固使用的角度进行了考虑。
▲窗边学习桌
©Ewout Huibers
根据颜色不同,客房具有从标准到高级的一系列等级。由Lesley Moore设计的Casa图形使橱柜系统的线条从木墙上脱颖而出。此外,明快的图案也融入了墙绘、宣传册和信息册的设计中。
▲飘窗
©Ewout Huibers
▲个性化的角落
©Ewout Huibers
项目的规模赋予设计师创造出独特产品的可能。设计旨在为Casa酒店增添 “家”的气息,系列产品涵盖了灯饰、家具和纺织品。衣柜和床头板以PET毛毡等耐用材料打造,地板饰面和窗帘的设计中融入了独特的颜色和图案。
▲床品设计
©Ewout Huibers
▲细部
©Ewout Huibers
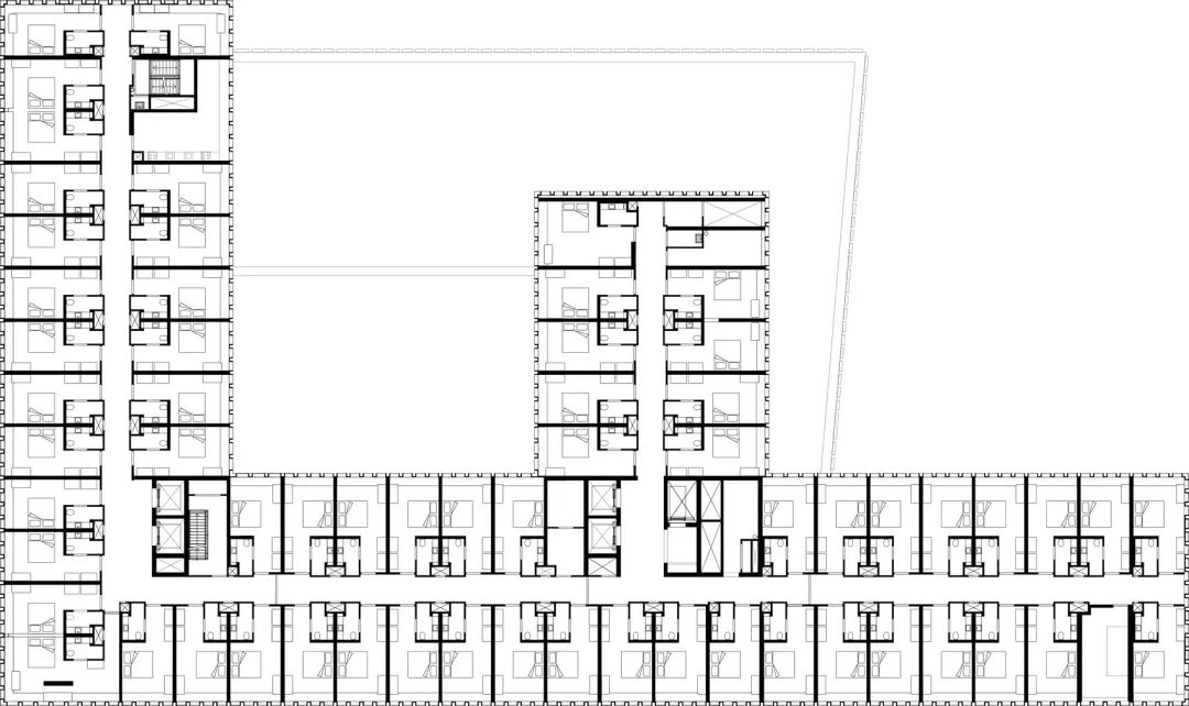
项目图纸
▲酒店平面
©i29
▲单元平面
©
i29
Client Casa Hotel
Interior design i29
Management & product development Lensvelt
Textile design Mae Engelgeer
Graphic design Lesley Moore
Object Casa Hotel Amsterdam
Size 518 rooms, 17.800 m2
Contractor Lensvelt
Interior builder Coors
Photo’s Ewout Huibers, Thomas van Schaik
小号
小号
客服
消息
收藏
下载
最近




















