查看完整案例

收藏

下载
© CreatAR Images
在大片农田的包围中,这样的白墙银顶既与公园内仍留存的一些白墙黑瓦夹杂红瓦的村舍农宅没有明显的冲突,又保持了这一新的公共建筑的自身特征,同时这样的有一定异质的朴素工业制品的运用也是对于这一场地的江南乡村庸常特质的一种新的回应。
感谢致正建筑工作室。
嘉北郊野公园是规划中的上海先期启动的“5+2”郊野公园之一,位于嘉定主城区的西北部,规划总面积约 14 平方公里,目前建成开放了 7.39 平方公里。该公园以原生态农田、林木和水网为基本特色,具有农业休闲、水乡体验、生态养生、保育土地、教育科普等多项功能。
▲项目鸟瞰
© CreatAR Images
▲次入口方向鸟瞰
© CreatAR Images
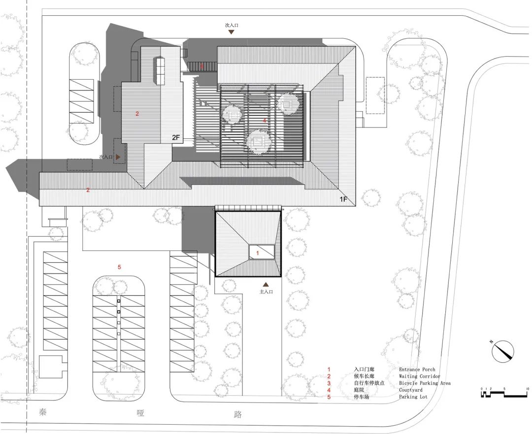
西北游客中心是公园的三个游客中心之一,在公园 2 号门内东南侧,东临公园内主路,北枕一条小河。场地原为徐秦村村委会旧址,是一个 1990 年代所建南北纵长的砖混结构带有混凝土预制板闷顶和混凝土檐口的红瓦双坡顶三合院,北翼是个两层小楼,通长的西翼、南翼和稍向北伸出的东翼都是单层,院子朝东是一个比较大的开口。
▲总平面图
© 致正建筑工作室
▲顶视© CreatAR Images
最初的方案以改造利用村委会为出发点,保持原有建筑基本格局不变,翻新屋顶并进行必要的加建,形成一个新旧并置的整体。
▲空间轴测场景©致正建筑工作室
西侧面向入口广场增建了一个钢木混合结构的非对称的类“四水归堂”格局(四面单坡向内天井)的入口门廊,形成了具有地方仪式感的进入方式,并和相对厚重一些的主体建筑形成对比。
▲从停车场方向鸟瞰
© CreatAR Images
▲屋顶轮廓
© CreatAR Images
▲入口门廊
© CreatAR Images
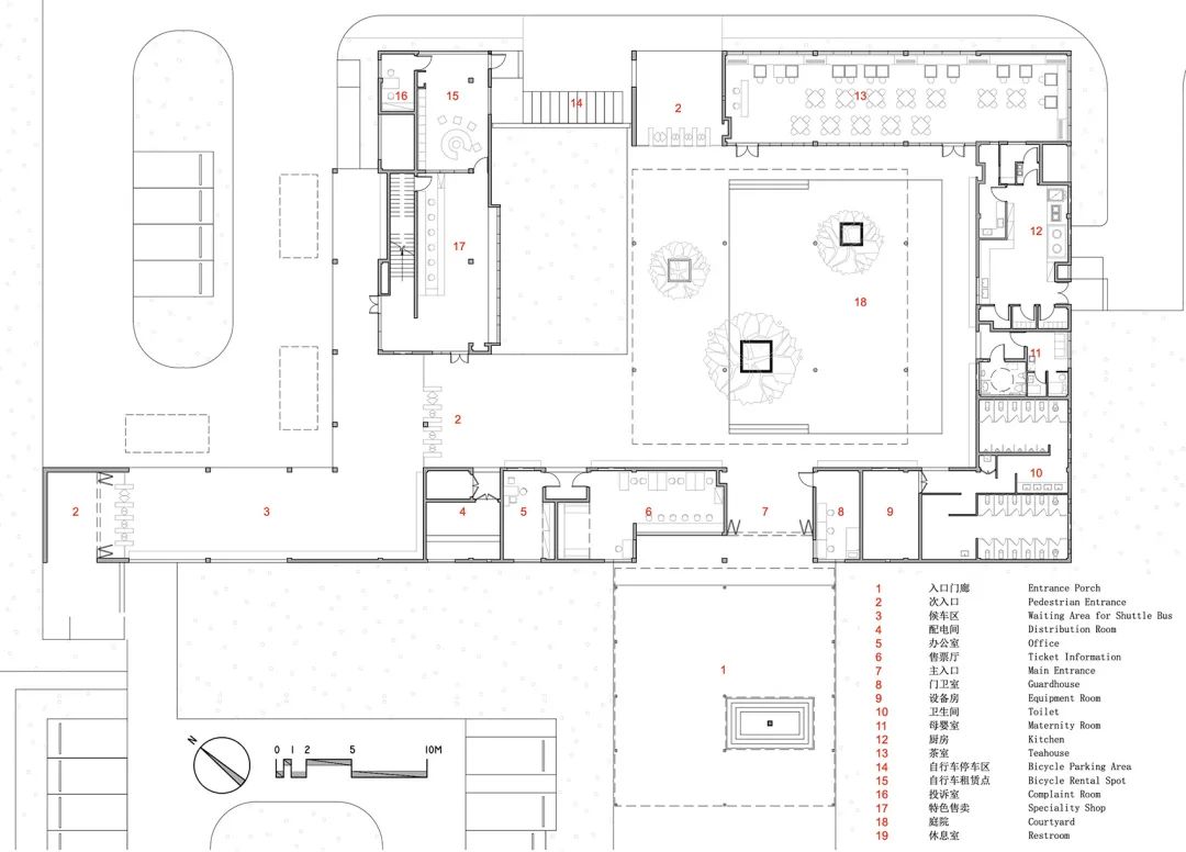
入口两侧的西翼内安排票务问讯、导游服务、办公值班等管理运营部门,西南角是公共厕所,南翼中段为厨房,向北加长的整个东翼是茶室,带有一个朝东开向公园主路的游客步行出入园口。
首层平面图 © 致正建筑工作室
北翼底层是特色售卖和自行车租赁,二楼为游客休息室。场地的北侧靠河处为电瓶游览车站的回转场地,建筑西翼向北延伸的宽敞空廊及北翼北侧底层的加建披檐廊作为候车廊来使用。
▲回转场地
© CreatAR Images
▲候车区
© CreatAR Images
▲等候座位区
© CreatAR Images
建筑西、南、东三翼翻新的木结构屋顶向内院出挑形成回廊,内院在北翼东南侧保留一个向东的开口,作为自行车停放点,并以矮墙分隔内外。
▲庭院回廊
© CreatAR Images
矮墙内院子在北翼前设置一个大的花池,其余南侧三面围合的大部分院子内整体覆盖了一个比回廊檐口略高的轻钢结构支撑的竹钢遮阳格栅棚架,保留的数株香樟从棚架中穿出,形成一处以硬质铺装为主的遮阴空间,内院的南半部场地比回廊下沉,以微地形的变化来定义不同的空间氛围。
望向院子里的花池
© CreatAR Images
▲轻钢结构支撑的竹钢遮阳格栅棚架
© CreatAR Images
▲保留的数株香樟从棚架中穿出
© CreatAR Images
▲棚架细节
© CreatAR Images
在建设方确认方案后的土地审核程序中,发现原村委会的西南角落在了永久农田范围内,无法完整保留原建筑。但是后续工期安排又不允许设计方依据新的边界条件重新调整方案,最后各方妥协的结果是在总图上把建筑整体向北略靠东平移出永久农田的范围,也就是意味着原建筑全部拆除,游客中心成为按原尺寸平移复建的对于村委会的再现性保存再利用,所幸院内的三株香樟仍能保留,只是改变了与院子的相对位置。
▲结构爆炸分析图©致正建筑工作室
这样处理之后的最大的差异是,对于这样无名的乡村遗产,不可能按保护建筑所能坚持的修旧如旧的结构体系来整体复建并加固原方案中所保留的原建筑的砖混部分,而是只能以新的现浇混凝土框架结构来复建。
▲庭院光影
© CreatAR Images
▲室内空间
© CreatAR Images
▲二层檐廊
© CreatAR Images
同时考虑到降低结构整体的复杂度以控制造价,框架结构涵盖了坡屋顶的主梁体系,但是特意不设混凝土脊梁及出挑檐廊的檐梁,使屋顶下除了柱间主纵梁之外,只有横向的混凝土折梁,其上再做由纵向胶合木檩条支撑的木结构屋顶,以呈现出清晰的结构混合逻辑。
▲出挑檐廊
© CreatAR Images
▲木结构屋顶
© CreatAR Images
在建筑墙体维持白色涂料的基础上,木结构坡屋顶采用了银灰本色的波纹镀锌钢板作为屋面材料。在大片农田的包围中,这样的白墙银顶既与公园内仍留存的一些白墙黑瓦夹杂红瓦的村舍农宅没有明显的冲突,又保持了这一新的公共建筑的自身特征,同时这样的有一定异质的朴素工业制品的运用也是对于这一场地的江南乡村庸常特质的一种新的回应。
▲银灰本色的波纹镀铝锌钢板屋面
© CreatAR Images
▲次入口傍晚视角
© CreatAR Images
▲庭院傍晚视角
© CreatAR Images
▲夜间鸟瞰
© CreatAR Images
项目图纸
▲一层平面图
© 致正建筑工作室
▲二层平面图
© 致正建筑工作室
▲屋顶平面图
© 致正建筑工作室
▲立面图
© 致正建筑工作室
▲剖透视图 1
© 致正建筑工作室
▲剖透视图 2
© 致正建筑工作室
▲剖面图 1-1
© 致正建筑工作室
▲剖面图 2-2
© 致正建筑工作室
▲剖面图 3-3
© 致正建筑工作室
▲剖面图 A-A
© 致正建筑工作室
▲剖面图 B-B
© 致正建筑工作室
▲剖面图 C-C
© 致正建筑工作室
▲剖面图 D-D©致正建筑工作室
项目名称:嘉北郊野公园西北游客中心
建筑师:周蔚+张斌/致正建筑工作室
主持建筑师:张斌
项目建筑师:袁怡(方案、扩初、施工图),王佳绮(后期配合)
设计团队:徐跃,张吉昊,陈振
方案咨询:上海直造建筑设计有限公司/水雁飞,侯睿
灯光顾问:上海福豹莱景观灯光设计有限公司/龙婷
设计总包:华东集团华东建筑设计研究院有限公司
建设地点:嘉北郊野公园 2 号门内东南侧,近嘉松北路、冈峰公路
建设单位:上海疁景建设发展有限公司
EPC 总包施工单位:上海现代建筑装饰环境设计研究院有限公司
设计时间:2015.06-2018.03
建造时间:2018.05-2019.05
基地面积:5822.8 m²
占地面积:1588.9 m²
建筑面积:1467.8 m²
结构形式:钢筋混凝土框架,局部钢结构,木结构屋顶
建筑层数:地上 1 层,局部 2 层
主要用途:票务问讯,导游服务,办公,茶室,售卖,游客休息,公共厕所,游览车站
主要用材:花旗松胶合木,花旗松实木板,竹钢,波纹镀锌钢板,型钢,铝型材,平板玻璃,涂料,火山岩板,瓷砖
工程造价:约 1,181 万元人民币
摄影师:CreatARImages 小号小号
客服
消息
收藏
下载
最近

























































