查看完整案例


收藏

下载
是克制主义美学与空间的对话
本案为一套充满了自然味道的私宅,空间没有太多复杂的装饰与鲜艳的色彩,以裸露的灰水泥和自然的木色为主调,高级的深色调起到点缀作用,整体的效果力求返璞归真,塑造一种简洁氛围,纯粹的设计让空间回归极简本质。
不断做减法的极简空间设计,更要注重情感体验,除了简约舒适的空间比例,更要强调人与空间的交互,才能创造出简约克制的美学空间。
别于讲求精致奢华的质感,屋主更为追求强调自然朴质、关注内心的宁静、满足的生活方式。
所以,设计师把以前的梁柱和天花都保留了它原来的样子,它也许残缺也许不完美,但这些都还是有应该值得被留下来的东西。
把梁柱及天花的灰刷干净露出原来的水泥层,在刷干净后的梁柱和天花露出的因为当年的一些工艺、技术等层面原因导致的坑洼、钢筋的外露。
这种坑洼及钢筋的外露也只能在那个年代的建筑里才能感受到的“不稳定美”“不完美的美”。
这种“不完美的美”再与当代工艺的细去碰撞,看似矛盾的两个东西又那么的和谐。
餐厅作为家里最常待的空间,避免过多色彩的运用。天然的材料打造出简约克制的美学空间,在不完美中寻找美。
不同材质、纹理的搭配比例得当,相互平衡,既增加了空间层次感又不至杂乱。
餐边背景墙处打造了一个嵌入式水泥柱以及暗藏灯带,唯美的光影效果,让空间充满诗意。
纯白的墙面客厅没有过多的装饰,沉稳的褐色沙发与日式亚麻地毯,让整个空间充满低调、自然古朴的气质;点缀一株清新的绿植,整个空间给人的感觉宁静又质朴,足以为生活降噪。
归于空间的本真性,凸显而出的是对生活方式的探讨,以绝多余的一切事物,但留内心的一寸空白,来彰显对于生活,空间对应的态度。
没有过多的装饰,一幅简洁的水墨画用木质画框简单装裱,随意地靠在墙面上,宁静悠远的意境呼之欲出。
这些看似恣意洒脱的物品、装饰品,其实都是精心打造过的平衡;那没有粉刷的斑驳的梁柱、跟充满自然的原木色地板,可以看到满眼的这种斑驳纹理,就连装饰品,也是最朴素的画面,这种自然原始跟克制,就是设计师想要体现的。
中式禅意、日式简朴,是过去也是现代。一种阴郁、克制,自然、纯朴,欣赏不完美之美、欣赏时间所造成的痕迹,追求自身的宁静与自在。
卫生间的设计简洁利落,整个空间给人一种纯净的感觉。白色版本的浴室就像充满光,带来更加内敛的极简气息。
一盏煤油灯,打破了空间的冷俊,古拙温暖的氛围感便扑面而来。
世间万物,始于自然,亦归于自然。
带着一丝禅意,跨过时间的洪流,从平静的空间中透出简单自然的生活美学。
学会去接受不可避免的事,去欣赏宇宙的秩序,物质的贫乏和精神的富足。它代表了对岁月痕迹的赞美,在漫长的岁月洗礼中发现生活最本真的美好。
想必任何来此短暂享受的人,宛若可从空间中,听见主人此刻生活的细语,那心境的转译,也在氛围中表露心境。
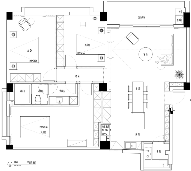
原户型上一手屋主是把房子与隔壁一套打通了,所以现户型布局是不合理的,功能性也是不齐全的。
现户型没有厨房、没有公卫。
房子只有一个大套间与一个采光和通风都不好的小卧室。
项目名称 | 克制的疯狂
项目地点 | 广东·江门
项目面积 | 143㎡
项目类型 | 住宅空间
设计时间 | 2021.11-2022-05
设计单位 | 古月空间设计工作室
设计团队 | 练铟涛、陈雪茵
主要材料 | UMO有末地板、华睿定制、白砖
由设计师胡哲于2019年在广州成立,是一家以室内设计为主、根据设计意图全案落地的设计工作室,工作室专注于研究现代空间,擅长现代风格、旧房改造、空间布局调整,不断学习整合传统东方文化在现代空间中的运用,传承与创新。
曾获荣誉 -2021- 2021营造家奖年度最佳中户型设计奖 2021金腾奖年度住宅公寓空间设计大奖提名奖 第二十四届CIID中国室内设计大奖赛 最佳设计企业 第二十四届CIID中国室内设计大奖赛经济型住宅工程类 金奖 2021PChouse Award私宅设计大奖年度TOP100作品奖 2021PChouse Award私宅设计大奖年度城市榜(广州)TOP10 -2020- 红棉中国设计奖 2020室内设计奖 2020年度中国(广东)住宅设计精英榜10强 广东广播电视台房产频道《设计前沿》特邀嘉宾 40 UNDER 40 中国(广州)设计杰出青年(2020-2021) 第二十三届CIID中国室内设计大奖赛 最佳设计企业 第二十三届CIID中国室内设计大奖赛经济型住宅工程类 银奖 第二十三届CIID中国室内设计大奖赛休闲娱乐工程类 优秀奖 第四届“戛迪奖”空间艺术设计邀请赛职业组空间类金奖 第四届“戛迪奖”空间艺术设计邀请赛职业组空间类银奖 第四届“戛迪奖”空间艺术设计邀请赛职业组空间类铜奖 -2019- 中国家装设计百强人物(2019-2020) 广东广播电视台房产频道《设计星语》特邀嘉宾 广东广播电视台房产频道《设计前沿》特邀嘉宾 第三届“华厦奖”国际空间设计大赛 住宅实景类铜奖 第三届“华厦奖”国际空间设计大赛住宅创意类铜奖 第二十二届CIID中国室内设计大奖赛住宅工程类 入围奖 -2018- 2018居住的进化空间设计大赛 未来奖 广东广播电视台房产频道《设计师星火计划》特邀嘉宾 -2017- 第二届“华厦奖”国际空间设计大赛住宅实景类 银奖
客服
消息
收藏
下载
最近






























