查看完整案例

收藏

下载

翻译
Architects:QARQ
Area :322 m²
Year :2020
Photographs :Juan Antonio Sobrino Caso
Manufacturers : BTicino, Carpenter, Concrete Lab., Plásticos Luna, VetrotecBTicino
Lead Architects :Juan Antonio Sobrino Caso, Victor Fernandez
Design Development : Adriana Castro Bernal
City : Mexico City
Country : Mexico
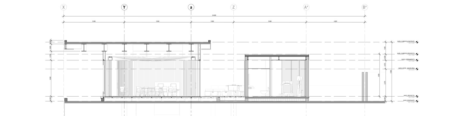
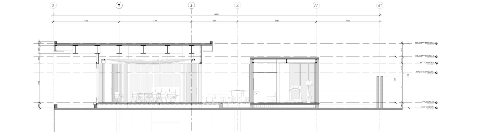
The project is based on the change of image that the client, on this occasion a Bank, wants to make through the reconversion of traditional banking to a Fintech. To do this and opt for the new DNA that the bank wants to imprint on its entity as a concept, we chose to use the geometry that said element has in such a characteristic way. That is why the program, part of a curvilinear geometry, has the services at the center, in the concave shapes. To house the office program, are used the extremes that allow receiving both workers and clients.
This curvilinear shape is covered with a Poplar strip, to give the project a warmer image. Likewise, in order to maintain the industrial essence and open space, it was decided to use micro cement as a floor covering, as well as leaving the ceiling installations apparent and only finished in black paint.
The central workspace, which is framed by two movable screens, functions as a dynamic area according to the client's needs. Said space is supported by a floating ceiling crossed by hoses in the tone of the bank's new image, seeking to give it a more prominent image than the rest of the project. Likewise, to maintain the curved shape, it was decided to implement curved glass in the corners of the facade, giving geometric and visual continuity to the project.
Finally, the program is complemented by an intermediate area of amenities, for more recreational use, as well as a dining area for senior managers.
▼项目更多图片
客服
消息
收藏
下载
最近


























