查看完整案例


收藏

下载
建造什么和保留什么
What to build and What to keep
这座小教堂有五十年的历史,一到下雨天就会漏水,而且没有保温层,无法阻挡冬季寒风。我们需要新建一座建筑,同时考虑哪些部分应该保持原样。基地四周环绕石墙,我个人很喜欢石墙的粗糙纹理,并且认为用水泥连接平坦的石墙是不自然的。而且有的时候,温暖的回忆比时尚的外观更加重要。我没有勇气将这些石墙一一推倒,所以我决定保留这种时间痕迹,构筑真诚和记忆的印记。基地一侧耸立的冷杉也必须得到保护,它如同土地的主人,为新建筑带来稳定性和平衡感。
A 50 year old chapel. It is an old building that leaks when it rains and there is no insulation to block the cold wind in the middle of winter. We needed a new building, but at the same time we had to think about which parts should be kept as before. A stone wall surrounds the site. Personally, I like the rough textured stone wall. I thought that stonework with smooth boulders attached with cement was not natural. But sometimes, warm memories are more important than stylish looks. I did not have the courage to tear down the stone walls they had built one by one, so I decided to leave a trace of time. I leaved a mark of sincerity and memory. The proud and dignified fir tree on the side of the site had to be preserved as well. It adds stability and balance to the new building as if it were the original owner of the land.
▼项目概览,general view
形式和材料
Form and material
在绿色森林背景的衬托下,白色和灰色外墙以及深灰色屋顶给人留下干净简洁的印象。在广阔的土地上,建筑占地350平方米,平面具有35米长的纤细形状。与其将建筑集中并设置大花园,不如将基地划分成多个区域。
The white and gray exterior walls and the dark achromatic roof give the impression of cleanliness and simplicity with the green forest in the background. Although it is about 350 square meters in size, the building is spread out on an ample land and a slim shape of 35 meters was created. Rather than concentrating the building in one place and having a large garden, Segmenting and dividing the land into multiple domains is sometimes a good strategy.
▼简洁的外观与绿色森林背景,the clean and simple look and the green forest in the background
▼入口立面,front facade
在人口密集的城市,这样做原本是不可能的,但我们决定充分利用这片土地。建筑之间置入前花园、后院和其他庭院等多种室外空间,形成了丰富的体验。三个高耸的坡屋顶不分彼此,被裸露的混凝土板包围。混凝土板创造出深度感,使动线得到组织。
In a dense city, it would be impossible in the first place, but we decided to make the most of the land. A variety of external spaces, including the front garden, backyard, and courtyard, were inserted between the buildings, enabling a rich experience. The three gable roofs soaring like brothers were surrounded by exposed concrete plates. The concrete plate forming the layer created a sense of depth, and the movement lines were organized.
▼入口区域,entrance area
▼前庭院,the front garden
▼由裸露混凝土板围合的空间,the space surrounded by exposed concrete plates
内部空间
Inner space
室内采用自然光照,饰以砖材和裸露的混凝土。小教堂前面是充满光的盒子,柔和的光线从侧面的狭长窗户照进室内。
The interior is decorated with natural light and made of bricks and exposed concrete. A box filled with light was put in the front of the chapel. A soft light filled in through the low, elongated window on the side.
▼祈祷室,chapel
▼柔和的光线从侧面的狭长窗户照进室内,a soft light filled in through the low, elongated window on the side
▼讲台细部,detail
▼食堂,cafeteria
▼夜景,night view
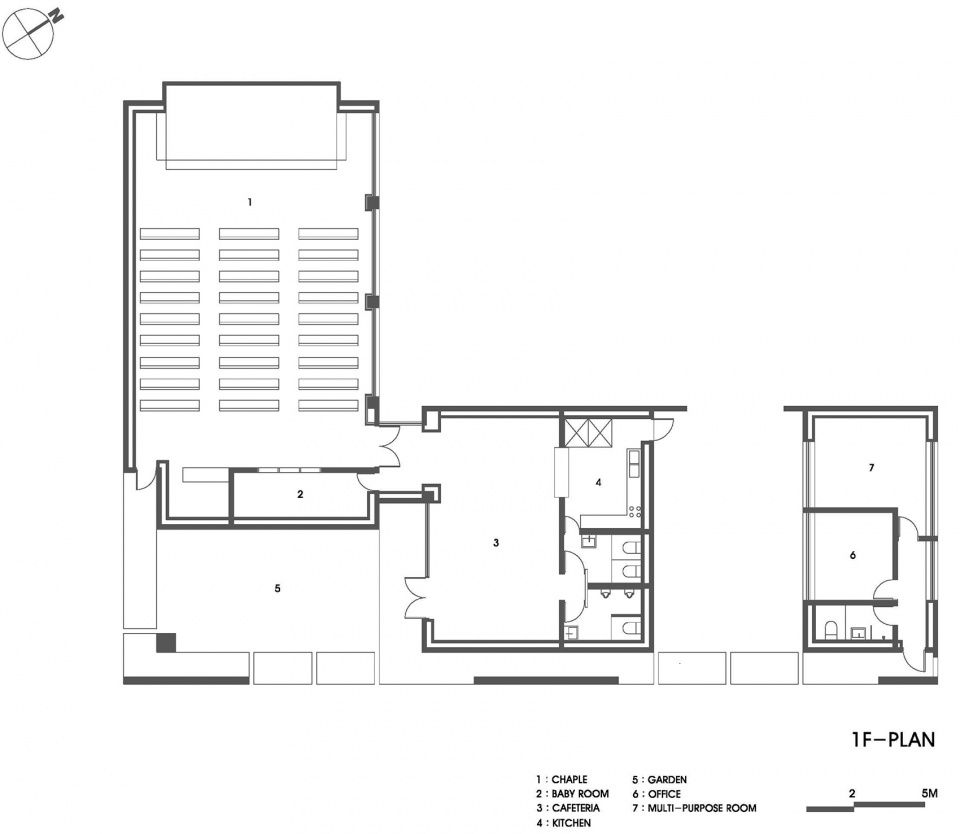
▼一层平面图,1F plan
▼屋顶平面图,roof plan
▼正立面图,front elevation
▼侧立面图,right side elevation
▼剖面图,section
Project Name: Papo church
Office Name: Oh Jongsang
Office Website:
ojshehj@hanmail.net
Firm Location: Opo-eup, Gwangju-si, Gyeonggi-do, Republic of Korea
Completion Year: 2022
Gross Built Area (m2/ ft2): 352 m2
Project Location: 259-3, Papo-ri, Sangseo-myeon, Hwacheon-gun,
Gangwon-do, Republic of Korea
Program / Use / Building Function: church
Lead Architects: Oh Jongsang
Photo Credits: Oh Jongsang
客服
消息
收藏
下载
最近



















