查看完整案例


收藏

下载
项目位于澳大利亚新南威尔士Bowral镇,业主原本的家位于博雷尔山顶,由建筑师Bert Read设计。对于业主来说,搬家是一个明智的决定,目的旨在住得离市中心更近,减少汽车使用,进而为环境保护做出贡献。坐落在生态保护区内,场地上原有的小木屋建于世纪之交,在四季的不断更迭中,曾经的居住者敏锐地发觉了这座小木屋所面对的环境挑战。由于朝向的不合理,南向的生活空间在冬日会变得异常寒冷,而靠近西立面一侧的空间以及前方宽阔的黑色混凝土车道则会在夏天变得闷热难耐。
A move by the clients, into the township of Bowral, from a home by Bert Read atop Trachyte Mt Bowrell (Mt Gibraltar), was driven by a conscious decision to live closer to the town centre and reduce car use, for a smaller environmental footprint. A turn of the century timber cottage, in a conservation precinct, was chosen and lived in through the seasons; and its challenges were keenly felt. Uncomfortable due to its orientation, with southerly living spaces frigid in winter, and a western facade and extensive black concrete driveway compounding sweltering heat in summer.
▼项目外观,exterior view of the project
在不断更新的度假住宅风潮中,这座紧凑的小木屋以一种独特的复古情调脱颖而出,在街道上彰显出一种温和而自信的存在感。因此,建筑师决定重新利用现有的资源,保留小木屋的核心原始部分。但是这个策略却在现场受到了严重的挑战,大面积木材蛀虫损坏让小木屋必须经历一次计划外的重建工程。
Yet the cottage, compact, and unusual in its deep setback amongst growing newer ‘period homes’, had a gentle assured presence to the street. The strategy to reuse the existing where possible, in this case the original core of the cottage, was challenged on site after the discovery of extensive wood borer damage, and foundation problems. An unplanned near rebuild was required.
▼透视图,perspective
▼入口门廊顶棚结构,Entrance porch roof structure
项目的业主是一对富有创造力且热爱澳大利亚文学的搭档,他们一位是擅长本土景观园艺的园丁,另一位是专业的纺织工匠。因此,设计的核心理念旨在打造一座让花园与故事交织在一起的家。小木屋的主体结构与外立面采用了黑基木。柱子与横梁的尺寸按照原有的小木屋进行了一比一的复刻。细木工制品,由当地工匠制作,粗犷而直接。回收的硬木窗户、门和板条黄铜屏风则丰富了室内看向花园的景观视野,同时过滤了光线增加了光阴的层次。
The owners are a creative duo – an academic with a passion for Australian literature, and a gardener with expertise in native landscapes and an adept weaver. Thus the brief augmented to include a home for a garden, and a home for stories, interwoven. Blackbutt is structure and finish throughout. Post and beam, arrised to the scale of a passing body. Joinery by a local maker, robust and direct. Recycled hardwood windows, doors and battened brass screens add framed garden views and layers of shade. Filtered light inside.
▼主入口,entrance
在凉廊上,业主可以看到他们位于直布罗陀山顶的故居,百叶状的遮阳板不会阻挡冬日的阳光,为人们提供了舒适的半室外环境。入口门廊环绕在小木屋的西侧,与停车位以及入口坡道一起保护了小木屋免受西晒的影响,同时以热情的姿态迎接着归家的人们。入口玄关与通道的上方设有折叠天窗,将更多光线引入小屋的内部空间。
From the verandah, a celebrated view back to the former home on Mount Gibraltar and winter sun admitted by a brise soleil verandah roof, can be enjoyed. This verandah wraps around to the west, where carport and entry ramp welcome and at the same time protect from the western sun. Entry circulation, under a skylit fold, invites light deep inside.
▼凉廊,the verandah
凉廊的后端,毗邻室内空间入口的位置,连接着一间下沉的花园房,这是一个富有创造性的隐居之地,也是编织、写作、阅读和交谈的理想场所。门廊与花园房将花园包围在其中,内敛而沉静。花园中,一丛茂盛的伯德特桉成为了天然的屏风,凉亭与工作台则为这里赋予了实际的功能,进一步将室内与花园融为一体。
To the rear an openable verandah connects a sunken garden room. A creative retreat, for weaving, writing, reading and conversation. This wing embraces a garden, introverted and reflective. A copse of Mallee Gum growing a layer of veiled ceiling. Arbour and workbench form habitable edges. Interior merges into garden.
▼面向花园的露台,terrace facing the garden
基本的设计策略在项目初期就已明确,并贯穿始终:整顿现有的小木屋,清除所有不和谐的附加元素,包括附属建筑以及场地上大量的车道,室内布局也经过重新规划,主要生活区域由南侧转移至北侧,将建筑内部的生活与街道景观联系在一起。此外,建筑师还在屋顶上沿着交通空间切割出一处凹槽,让光线进入小屋深处,同时让居住在室内的人们瞥见到云卷云舒的美丽天空。
Essential design strategies were distilled early on and drove decisions throughout: The existing cottage was clarified, removing unsympathetic additions, outbuildings and a substantial amount of driveway. Internal planning was reversed to bring living to the north and to connect life within to the life of the street. A slot in the roof cut along the circulation space admits light deep into the cottage and offers glimpses of the passing clouds.
▼由厨房看入口玄关,viewing the entrance from the kitchen
▼玄关上方的天窗,skylight above the entrance circulation area
半透明的艺术帆布背光天花板宛如一朵柔和的云朵飘浮在客厅中。家具、书籍、陶瓷、挂毯和谐得组合在一起,不仅丰富了生活的背景,同时也将空间中的声波扩散开来。具有质感的黄铜踢脚板成为空间中的点睛之笔,随着时间的推移变得更加光彩夺目。
A backlit ceiling of semi-translucent artist canvas in the living room hovers in the space, soft and cloud- like. Sound diffuse against a background of rich texture in collections of furniture, books, ceramics and tapestries. Brass skirting, highlights and fixtures provide lustre and patina over time.
▼由餐厅看厨房,viewing the kitchen from the dining area
▼厨房细部,details of the kitchen
▼陈设细部,details of the collection
理想中的花园决定了室内的材料选择,为设计奠定了柔和的色彩基调。白色磨砂混凝土砖、沙土色的聚合材料、FC面板,以及灰色风雨板,这些材料有助于光线的漫射并形成有趣的阴影,同时突出材料原本的色调。
This imagined garden drove the material selection – a muted palette. White honed concrete bricks, aggregate in sandy tones, FC panels and grey weatherboards to collect diffuse shadows, and highlight native tones.
▼室内外的视觉交互,visual interaction between interior and exterior
▼白色磨砂混凝土砖墙,White honed concrete bricks wall
“建筑师以一种积极的方式回应了我们的要求,这栋小木屋既是美丽也是完整性的表达,完备的空间与功能让我们可以一直在这里住到老。创造性的思维,加上建筑师愿意倾听的态度以及极强的交付能力,共同造就了这样一座美丽而宜居的住宅。这一切都令我们感到万分满意!”
‘The architects responded in a positive way to our requests for a house which expresses beauty and integrity whilst delivering necessities to enable us to stay here in our advancing years. Creative thinking, together with the architects’ willingness to listen and ability to deliver has resulted in a beautiful and liveable house. Most satisfying!’
▼卧室,bedroom
▼由卧室看花园房,
viewing the garden room from the bedroom
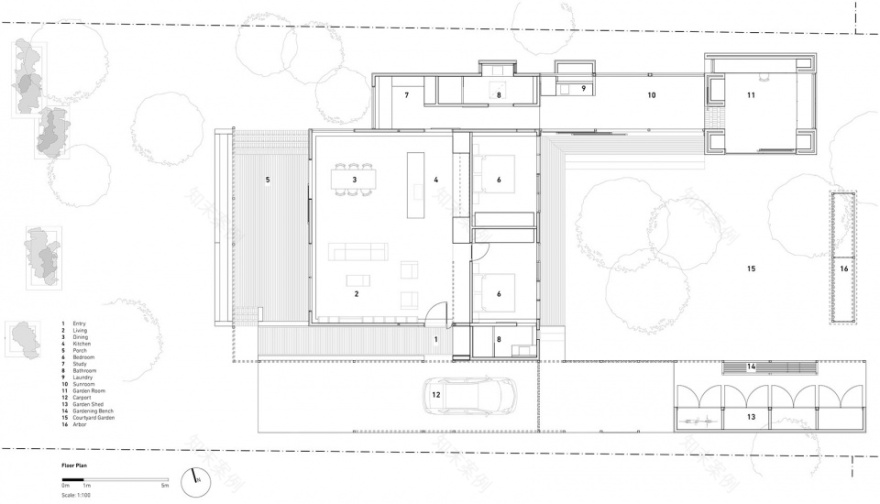
▼平面图,plan
▼立面图,elevation
Project Name:Cloud Cottage
Practice:Takt Studio
Photography:Ingvar Kenne
Project Team
Builder: Bricon Projects
Structural Engineering: Geoffrey Pryke
Windows + Doors: AHJ
Joinery: Forest Furniture
客服
消息
收藏
下载
最近




















