查看完整案例

收藏

下载
【项目名称】:吞 · 元氣食堂
【项目地点】:中国·安徽 芜湖
【项目面积】:约168㎡
【空间设计】:HMZ 几何共社
【总设计师】:何世洲
【平面设计】:黑铅笔
【施工单位】:皖匠制作
【项目摄影】:吴克明、叶良伟
【完工周期】:45天
【主要用材】:镀锌钢板、透光亚克力、光导条、水泥漆、饰面板
【创意阐述】
吞,是芜湖本土日料品牌。本次第三代形象店选址芜湖苏宁广场,由HMZ几何共社联手黑铅笔操刀设计并制作,「吞 · 元气食堂」完全颠覆过去,打破传统刻板的日料店形象。将日漫,二次元,主题剧情结合当下潮流元素将品牌渲染到另一高度。
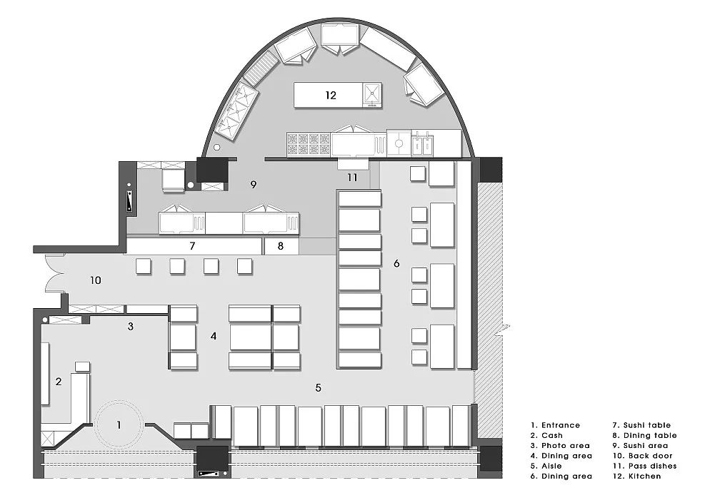
【设计图纸】
【空间简述】
在三店「吞·元气食堂」项目前期,创始人跟我们交流,希望我们能够给三店带来新潮、创意的综合元素,借由我们之手,让他的品牌理念能够更突出的展现。
于是,经过多次团队探讨,发现“吞”所表现的不仅是品牌名称,还能被赋予成有元气、爱美食的小神兽形象。
开场即为亮点,以新潮有趣的IP元素不绝于耳仿佛告诉每一位食客侵入者我们不但有“趣”更有“味”。
以氛围作为开场,温润的水泥酷炫的灯光与板前的厨师似剧场的演绎,热烈低回并置的结构融合人物的往来,设计师多用当下潮流新名词:
二次元、蒸汽波、数码科技、高街等营造出别有洞天的情境。
整体空间以清水混凝土为基调。由于商场内部顶面管道设施及设备繁杂,因此设计师采用裸顶的处理的手法,以此保证空间的层高及通透性。顶部多用广告灯箱元素与炫彩照明去营造整体气氛,让用户有更放松愉悦的心情。
时
系删除
点阅读原文→到首页→搜索框→输入关键字→浏览更多优质案例
:
看更多餐饮空间资讯!
---------------------------------
在变好
看
客服
消息
收藏
下载
最近






































