查看完整案例

收藏

下载
这是昆明的TOD地产项目。楷素设计接到销售中心建筑立面及室内空间、软装陈设的设计任务。楷素设计希望整个项目体现一定的在地性,以及室内空间能体现一定的城市肌理的细节
设计师从昆明“一颗印”民居获得灵感,以“轻盈优雅的一颗印”为概念铺陈功能布置及建筑立面形式。“一颗印”民居的特点是:由正房、耳房、倒座组成四合院,大门居中,正房、耳房自然围合成狭小的天井。瓦顶、土墙、平面和外观呈方形,方方正正好似一颗印章,就称为“一颗印”
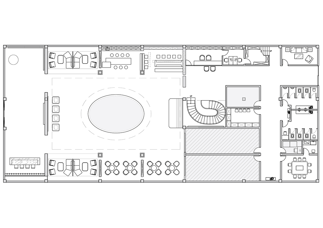
类似于云南民居的照壁,在室内空间的布局上划分出了前厅的位置,以作为接待门厅和企业文化展示的功能,并利用较高的层高,形成拱形长廊
人工模拟的“天光”从椭圆的“天井”上倾泻而下。以轨道、星轨为灵感的线形灯条环绕四周,在为顾客提供一个展示焦点(沙盘)的同时传递一种未来、科技、便利的概念,与项目的主题呼应
天井”下的二层立面是源于传统窗格的竖向格子界面与多孔砖的结合,当多孔砖背后隐藏的灯光点亮,发光的线条与构成面的格子、多孔砖光点的冲突融合形成一种独特的视觉构成美感,使人产生一种未来感的联想
水吧与洽谈区作为“耳房”分立“天井”两侧。水吧区墙、顶、家具(条桌)都采用同一种灰色哑光金属包裹以体现整体感,为更加年轻化的市场定位注入更时尚、更有活力的材质与氛围感,并为后期的相同面积大小的店铺销售提供可参考的店铺样本
销售功能办公区与主展示空间保持连续的动线,为办公实现高效连接并与客人动线区分明确。办公区的通道设计灵感源于地铁隧道及列车
拱形的上部墙顶面采用木质包裹体现出温暖的质感,下部墙面以条形白色瓷砖铺贴,它类似于传统厂房涂刷墙裙的复古形式
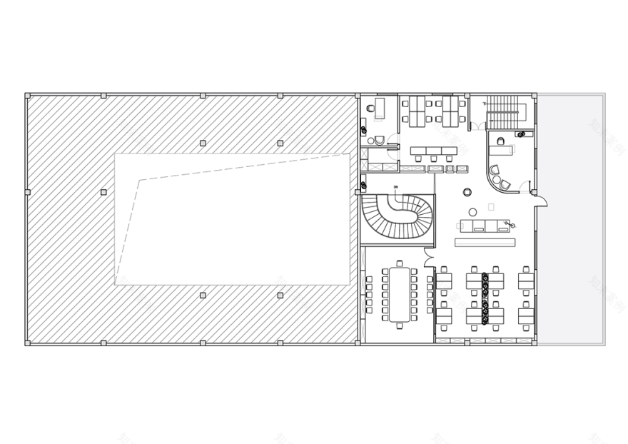
作为管理人员、行政人员、会议室等功能的二层办公区,设计师的初衷是以美术馆的氛围为空间呈现的静谧性。为员工提供一个舒适安静的办公空间
将方柱包裹为圆柱使光在空间中的流动更为柔和,艺术装置形式的挂画同样延续了大厅的“照壁”挂饰
项目名称 | 枢纽曜城销售中心
设计公司 | 楷素设计(KES Design Office)
设计范围 | 建筑立面、室内空间、软装陈设
设计团队 | 赵健、黄凡、林祖朝、黄发军、徐晓梵
甲方团队 | 王泽、李汉兴
项目面积 | 800㎡
设计时间 | 2020.12
完工时间 | 2021.12
项目摄影 | Wakon Wong,黄凡
楷素设计(KES Design Office)
“夫《尔雅》之为书也,文约而义固。其陈道也,精研而无误。真九经之检度,学问之阶路,儒林之楷素也。”
楷素犹楷模。以此传达我们热爱生活、钻研细节、简约表达创意的设计态度。坚持以研究的方式实践设计,坚持探寻项目背后的故事,坚持做真实、有态度的设计。自成立以来曾荣获国际设计传媒奖、AD100 YOUNG、美国Architizer A Awards、意大利A Design Award、APIDA香港亚太室内设计大奖等国内外权威奖项
黄华君 楷素设计(KES Design Office)创办人 设计总监
客服
消息
收藏
下载
最近












































