查看完整案例

收藏

下载
©Ariadna polo
对现有建筑的再利用策略着眼于恢复原始结构和进行细微改造两方面,设计旨在使旧建筑能够适应新用途并优化博物馆的运营。曾经的一个个房间现已化作收藏重要艺术作品的画廊。主画廊的营造主要归功于支撑新屋顶的钢构件,这是一种不会破坏原结构完整性的轻型结构。
感谢
Miguel Concha Arquitectura
圣地亚哥卡博内尔基金会博物馆坐落于克雷塔罗市的历史中心。博物馆通过一系列有趣的作品,回顾了著名画家圣地亚哥·卡博内尔的职业生涯,旨在让艺术更贴近大众。
▲项目概览
©Ariadna polo
博物馆由一座 1760 年代的房屋改造而成,是当地十年城市文化发展规划项目的成果之一。
▲入口立面
©Ariadna polo
对现有建筑的再利用策略着眼于恢复原始结构和进行细微改造两方面,设计旨在使旧建筑能够适应新用途并优化博物馆的运营。曾经的一个个房间现已化作收藏重要艺术作品的画廊。主画廊的营造主要归功于支撑新屋顶的钢构件,这是一种不会破坏原结构完整性的轻型结构。
▲从入口看室内
©Ariadna polo
▲入口通道转角处
©Ariadna polo
庭院是克雷塔罗房屋的代表特色,这个项目中也不例外,庭院连接并照亮了所有画廊。艺术、建筑和历史相互作用,在永恒的氛围中融为一体。
▲博物馆庭院
©Ariadna polo
▲从庭院回望入口
©Ariadna polo
▲主画廊前厅
©Ariadna polo
▲主画廊入口
©Ariadna polo
▲主画廊
©Ariadna polo
▲主画廊采用轻型钢结构
©Ariadna polo
▲楼梯通向二层
©Ariadna polo
艺术家的部分作品和个人收藏现已纳入博物馆中,人们可以在此免费参观基金会提供的展览和项目。设计为这处历史空间的活化创造了新的可能。
▲从庭院进入第二画廊
©Ariadna polo
▲第二画廊
©Ariadna polo
▲第二画廊一角
©Ariadna polo
▲商店©Ariadna polo
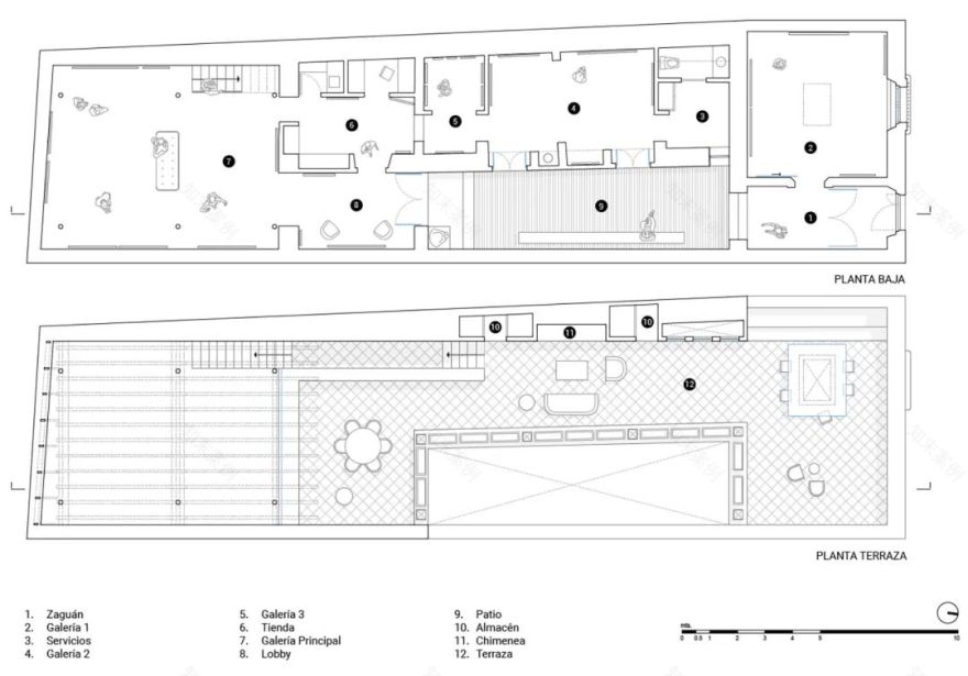
博物馆中有展览室、服务区、商店和欣赏风景的露台。永久展品以艺术家的私人收藏为基础,包含了圣地亚哥一直在抢救的与跨越时间保存下来的作品。
▲夜间灯光
©Ariadna polo
所有这些都汇聚于这个舒适而私密的空间中,坚固的历史元素与轻型结构巧妙结合,通过改造赋予历史建筑更加适应公共文化活动的空间品质。
▲城市夜景
©Ariadna polo
项目图纸
改造分析
©Miguel Concha Arquitectura
平面图
©Miguel Concha Arquitectura
剖面图
©Miguel Concha Arquitectura
Miguel Concha Arquitectura
Miguel Conchya Loyola
Photo: Ariadna polo
Communication: area colectiva
客服
消息
收藏
下载
最近


























