查看完整案例


收藏

下载
《旧约圣经-创世纪》里
上帝在七天内创造的事物,
全都汇聚在这间小小的爱之家中
与造访爱之家的全部自然要素一起生活着。
保坂猛建築都市設計事務所
既非室内又非室外的空间
“如果我要建房子,我一直想住在像室外的房子里
这一切都始于他大学时期他在一个单间公寓里度过的单身生活。当他进入房间时,会感到与外界隔绝,当第二天早上打开门时,则又会体验到一种强烈的被释放的感觉,他觉得他终于摆脱了一种束缚。
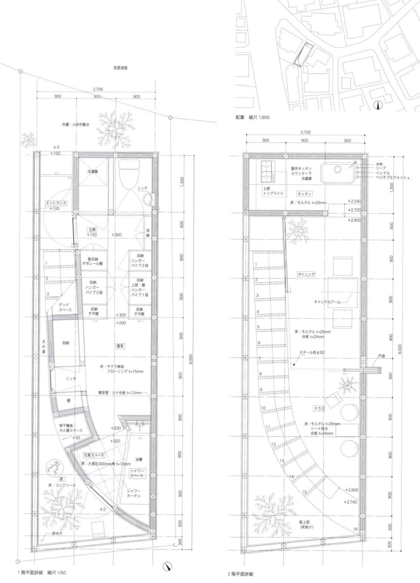
这所「LOVE HOUSE」便是他所说的像室外的能够感受到外界环境的房子。这所住宅由他与妻子两人使用。建筑矗立在一个3m×10m的狭窄地块上,保坂猛沿场地的对角线画了一条曲线,这面弧墙贯穿整个建筑,划分了屋顶的形状,也限定了楼梯的走向,不仅光线,就连雨水和风也可以从环绕场地的墙壁和屋顶之间进入,实现了一种“既非室内又非室外”的空间状态。
二楼的客厅在室外楼梯的两边有通高的玻璃,其中一半以上可以打开。当完全打开时,这所房子就真的像“一个在室外的房子”!
33平方米场地上的夫妇住宅,一打开入户门,就会看到露天空间,迎面是通往二楼的楼梯。楼梯沿着弧墙优雅旋转,从一楼看不穿二楼的顶部。台阶宽70cm,容一人舒适得通过,踏板为45cm,比通常的尺寸宽一倍。人悠闲地登上长而宽的楼梯,这种体验是在狭窄的房子里无法实现的。虽然局部的比例有些失调,但你会因此忽略房子的大小。
从早到晚,住宅内部光环境的变化,能够清晰地刻画出时间流逝的过程。
白天阳光充足,基本不需要人工照明,到了夜晚仅需几盏蜡烛即可勾勒出整个房间的轮廓。
上午6点太阳光开始隐隐绰绰出现在墙上,中午时分能够照到门口。到了下午阳光会从对面的墙壁和地板上开始缓缓上升。
下雨的时候,屋顶的曲线边缘会挂上一层“雨帘”,雨水会因为疾缓和方向的不同,呈现出或微弱或激烈的声音。无论是阳光还是月光都可以在建筑内畅游,雨和风的来访,树木上鸟和虫的暂留,建筑每一天的样子都是不一样的。虽然只有33平方米,但却能真切感受到大地上各种自然要素的存在。夫妻二人享受着这个空间带来的生活丰富性,以至于家里连电视都没有买。
在「LOVE HOUSE」里,阳光射入室内,听着雨,吹着风,既不是室内也不是室外的空间。兔子“asplund”在室内室外自由地玩耍。
在寒冷的冬天,两扇大大的落地窗划分了室内和室外的空间。
一层寝室里阳光也能照射进来。
当我居住在「LOVE HOUSE」中时,能够强烈地意识到天地被创造的时候,人类五感所经历的事情被深深地刻在我们的感官和本能之中。
客服
消息
收藏
下载
最近





























