查看完整案例

收藏

下载
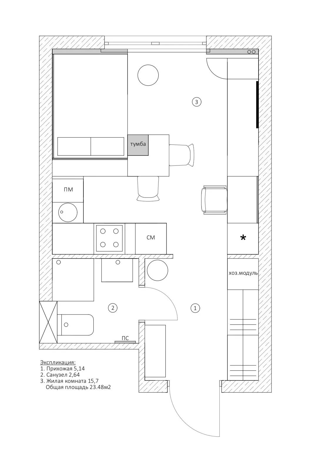
这套23㎡小型单间公寓专为一对年轻夫妇设计,采用轻质斯堪的纳维亚风格设计。令人惊讶的是,所有主要的住宅功能区都在15.7㎡上。设计师Anna Smolyakova设法将厨房、餐厅、卧室、客厅和办公区放在一个房间内。
线性图形和节奏是一室公寓设计的结构基础,每个细节的流动功能将内部变成一个单一的有机体,所有元素在逻辑上相互关联。
复杂和多功能解决方案的概念在这种紧凑的工作室中特别有效。
在垂直板条制成的分区隔板的帮助下,厨房与卧室分开。透过板条,自然光从一扇大窗户射进来,充满光线。内置电器:洗碗机和洗衣机、四头炉灶、烤箱和方便水槽。右侧厨房台面的狭窄部分用作带有存储空间的额外工作台面,并作为厨房和卧室之间分区隔板的可靠基础。
该项目的配色方案是自然的,背景表面的颜色平静,带有少量天然灰绿色和精致的桃色。混凝土纹理、深灰色、反光表面、铜配件和纹理地毯为环境增添了多样性。垂直元素的节奏平衡了空间的比例,而深色石墨创造了对比。
在起居区,靠窗的小衣柜有架子和放电视的地方,还有一个可以容纳三个客人的沙发座椅。
电视后面的灰色混凝土纹理面板与走廊的壁橱和橱柜相呼应,
电视右侧有一个舒适的桌面,墙上有垂直板条。
客服
消息
收藏
下载
最近



















