查看完整案例

收藏

下载
©Fábio Jr. Severo
对于这个火柴盒的设计,我们试图摆脱传统,以极简主义为参考,将其转化为构成项目概念的有机形式。浅色调的基础是为了给空间带来更大的气息,并作为一张空白的画布,在项目中的某些地方进行绿色的设计,这是品牌的标志。
Fábio Jr. Severo
Fábio Jr. Severo
Fábio Jr. Severo
Fábio Jr. Severo
Fábio Jr. Severo
该环境包括一个专门经营抹茶的咖啡店,以及一个协同工作空间。整个项目的设计是基于在空间内快速开展活动所需的功能。为环境提出的简洁美学,导致了一个沉思的、平静的空间,没有许多视觉干扰。因此,工作室也设法开发了空间内的一些家具,如桌子、椅子和其他一些元素。
Fábio Jr. Severo
Fábio Jr. Severo
Fábio Jr. Severo
呼叫中心的家具是用瓷砖设计和覆盖的,使用一种不那么传统的材料,给项目带来更大的个性。地板和墙壁被涂上水泥基材料,为项目创造了一个中性背景。在浴室里,一些逃避现实的元素被设计出来,唯一的目的是让进入的人感到惊讶。在项目的外部区域,瓷砖也被使用,现在应用于外墙,创造了一个有节奏的背景。所有这些方面与一个好的项目一起工作,导致了一个增加美学、功能和个性的空间。
Fábio Jr. Severo
Fábio Jr. Severo
Fábio Jr. Severo
Fábio Jr. Severo
Fábio Jr. Severo
Fábio Jr. Severo
Fábio Jr. Severo
Fábio Jr. Severo
Fábio Jr. Severo
Fábio Jr. Severo
Fábio Jr. Severo
Fábio Jr. Severo
Fábio Jr. Severo
Fábio Jr. Severo
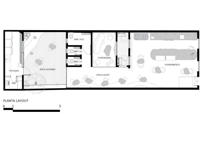
项目图纸
平面图
▲分解轴测图
项目信息
建筑师 : Studio Guilherme Garcia
面积 : 130 m²
年份 : 2021年
照片 : Fábio Jr. Severo
制造商 : Deca, Miaki, Pedecril, Save Energy, Suvinil, Tramontina, iluminar
首席建筑师 : Guilherme Garcia
合作者 : Breno Schmidt
室内木制品 : Patrick Nicácio
城市 : Florianópolis
国家 : 巴西
客服
消息
收藏
下载
最近


























