知末
知末
创作上传
VIP
收藏下载
登录 | 注册有礼

维尔纽斯明道戈街公寓丨立陶宛维尔纽斯

2022/07/07 15:29:00
查看完整案例
微信扫一扫
收藏
下载
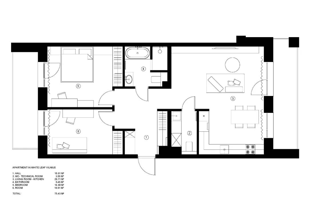
维尔纽斯明道戈街公寓丨立陶宛维尔纽斯-0
一对年轻夫妇的公寓内部具有干净的城市美感。基本功能 - 简单、舒适和整洁。
维尔纽斯明道戈街公寓丨立陶宛维尔纽斯-2
色域以白色、灰色和漂白橡木纹理为主,带有黑色调。
维尔纽斯明道戈街公寓丨立陶宛维尔纽斯-4
维尔纽斯明道戈街公寓丨立陶宛维尔纽斯-5
维尔纽斯明道戈街公寓丨立陶宛维尔纽斯-6
维尔纽斯明道戈街公寓丨立陶宛维尔纽斯-7
维尔纽斯明道戈街公寓丨立陶宛维尔纽斯-8
维尔纽斯明道戈街公寓丨立陶宛维尔纽斯-9
维尔纽斯明道戈街公寓丨立陶宛维尔纽斯-10
维尔纽斯明道戈街公寓丨立陶宛维尔纽斯-11
维尔纽斯明道戈街公寓丨立陶宛维尔纽斯-12
维尔纽斯明道戈街公寓丨立陶宛维尔纽斯-13
维尔纽斯明道戈街公寓丨立陶宛维尔纽斯-14
维尔纽斯明道戈街公寓丨立陶宛维尔纽斯-15
本文素材图片版权来源于网络,
如有侵权,请联系后台,我们会第一时间删除。
建筑 | 室内 | 设计 | 艺术
南京喵熊网络科技有限公司 苏ICP备18050492号-4知末 © 2018—2020 . All photos and trademark graphics are copyrighted by their owners.增值电信业务经营许可证(ICP)苏B2-20201444苏公网安备 32011302321234号
客服
消息
收藏
下载
最近