查看完整案例

收藏

下载
陈锋
璞素空间设计·设计总监
盖盖
璞素空间设计·设计总监
Time is the best friend of a lifetime 时间,一生挚友
时间有形
TIME HAS SHAPE
项目由璞素空间设计为青春与诗章设计的首家 SPA 概念旗舰店。设计围绕“时间,一生挚友”的视角展开,试图在空间中为访客带来时间的自由、沉淀,并得以升华。打造一个具有独特个性的商业空间,同时符合品牌的商业调性,为人留住青春与时间。
《记忆的永恒》画家用一种几乎流动的视觉表现时钟,原本坚硬的物质变得柔软、流动,这种荒诞的表现手法赋予我们新的灵感,我们开始重新思考“时间”的表述方式。
△设计手稿
LOGO 设计以符号为原型,同时利用品牌名称本身的特点,设计出仿佛腕表一般无限循环的环形,构成标识的字母元素似曲而直,在坚韧与灵动中取其真。
而在空间的设计上,也沿用 LOGO 的设计思路,将平面的图形意象映射于立面的空间上来。
时间为媒
TIME AS MEDIA
空间糅合两种矛盾:曲与直,灵动与坚韧。
线条错综复杂,却又铿锵有力,在结构中不断流转。空间被切割出层次分明的块面,时光流逝的痕迹,无以言表,可在此间,交错纵横,皆为时间的表象。
光随结构而生,时隐时现。空间的矛盾性与戏剧感通过轮廓、角度和材料的呈现,使其变得可观可感。
时间的意义在此间被定格,再被不断拉伸、延展,最终化作空间的气场,充盈其间。
明暗相合
LIGHT AND DARKNESS
叙述被一次次打断,空间看似完整,却又被切割成一个个相对独立的块面。虚实之间,令人应接不暇。视线透过被刻意留出的空隙在空间中来回逡巡,这种窥微知著的探秘感,引人深入。
最大化减弱来自外界光照影响之后,空间得以存在稳定的色相,设计过的灯光照射在不同的肌理表面,投下的阴影彼此交错。与外界沟通被打断后,时间仿佛被停止,拘于一室之内。
线条流转,如丝带飘逸,一路蜿蜒前行,引领脚步不断跟随,曲与直划下完美平衡,构建出如同建筑般的张力空间,深邃静谧,引人不住向上张望,向着虚无张望。
矛盾与和谐 CONTRADICTION AND HARMONY 转入空间内部 SPA 的疗愈房间,狭长的过道,一边是窗外寂寥的光晕浅送,一边是长方形的房间鳞次栉比地排列,裸露的水泥粗狂。
纵深的廊道却极富细腻的禅意,从门口弧形的寂静通道一路向内而行,大厅处喧闹张扬有破千军之势,内部 SPA 区静谧温柔如春风拂动。
里外空间,动静相声,情绪转换,矛盾,在空间中一直存在,再得以和解。
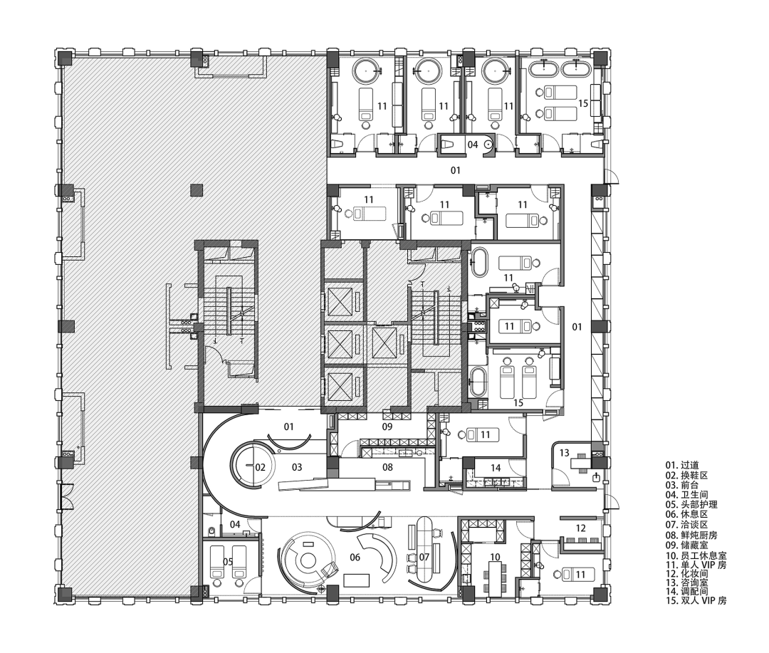
平面布置图
项目名称:青春与诗章
设计公司:璞素空间设计
项目地点:浙江·衢州·龙游
主案设计:陈锋 盖盖
设计团队:陈崇洁 德华 杨道涵 李洁
项目面积:500m²
项目摄影:吴昌乐
设计时间:2021.03
完工时间:2021.11
主要材料:艺术漆、镜面板、瓷砖
文字/图片:璞素空间设计
COMPANY
设计公司
璞素空间设计
范围涵盖人性住宅空间、商业空间,从前期规划到全案设计,从生活方式和商业逻辑出发,顺应自然、追求极致,将审美理念融入到空间中。
璞素的理念里,大自然不是用以征服的对象,而是人们赖以生存的场所,人生于自然之中,也最终回归到自然中去,璞素好比一把钥匙打开空间与自然的关系,重人文、亲土地、为人着想、和环境互动与自然和谐。
减少到本质,但不要剥离它的韵,保持干净、纯洁,但不要剥夺生命力。现代主义与传统美学同时融合,更加符合当代人的审美,实用性与观赏性之间实现了平衡。
“为人类创造一个舒适的空间”荣誉:
入选《中国室内设计年鉴》2021
TINTA 金邸奖商业空间提名奖
2020 酷+创造营全国六强
2020 金腾奖全国 TOP100 强
2020 年陈设中国·晶麒麟奖优秀奖
2020 第十八届国际设计传媒奖年度软装陈设空间大奖
2020 老宅新生设计奖年度最佳商业空间
2020 红棉奖室内设计奖
2020 年第十五届金外滩奖-最佳休闲空间优秀奖
2020 金堂奖年度杰出休闲娱乐空间设计
2020 金住奖最佳居住空间
2020-2021 筑巢奖商业空间-休闲娱乐优秀奖
2020 中国设计头条年鉴榜年度优秀设计项目
2020 年 40under40 中国(温州)杰出青年城市榜
第八届中国国际城市设计周 2020 年度设计行业菁英人物
2018 金外滩奖居住空间类优秀奖
往期回顾
载为青年设计发声第一时间接收精选内容
客服
消息
收藏
下载
最近










































