查看完整案例

收藏

下载
【空间名称】:吴•现代潮菜【空间地址】:中国·深圳【空间面积】:800㎡【设计公司】:艾克建筑设计【主创设计】:谢培河【施工团队】:深圳博韬建设有限公司【照明顾问】:赫光照明设计有限公司【家具团队】:雅丽木业【V I 设计】:林韶斌【空间摄影】:欧阳云【空间主材】:不锈钢、日本纸、亚克力、摩根智能、金属网、岩板、意大利手工漆、定制木地板
【创意阐述】“吴”现代潮菜,坐落于深圳华侨城总部大厦E1座,背负着传承潮菜的使命与梦想,餐厅由8间包间/大厅/威士忌吧/红酒房构成,打造极具美学的新潮州菜与充满建筑诗意的空间环境。
继汕头吴CLUB一年后,艾克建筑设计团队认为,深圳吴现代潮菜的诞生,论证了吴CLUB对餐饮空间与商业模式探索的成功。我们将其设想为现代性的一种能量,以进步观念作为主导,用一种处于暂定状态的规则去营造一种独特的空间状态,空间中所发生的事件才是空间存在的价值。
【设计图纸】
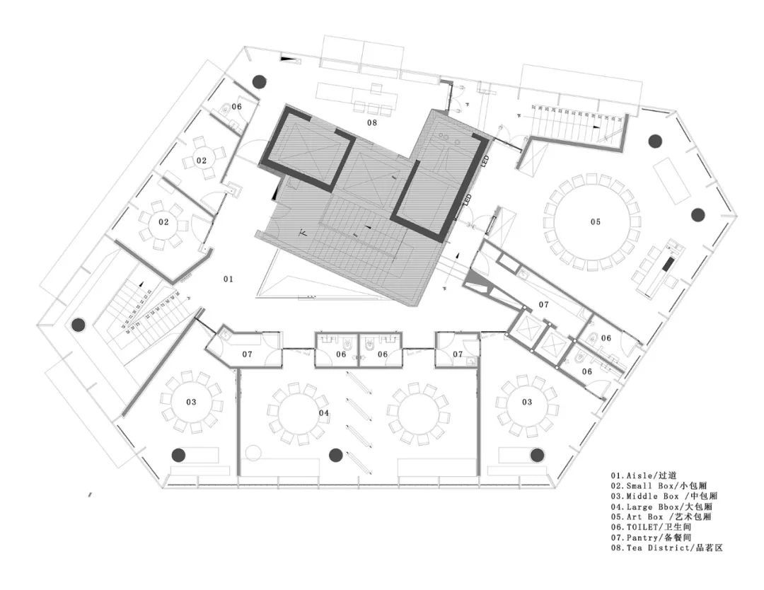
一层平面图
▲二层平面图【空间简述】“山有小口,仿佛若有光,复行十步,阔然开朗”。空间的建筑逻辑延伸了建筑本身的自由性。平面自由多样,强调空间的诱惑性。挑战人们既定的建筑价值观和被捆缚的想象力。低调的入口,封闭的电动门,以小见大的空间营造,曲径通幽的空间秩序,一切都在描绘着诗意的建造情境。
▲曲径通幽的空间秩序
大厅的构成以墙面灰色艺术漆与木地板进行围合,重点强调与室外绿洲的联系,同时金属天花造型来强调空间的时尚与商务气息,这是一种冷静的舒适。
▲大厅用餐区
▲金属天花造型
▲细节金色的电动门缓缓移动,进入我们视野的是前台接待与水吧功能结合的多功能服务区,发光的玻璃酒柜,显得轻盈又具有高级感。接待台前方的阵列木盒子,有效的强调了大厅的私密性用餐体验的同时,产生了强烈的建筑秩序感,吧台顶部用当代的几何造型与手工的编制木手艺进行碰撞,围合出了让人具有探索欲望的空间情境。
▲服务区设计示意
▲多功能服务区
▲俯瞰吧台
未来我们理解为一种我们想要去触碰的理想状态。吴,让我们进入了二次元的精神世界,像极了电影的虚拟世界,是超现实、夸张、抽象的,一种未来感的物质表象,有叙事性,可以通过空间来串联和联系一系列的事件,这是一个有趣和戏剧化的场景。
▲从楼梯望向吧台连接空间一二楼的黑色楼梯,用雕塑建筑的形式呈现,具有强烈的视觉冲击力与引导性,这是一个功能与美学共生的体现。
▲楼梯设计示意
▲黑色楼梯连接空间一二楼
▲楼梯区域
光在空间中一种是被充当传达物理现象的一种介质,在设计的思考中,艾克建筑认为光本身就是一直显性的物质,应该作为空间中看得见的主体来呈现,通过光的物质性来传达人的精神世界,神秘、安静、虚幻的情绪因光而涌现。
通道空间作为一个人停留时间最短的空间,在设计中很容易被忽视,这些灰空间没有具有强烈的功能性,反而是感性设计表达的最佳方式,在通道的梳理中,一直无限度、空洞、自由的状态创造了曲径通幽的东方美学。
▲通道设计示意
走廊光影
负空间中的行为才是主体,行为的发生所衍生的故事是内核。
在空间中一种是被充当传达物理现象的一种介质,在设计的思考中,艾克建筑认为我们所产生的物体,围合而成的空间,具有强烈指向性与目的性。
它是看不见的却是被使用的,应该作为空间中看得见的主体来呈现,这些行为才是我们设计的主体。
当人在空间中获得愉悦,意味着不属于真实的游戏规则在变成价值,我们都开始在这个游戏中获得利益。
▲包厢
包厢细节
包房的设计强调与周围环境的对话,以简洁的建造语言,强调舒适与焦点,强调人与人的互动与交流,绿色与红色的纸质感,具有汉代东方的色彩韵味。
以一种不规则的空间形态出现,像自然围合又像建筑的延伸,像意外又像有意而为之,营造了意外的确定感。
▲包房设计强调与周围环境的对话
▲包厢室内
空间构成理念是一个被折断掏空的雕塑体,让现实变得虚幻。而这样夸张的表达方式,离不开艺术的张力。
▲空间细节
对手工漆的材料表现形式进行实验性的创作,在灰色艺术漆中加入了金属颗粒,意外的拥有混凝土的质朴的同时拥有华丽的视觉,结合地面木地板与金属材料的碰撞,软硬互相推让与和谐,冷暖色彩的交替,表现的是冷酷与温度的和谐,并将诱惑、幽默、神秘等元素融入空间的建造体系中。
▲艺术包厢设计示意
▲艺术包厢
▲细节吴是艾克建筑设计团队在用西方的设计秩序来建树东方的空间情绪与哲学。曲径通幽,以小见大,张扬且含蓄,一场东西方美学哲学碰撞。
▲室内一角
时系删除
点阅读原文→到首页→搜索框→输入关键字→浏览更多优质案例
看更多餐饮空间资讯!
在变好看
客服
消息
收藏
下载
最近


















































