查看完整案例

收藏

下载
i2A Architects
i2A是来自印度的建筑工作室,精心的设计不仅反映了他们对建筑的热情,还体现了对设计创新和实用性地不断追求。当客户向i2A提出艰巨的设计挑战时,他们会认为自己是成功的,因为客户会想到自己,并给自己机会去创造独特的设计。
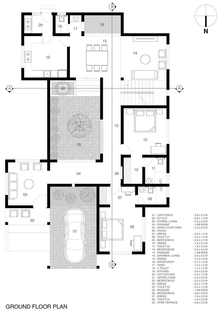
这是一个260㎡的私人住宅,矗立在喀拉拉邦郁郁葱葱的绿色植物和迷人的自然美景中。设计师希望通过周边环境和内部设计,创造一个使人内心平静的、能体会真实的美并有实用价值的建筑。
不同高度的坡屋顶组成了一道迷人的风景,多层次的印度传统建筑特色也体现于此。
设计核心是围绕中央庭院搭建起与其他部分的联系,门廊和休息区有着独特的景观,以精致的红土瓷砖做点缀。环绕庭院的通道保证隐私的同事,又可以做屏风。
本案是热带现代主义的集中体现与景观的无缝融合。设计师在设计的时候既考虑到隐私问题,又使住宅成为一个可供观赏的“景点”。因为房子朝东,所以设计师在四周为空气的流动做了很多
一进门,就会被室内空间的光景震撼。庭院在房子的南侧和北侧紧邻它,光线充足的客厅可以让人忽略室内与室外的差别。
本案在外观上突破传统印度建筑特色,以现代主义手法和开放式概念为主,打造了一个独特的住宅。在房子的门槛处红色和绿色营造欢脱、跳动的氛围。起居室、餐厅和厨房连成一排,保证在室内的活动始终是开放和连续的。
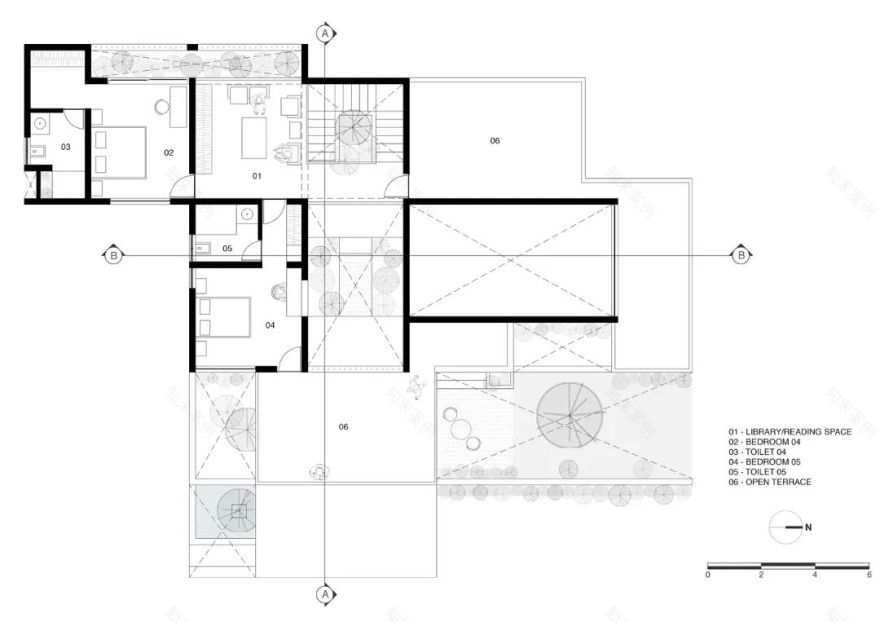
庭院通过有呼吸感的墙壁和植物为空间增添了活力。这所房子共有3间卧室——两间在底层,一间在第一层,考虑到要求的隐私,这些卧室被分区和放置。室内装饰着极简主义的家具和胶合板设计,有助于增加空间的视觉容量。
客服
消息
收藏
下载
最近























































