查看完整案例

收藏

下载
©Triệu Chiến
这所房子是由一栋老房子和一家小餐馆结合起来翻新的。房子的旧空间是商业和住宅的混合体,这给家庭生活带来了很多不便,也极大地影响了餐馆的生意。设计的目的是对房子进行改造,创造一个独立的空间,保证生意以及多代同堂的家庭成员的生活环境。
©Triệu Chiến
©Triệu Chiến
©Triệu Chiến
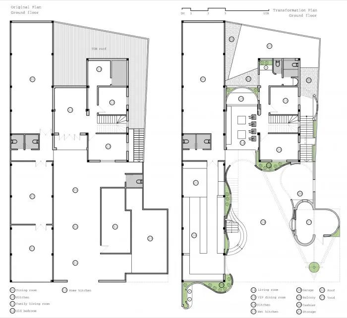
家庭的生活空间被拉下来(半负的部分),人们可以看到稻田。上部为餐厅区,有功能空间,如停车场、厨房区和提供民族菜肴的木炉。餐厅的功能室分布在1楼的封闭房间和2楼的大厅。古老的楼梯直接从院子里往上连接,形成通往上层的私人通道。
©Triệu Chiến
©Triệu Chiến
利用当地现有的旧材料和旧房子的一部分,使建筑更简单,适合这里的当地人,这里仍然是松萝省的一个贫困地区。大厅房间的屋顶呈对角线45度,与老房子的瓦片屋顶交织在一起,这样,从这里所有的功能室都可以获得光线,可以看到大大小小的院子,周围的一条条山丘和梯田。
©Triệu Chiến
©Triệu Chiến
上面的院子为餐厅区,下面的院子为生活区,组织起来可以容纳不同的功能。这里会有阳光,有风,有隐私。房子是稻田绿色空间的延续。新旧瓦片的红色相融合,给人以特别而和谐的感觉。它是新和旧的延续,是变化和发展的延续。
©Triệu Chiến
©Triệu Chiến
©Triệu Chiến
©Triệu Chiến
©Triệu Chiến
©Triệu Chiến
©Triệu Chiến
©Triệu Chiến
©Triệu Chiến
©Triệu Chiến
©Triệu Chiến
©Triệu Chiến
©Triệu Chiến
©Triệu Chiến
项目图纸
▲
平面图
▲
平面图
▲
平面图
▲屋顶平面图
项目信息
建筑师: Trung tran Studio
面积 : 600 m²
年份 : 2021年
摄影 : Triệu Chiến
制造商 : AutoDesk, Xingfa
首席建筑师 : Trần Mạnh Trung
室内设计师 : Trần Mạnh Trung
结构工程师 : Do Van Duy
暖通空调顾问 : Do Tat Luan
承包商 : Tran Dai Phong
城市 : Bắ Yên
国家 : 越南
赞
客服
消息
收藏
下载
最近



























