查看完整案例

收藏

下载
Rui Vieira Oliveira architect是一家位于葡萄牙的建筑设计事务所,主理人Rui Vieira Oliveira善于将极简主义的设计美学与场地环境相结合,创造出打动人心的现代主义作品。同时,他也在不断尝试突破固定风格的限制,为灵感和创意如何落地实现而寻找能够完全契合的解决方案。
Villa Estoril
卡斯卡伊斯是葡萄牙著名的滨海旅游胜地,这里气候四季如春,是宜居的最佳之选。Villa Estoril坐落在卡斯卡伊斯的一片林地之中,住宅的空间布局顺应场地的斜坡地形,底层为露天的户外泳池,客厅和餐厨空间通过半层的高差设计进行分隔,并保留了外向的宽阔视野。
住宅的二层相较一层更为私密,建筑内退的体块变化形成了丰富的光影效果,也使得外立面更具有节奏的韵律感。除此之外,Rui Vieira Oliveira还将其与观景的玻璃窗相结合,在保证隐私的同时提供远眺的丰富视野。
Villa Guimarães
在一片绿意盎然的景观中,Villa Guimarães以其暗红色的外立面吸引着人们的视线。Rui Vieira Oliveira延续了一贯的极简主义设计思路,将建筑的结构隐藏在利落的墙体线条中,保持视觉效果上的统一和纯粹。同时,团队还利用场地的高差变化来对空间进行自然的切割,并在上下体块之间留出了一块内嵌式的绿地和间隔来过渡地势高差的变化。
Taíde House
葡萄牙·波瓦-迪拉尼奥苏
Taíde House位于葡萄牙北部的一个同名小村落中,“简洁、与环境友好和精巧”是客户给出的关键词,在考察了原始地形和周边环境后,团队决定在可持续的前提下创造一个动态的建筑形体,并以灵活的空间组织适应对生活方式的不同需求。
住宅的一层是社交区域,双层挑空的客厅通过玻璃推拉门与庭院相连,并预留出了充足的活动空间。二层是主要的休息区,共有两个带独立浴室的套房。为了保证住宅良好的热性能,团队在屋顶和外墙上增加了外部隔热系统(ETICS),以适应当地的特殊气候。
Brunhais House
Brunhais位于葡萄牙北部,是一个被群山包围的小村庄,这座通体白色的建筑就坐落于此。为了适应起伏不平的地形,住宅被拆分成两个体块,并凭借中心的走廊联系。其中纯白色的体块为家庭的生活区,间夹着灰色石材的区域则是业主工作和举办社交活动的场所。
住宅的主入口与中心的走廊相连,而走廊的另一侧位置是庭院,再过去就是曾用于农业生产而如今被改造为简洁的草坪,为居住者提供户外运动的场所。从远处看,Brunhais House就像一个竖立在岩石上的白色雕塑,用动态的几何线条演绎建筑的美学。
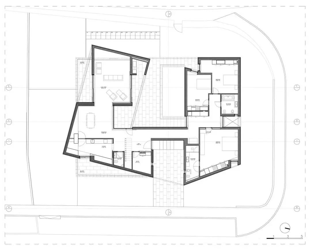
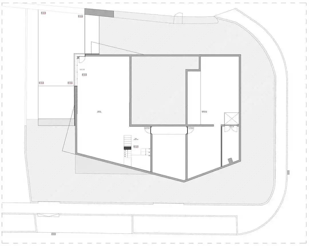
Villa Areeiro
Villa Areeiro位于一片人烟稀少的林地之中,双层高的建筑顺应地形嵌入坡地内,同时在上下两层都设有开放性的出入口。二层的泳池正对通透的客厅,并在宽度上恰好与出挑的外部走廊相对应,强化立面线条的延伸和韵律感。
撰文: YouChuan
版权:Rui Vieira Oliveira
建筑 | 室内 | 设计 | 艺术
客服
消息
收藏
下载
最近
























































