查看完整案例

收藏

下载
©H.G._ESCH
中信大厦的设计灵感来自“尊”,这是一种起源于中国青铜时代的礼器。在外形上,塔楼抽象化借鉴了“尊”的器皿造型,使其平面语言与结构要求和租赁深度需求保持平衡。建筑采用了带有圆角方形平面,宽度在竖向上发生变化,底部宽 78 米,中心宽 54 米,顶部宽 69 米。塔楼底部较之塔冠更宽,将其标志性与功能性完美结合,塔楼设计满足抗震设防的要求。
感谢 KPF
中信大厦(中国尊)高 528 米,是北京最高的建筑,中国第四高和全球第八高建筑。中信大厦建成后成为首都的皇冠之珠,引领超高层建筑新范式:即融入历史文化,同时又保持形式和技术创新。
▲中信大厦(中国尊)是中国第四高和全球第八高建筑
© H.G._ESCH
中信大厦的设计灵感来自“尊”,这是一种起源于中国青铜时代的礼器。在外形上,塔楼抽象化借鉴了“尊”的器皿造型,使其平面语言与结构要求和租赁深度需求保持平衡。
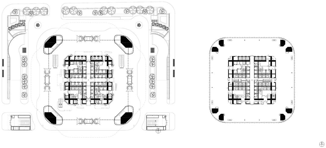
▲首层和标准层(低楼层)平面图
© KPF
建筑采用了带有圆角方形平面;宽度在竖向上发生变化,底部宽 78 米,中心宽 54 米,顶部宽 69 米。塔楼底部较之塔冠更宽,将其标志性与功能性完美结合,塔楼设计满足抗震设防的要求。
▲塔楼外观抽象化借鉴了“尊”的器皿造型
© H.G._ESCH
▲塔冠
© H.G._ESCH
塔楼底部弧线造型与地面完美结合。大堂独特的向上弯曲造型与塔楼凹槽式、朝相反方向的悬垂褶皱相映成趣,为行人体验提供了生动的背景。内部顶篷采用了定制铝肋,遵循同样的曲率逻辑,与塔楼优雅的立面表达相呼应。
▲街道层视角
© Rex Zou
▲塔楼底部的悬垂褶皱
© H.G._ESCH
“在设计中,我们把这座城市最高的塔楼看作是城市历史和人民的表现,我们把它作为一个公共实体来设计,轻盈精致的表皮幕墙在底部弯折,形成建筑的各个入口。它似乎漂浮在地面之上,激活了地面层的行人流线和活动,并最终提升了建筑和整个区域的公众参与度。这种塔楼与景观的协同,以及建筑所采用的简约雕塑造型,共同定义了中信大厦。”——设计负责人 Robert Whitlock。
▲建筑入口
© H.G._ESCH
北京 CBD 建筑密集,有大约 20 栋高层建筑,此外还有线型公园、地下广场和位于核心区域的停车设施。中信大厦位于北京 CBD 北部,是公园的标志性背景,同时也是著名的新建必达地。塔楼将人行走廊系统,B2 层流线和横跨三个地铁站的四条地铁线相连,形成巨大的地下交通网络。
▲中信大厦成为城市的标志性背景
© H.G._ESCH
关于项目的设计挑战,设计总监李磊表示,“KPF 希望将中信大厦打造为这个新建中央商务区的中心,它既要是理想的当代建筑,同时又要与这座历史悠久的都城保持和谐。我们抽象出了“尊”的优雅造型,专注于其形式的渐变,并将这一概念应用于不同的尺度:从塔楼的整体体量,一直到它的幕墙,入口门厅以及内部细节。总之,我们认为,中信大厦优雅的天际线轮廓,充满活力的沿街布局,通透的大堂以及观光厅,这些都是其建筑使命的最好诠释。”
▲大堂
© H.G._ESCH
▲建筑内部
© H.G._ESCH
▲大堂© Rex Zou
▲电梯© Rex Zou
528 米高的中信大厦成为 KPF 设计的又一超高层建筑。全球 11 栋最高的建筑中有 5 栋为 KPF 设计项目,其中包括深圳平安金融中心(全球第四高建筑),首尔乐天世界大厦(全球第五高建筑),广州周大福金融中心(全球第七高建筑)和上海环球金融中心(全球第十一高建筑)。
中信大厦包括中信集团总部和中信银行,以及出租办公区和多功能商务中心。TFP Farrells 建筑设计事务所提供了最初的地块竞标概念设计,之后 KPF 基于其丰富的高层建筑设计经验以及对中国传统艺术的深入理解和诠释,打造出独特的设计解决方案。
▲入口顶蓬夜景
© Li Lei
设计团队
建筑设计
标地阶段概念设计:TFP Farrells、北京市建筑设计研究院
概念和方案设计:KPF(设计牵头方)、北京市建筑设计研究院(设计总负责方)、中信建筑设计研究总院(结构试桩施工图)
- 初步设计:KPF(外壳体和主要公共空间内装设计的牵头方)、北京市建筑设计研究院(其他部分设计的牵头方)
- 施工图设计:北京市建筑设计研究院(牵头方)、KPF(与幕墙顾问合作幕墙招标图和文件)、中信建筑设计研究总院(协助方)
- 施工阶段:北京市建筑设计研究院(牵头方)、KPF(从设计意图方面审核幕墙施工图纸和样板)、中信建筑设计研究总院(业主配合方)
结构设计:Arup 奥雅纳、北京市建筑设计研究院
机电设计:PBA 柏诚、北京市建筑设计研究院
主要顾问公司:
幕墙顾问:ALT
照明顾问:BPI 碧谱
擦窗机顾问:ALTITUDE
风环境顾问:RWDI
交通顾问:MVA
可持续设计和 LEED 认证:清华大学、EMSI
消防顾问:ARUP 奥雅纳
施工文件审核:Mori 森大厦
水景设计顾问:Fluidity
标识顾问:Rei Design
客服
消息
收藏
下载
最近

















