查看完整案例


收藏

下载
Common Ground Workshop受委托按RIBA制定的0-5阶服务标准对一处地产进行了全面翻新,项目包括为伦敦市中心靠近斯皮塔菲尔德和布里克巷的一栋四层三卧的家庭住宅提供室内外设计。
Common Ground Workshop were appointed to undertake a full RIBA stage 0-5 service for an extensive renovation at the property, and to provide interior and exterior designs for a 3 bedroom, 4 storey family home, located in Central London in close proximity to Spitalfields and Brick Lane.
▼空间概览,overview of the interior space
当CGW接手任务时,由Studio Idealyc负责的各层建筑的初步布局和局部施工已在原结构的基础上展开。通过对上层混凝土墙、混凝土楼梯、地板以及屋顶天窗进行改造,CGW开发了一系列极简、灵活并可持续的空间,旨在满足业主当前的需求。
When CGW took on the commission, the site comprised the original structure as well as the initial layout work and partial construction of the building superstructure at all levels, undertaken by Studio Idealyc. CGW worked with the concrete superstructure walls, concrete stairs and floors, and the roof dormer construction and developed a series of minimal, flexible and sustainable spaces that responded to the owner’s current needs.
▼入户楼梯,stairs at the entrance
光线和外部空间的渗透是设计理念在不同层面上的基本原则,首层和地下室与屋后的休闲花园以及一系列袖珍露台相结合,形成了视觉联系,对自然光予以充分利用。
Light and access to exterior space are fundamental tenets of the building’s design philosophy at all levels, and the of the ground and basement levels intermingle with the rear relaxation garden and a series of pocket terraces to create visual connectivity and to harness an abundance of natural light.
▼起居空间,living space
▼庭院旁的餐厅,open dining space by the courtyard
▼餐厅一角,view of the dining space
▼花园天井,view of the patio
设计采用微混凝土、木材、生石膏、锌、石灰石、鹅卵石、砾石以及黑色金属等原材料,提出了一种温暖简约的搭配方案,旨在最大限度地提升原材料的质感,加强视觉和触觉体验。
The scheme design proposes a warm and minimal materials palate that seeks to maximise the texture and inherent visual and tactile qualities of raw materials such as micro-concrete toppings, timber, raw plaster, zinc, limestone pebbles and pavers, and blackened metal linings.
▼厨房区域,kitchen
首层和地下室由宽敞的开放起居室和用餐空间组成,与前后的“禅宗”花园形成了直接的视觉联系。上层则设置了三间装饰有细木工和配置外部阳台的宽敞套房卧室。
The Ground and Basement Levels are comprised of large open plan family living and dining spaces with direct visual connection to the front and rear ‘zen’ garden, whilst the upper floors offer three large en-suite bedrooms with extensive hardwood timber joinery and exterior balcony features.
▼楼梯通向上层,stairs leading to the upper floor
▼看向卧室,view of the bedroom
▼卧室入口,entrance of the bedroom
▼卧室,the bedroom
▼卧室木质家具,wooden furnitures in the bedroom
▼浴室,the bathroom
对于客户来说,选择住在Coverley Close,并对这处位于露台末端的不起眼房屋进行升级,一个关键考虑因素就是社区与家人的亲密关系。新的方案为举办各种活动和家庭聚会创造了可能,为客户及其家庭成员创造了一个灵活、适应性强的“永远的家”。
Community and proximity to family was a key consideration in the client’s reasoning for staying in Coverley Close and upgrading the original unassuming end-of-terrace property; accordingly the design reflects the ambition to host a wide variety of events and family gatherings, and to create an adaptable ‘forever-home’ for the client and for future generations of their family.
▼院落,view in the courtyard
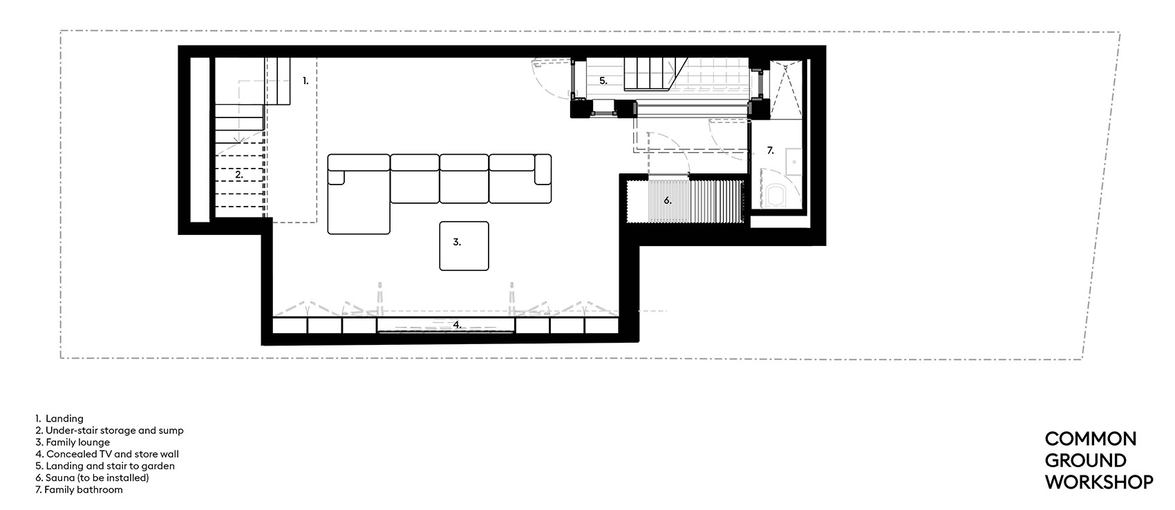
▼地下室平面,the basement floor
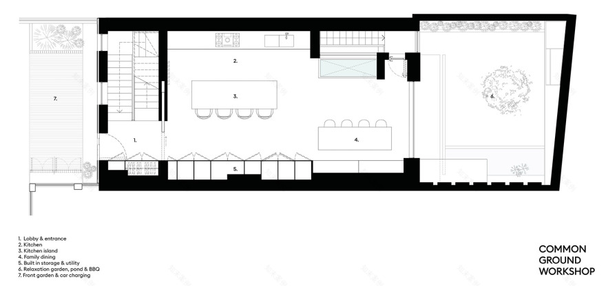
▼首层平面,the ground floor
▼二层平面,the first floor
▼三层平面,the second floor
▼剖面,sections
COMMON GROUND WORKSHOP
FEATURE: SPITALFIELDS HOUSE MONTH: JULY 2022
WRITER: JACK PANNELL
Web:
Email:
jack@commongroundworkshop.co.uk
Project Name: Spitalfields House
Location: Spitalfileds, East London, UK.
Category: Domestic renovation and retrofit
Area: 169 Sqm
Photographer: – Ståle Eriksen
客服
消息
收藏
下载
最近

























