查看完整案例

收藏

下载
建筑
巴特罗之家大改造
-
随着圣家堂的封顶
139年的“烂尾楼”终于蜕变成经典
媒体大肆报道纷纷喝彩
可惊喜冷却后更多的是彷徨
那绚丽的色彩经典的复古造型可否再现?
“高迪时代”就这么过去了吗?
答案是否定的,经典永不过时,这不,隈研吾大师前不久改造的巴特罗之家,一亮相便引众人惊叹!
16.4万米长的窗帘
渗透时间的“补光网”
贵族何塞普·巴特洛(Josep Batlló)在1904年邀请高迪建造了巴特罗之家,这个建筑独具匠心,似精心打造的骨架,处处透着精致、完美,立体的造型配上独特的天然珊瑚色泽,惊艳时光,自然而然成了经典,即使岁月流逝,巴特罗之家依然傲立着,美成永恒。
如今巴特罗之家被现主人伯纳特家族修复,隈研吾工作室接手工作,进行改造,延续先辈的美学,为这里注入活力。
隈研吾首先别具心裁,采用来自西班牙著名家居饰品品牌Kriskadecor的16.4万米长的铝链,别出心裁制作成独具特色的网状窗帘,从而在空间内营造出与众不同的光线美感。
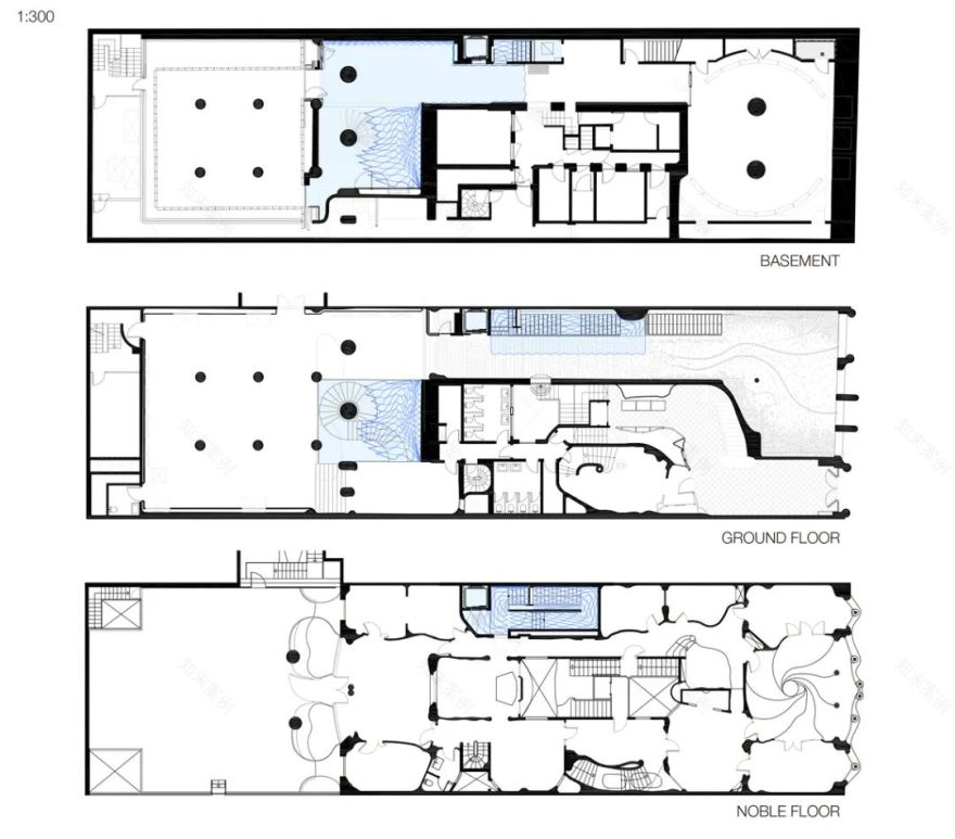
闲步在中庭、一楼新楼梯及所有楼层的紧急楼梯,便不难发现窗帘带来的浪漫与厚重的安心感。
通向地下室的楼梯由13吨黑色大理石制作而成,经过抛光后的大理石,醒目耀眼,彰显高迪设计的魅力。
窗帘看似飘柔,却不失坚实,以柔中带刚的特性透出生活的真谛。
随着光线的推进,飘动的窗帘带出波浪形线条,处处留下痕迹,恍如是在编织一张“捕光网”,誓要与明媚的光线一较高下,可这样的“争锋相斗”却带来意外之喜,强势与柔软的碰撞,达成微妙平衡,形成静谧。
从楼梯口向上仰视,层层拼接的帘幕带来极致的视觉享受,这像是渐渐晕染开的花朵,四周透着缥缈的朦胧美感,“刻板”的楼梯在其映衬下也多了几分柔和。
紧急楼梯设置在昏暗环境下,因而这里特意用到设计师马里奥·南尼(Mario Nanni)开发的照明设备,柔和的灯光碰撞上铝链窗帘的冷艳,有了熠熠生辉的闪光点,再次创造出光与空间的华丽邂逅。
2000㎡地下展览区
在科技感中再会高迪
除了在窗帘上作出重大创新,工作室还特意打造全新地下室,容纳下2000平方米的展览空间,视听制片人米格尔·阿隆索(Miguel Alonso)特意打造1000块屏幕圆顶,从视觉、听觉双重方面展现建筑师的创造力与建筑的美学。
土耳其媒体艺术家雷菲克·阿纳多尔(Refik Anadol)还在室内增加立方体装置,打造“10D娱乐体验”,借助科技的力量展现高迪的图像与数据。
泡沫灯具
唤醒空间的“新来客”
巴特罗之家在疫情肆意期间暂时不对外开放,当地设计师马克斯·丰富(Max Enrich)便借着这份空闲设计出一系列与空间相得益彰的雕塑灯具。
灯具以室内装饰泡沫为制作材料,经过切割、雕刻等一系列创造之后,上面有了独特的几何图腾,一眼望去便令人不由自主联想起美术课堂上的临摹标志物。
每个设计顶部都放置LED发光体,电线将它们连接起来,当灯光投射上去,交错的线条构造出璀璨的“曲线屋顶”,成了全场最大的亮点之一。
这些灯具,造型并不夸张,却透着艺术之美,简洁的外观与繁杂的空间形成对比,在各个角落熠熠生辉,通过墙面、地板的折射后,浅蓝色、浅粉色、薄荷绿等柔和的色调在空间穿插、交汇,带出活力。
灯具成了空间内不可忽视的装饰,它们不会喧宾夺主,也不会低调地被人忽视。
改造巴特罗之家,与其说是在创新突破,不如说是在致敬经典,从窗帘到灯具,这里每一处设计都与高迪设计有着异曲同工之妙。设计师们怀揣着敬仰,以虔诚的心态,在时空中建起桥梁,与过去对话,借助科技的力量,重塑经典,续写高迪“自传”。
内容策划 / Presented
策划 Producer :DesignBon
撰文 Writer :Amanda 排版 Editor:Fin
设计Desi
gn&版权©:Internet
!
客服
消息
收藏
下载
最近







































