查看完整案例

收藏

下载
©Alan Grillo Spina
具备完全不同材料气氛的竹木和不锈钢相间排列的构造营造了空间独特的气氛。保持强烈秩序的竖向语言为自由的楼梯形态创造节奏。
感谢dongqi栋栖设计
dongqi Design
栋栖设计为gaga设计了位于三里屯太古里的北京旗舰店。在密集的城市中心一个八米高的空间中嵌入一个垂直空中花园。用承载植物的空间结构契合gaga将美食茶饮与自然环境有机结合的品牌理念。
▲空间概览
©Alan Grillo Spina
gaga和dongqi Design栋栖设计舍弃增加楼板以获得更多使用面积的做法,而是由位于空间中心的中岛吧台开始延伸出主楼梯并向上生长至空中形成景观步道,连通位于空中的室外露台的同时向不同方向延展出数个不同高度的空中小平台。精心挑选的橄榄树位于平台端头,高低错落分布于空间中,营造出独特的室内垂直景观和漫步系统。整个空间花园结构由dongqi Design与结构工程师紧密配合,创作了一个像风筝般独立漂浮在空中的精巧钢结构系统。
▲轴测分解图
©dongqi Design
▲像风筝般独立漂浮在空中的精巧钢结构系统
©Alan Grillo Spina
▲室内垂直景观和漫步系统
©Alan Grillo Spina
三面玻璃幕墙环绕中央区域仿佛自然采光的屋顶,进一步加强亲近自然的整体就餐气氛。同时dongqi Design设计了可调节的灯光系统,融合在空中花园结构中,模糊了自然光与人造光的感知界线,营造白天与日落后不同的就餐氛围。菜单自然延伸自吧台上方的结构系统,与三面操作台合作服务于不同的就餐功能需求。
▲三面操作台
©Alan Grillo Spina
▲用餐区
©Alan Grillo Spina
具备完全不同材料气氛的竹木和不锈钢相间排列的构造营造了空间独特的气氛。保持强烈秩序的竖向语言为自由的楼梯形态创造节奏。经过仔细处理的竹木板侧面的细腻纹理传达了亲近温和的质感,与截然不同的不锈钢的组合塑造了品牌的独特气质。dongqi Design精心控制从吧台到栏杆的不锈钢和竹木的组合比例与连接节点,使人在空间中漫步的同时产生梦幻的变化,且随着垂直高度的提高不锈钢的比例逐渐增加,反射和光影变化随之增强,使空间逐渐变得轻盈。
▲保持强烈秩序的竖向语言为自由的楼梯形态创造节奏
©Alan Grillo Spina
▲楼梯内部
©Alan Grillo Spina
▲仰视楼梯
©Alan Grillo Spina
▲家具细部
©Alan Grillo Spina
入口采用了大面积开放式垂直折叠门,竹木与不锈钢的精妙组合将室内逻辑延伸至建筑外立面。同时两进门将地面材质划分为天然石材的室内外联通花房和抛光混凝土的室内主空间两部分。在丰富的过渡室内与室外体验,使就餐氛围更加丰富的同时为北京严寒的冬季创造更为舒适的室内体验。墙面和空中原有的柱梁最大程度的保持了原始状态,端头的厨房使用了与外立面相同构造的大面积垂直提拉窗,使食材加工过程的展示更具戏剧性。
▲入口
©Alan Grillo Spina
丰富的就餐氛围
©Alan Grillo Spina
gaga北京三里屯店的设计是对花园主题餐厅在垂直空间中延展的一次探索。
项目图纸
▲楼梯轴测图
©dongqi Design
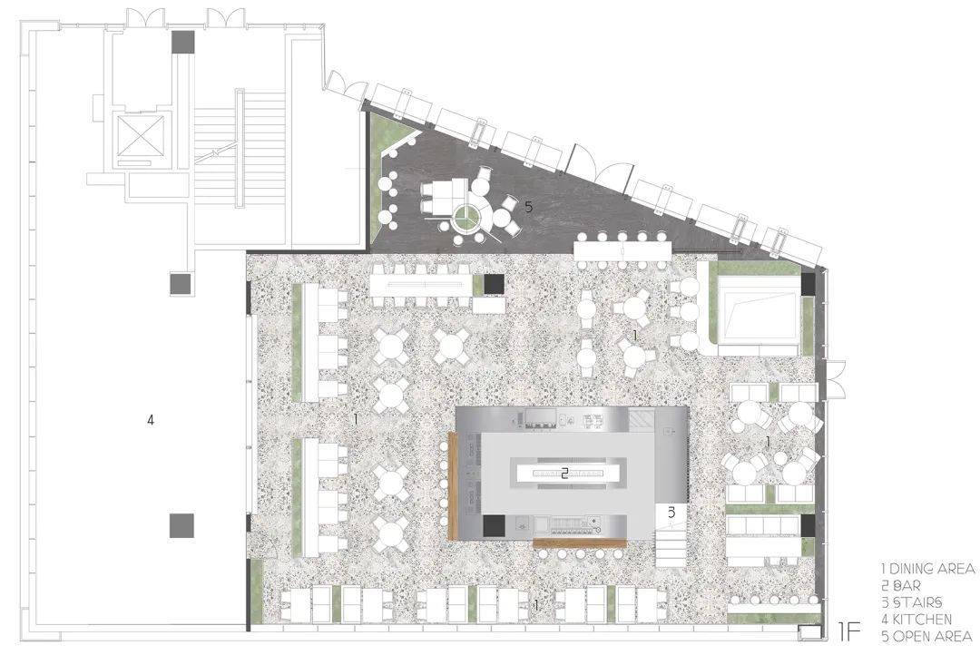
▲一层平面图
©dongqi Design
▲二层平面图
©dongqi Design
建筑改造,室内、灯光设计:dongqi Design 栋栖设计
设计总监:姜南
项目设计师:何玮婧
团队:简仕翰,娄月,邵奕涵,暴佳英
建筑面积:430平方米
地点:中国北京市三里屯太古里
钢结构设计:袁鑫事务所
摄影:Alan Grillo Spina
客服
消息
收藏
下载
最近




























