查看完整案例

收藏

下载
我愿意深深地扎入生活,吮尽生活的骨髓,过得扎实,简单。——亨利・戴维・梭罗
每一座房子,都是一种生活方式的具体承载,每一个家,都是一场内在世界的情感表达。
本案作为一幢垂直性较强的别墅空间,试图通过纵向的序列调整,向内折叠,在每一层楼的水平结构中构建层层深入的情绪,释放慢生活滋养的能量,勾勒真实生活的热情。在这里,空间经由一种物质性手段向内部营造,展现的是剥离掉装饰层面之后的生活本身,是消弭掉对外展示之欲求后的自我满足。
0 1
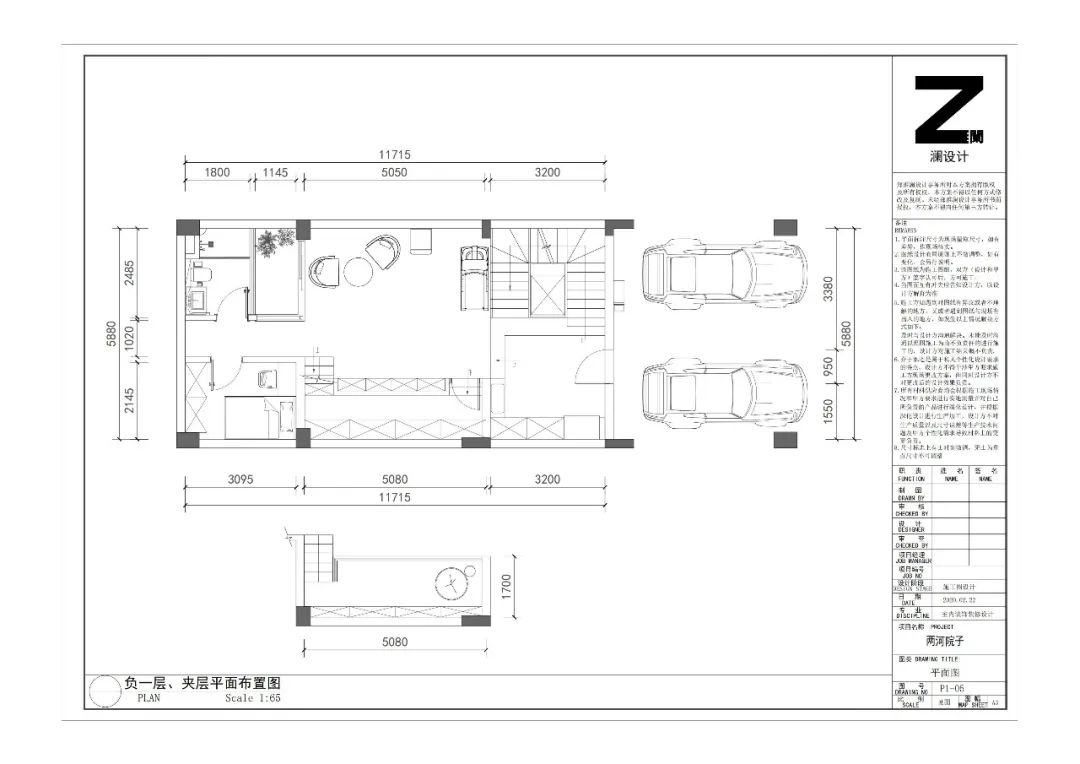
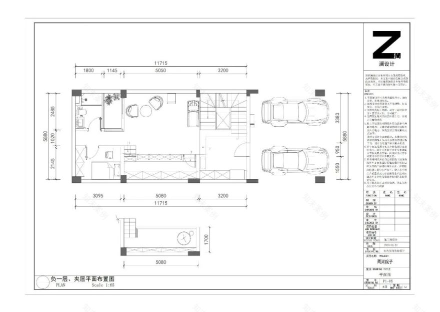
/负一层:垂直空间的起始
The basement floor space
这是一座拥有地上空间四层与地下空间一层的大私宅空间。如果把整个空间看作为一个叙事的整体,那么由地下室一层一层往上迁跃的过程,就是空间序列状态得以建立的基础性依据。
作为一楼的前续空间,负一楼的地下空间,承载的是日常生活状态中较为隐匿的那一部分。
空间的处理方式干脆、柔和、润物细无声。简洁的立面彰显空间语言的准确与流畅,白色与灰色的墙面加上浅木色的点缀,构成了空间的基础色彩,营造出一种包容性的氛围感,展现着生活本身的自在、优雅与趣味。
开凿一方天井,把阳光从地面引下来,与生命有关的意义从这里开始生长。一人时可以高贵地独处,阅读,健身,冥然兀坐;好友相聚时尽可以热闹嬉笑,贴近世俗生活的日常,享受松弛与惬意。
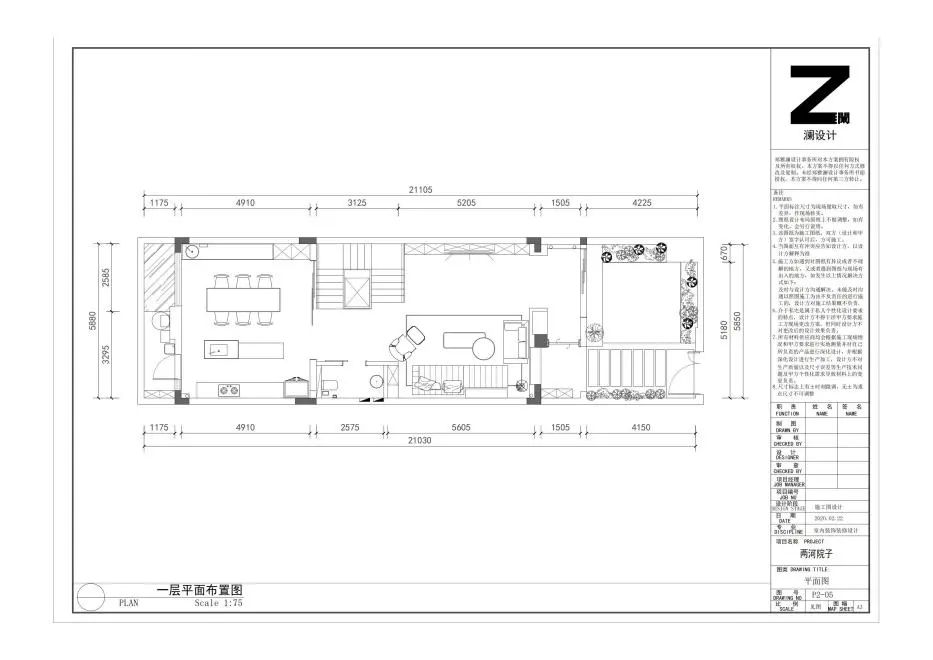
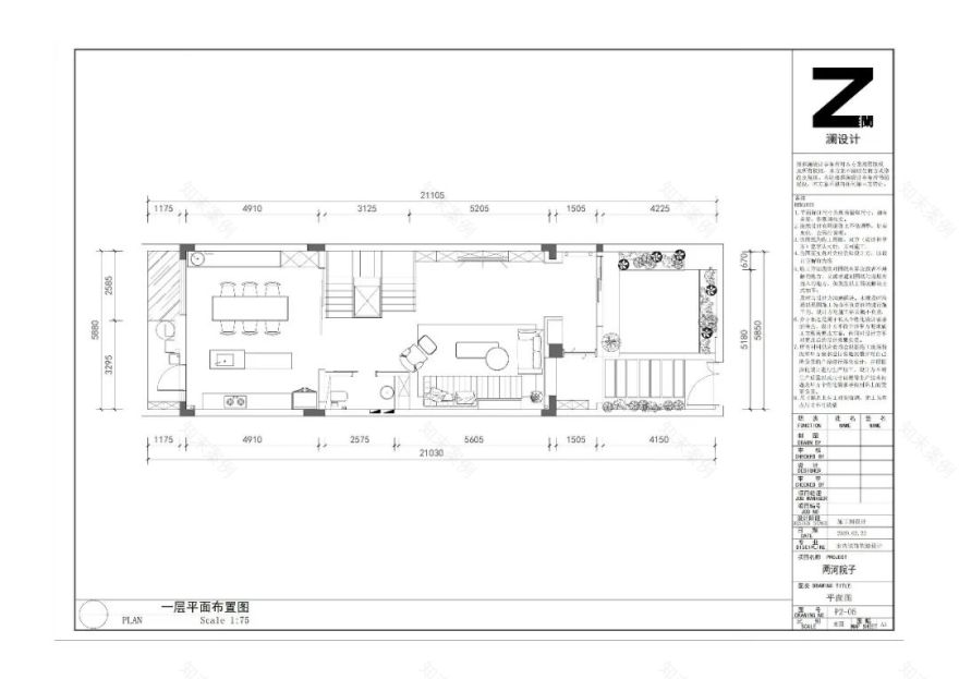
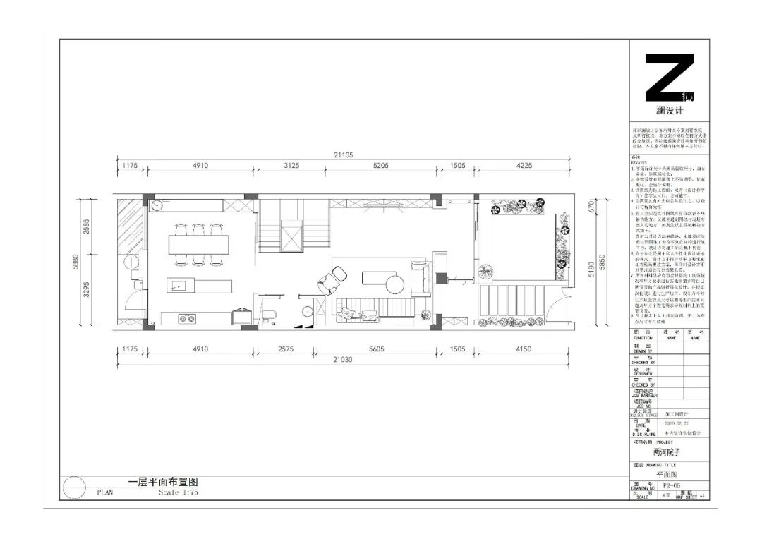
0 2/客餐厅:起居之日常 Living room and dining room
进入一楼的起居空间,便是进入了日常生活的中心地带。空间以其笔直线条的极简营造,给人以确定性和安全感,又以极大的温柔承载起风的穿行与光的渗透。
空间静若安澜,大开大合的格局中暗藏柔软亲切的气质,与空间美学有关的均质性在空间中缓缓沉淀,化为一种对光阴的陪伴。
静谧的空间状态,淡雅轻盈的空间美学色彩,布艺沙发与器物桌椅呈现出一种与肌肤相亲的美好品质。当阳光穿过玄关内侧的开窗与门厅,经过一道空间的传递,阳光渐柔,最终以一种漫反射的形式参与进整个客厅空间的营造之中。人在空间之中或穿行或坐卧,无意识深处便会自然而然,滋养出一种安定自如的生命能量,细腻的情感在游走,内心安定且温柔。
任何沉浸于生活细节的场所,都旨在唤起一种对于生活的本真体验。
一体式的餐厨空间深邃且极富张力,大抵是因为黑色与灰色具有一种向食材与器物投去深情专注的能力。无论是轻松慵懒的早餐,还是一家庭人齐聚分享的晚餐,空间都能自如的应对。是以,餐厨一体的空间设定,让这里成为了一家人日常连接沟通的必要存在,备食、烹饪、与坐在餐桌旁的家人聊天,成为了最具家庭共情的温馨场景。
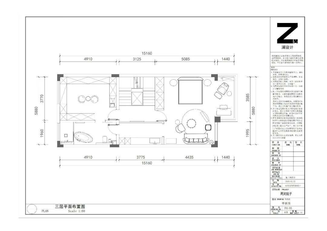
03 / 卧室:内在自我的舒展
Bedroom and solitary space
独处,作为一种都市生活经验中非常重要、但又容易被人们所忽视的状态。因此,在本案的设计中,卧室空间力图打破常规,扩展其功能与边界,成为一个既可以相互连接又可以独立存在于家宅之中的个人应许之地。
于独处之中,发现真实的自我;于内在的舒展中,触碰生命质地的光芒。
真实的生活,本就不应该仅仅是对外部世界的探索,更应该具备对内部世界深深潜入与彻底绽放的能力。
整个三楼空间,作为主人独立的起居层,可以说是一种低调又奢侈的存在。它自成一个完整的生活体系,囊括卧室、休闲区、办公区、衣帽间、卫生间。同时,它又不对外彰显,是一个纯粹的只对主人自己或闺中密友开放的独立性空间。
因此,在这里体现的不仅仅是一处自在的空间,更是主人柔软的内心,真实的生命日常,以及全无戒备的私人状态。
衣帽间,作为主人生活品味的集中展现,将大量的生活细节一点一滴如艺术陈列一般体现出来,有效的收纳之余,兼顾衣帽、珠宝、装饰物的展示,不仅还原了作为主人的气质形象,也还原了一种表里如一的真实与从容。
就如同那两幅出自艺术家吴浩的工笔画,它们被分别立置于孩子和老人的床头,是惬意,是享受,也是对生活本身的深切观照。
一把吉他、一张沙发豆袋、一个可以蜷缩可以舒展的小小角落,就如同梦想轻轻落地一般,在孩子的学业之余,给予成长中的孩子以爱的呵护、不打扰的温柔、以及自由自在漂浮音乐之中的精神性需求。由此,这里构建的不仅仅只是孩子的成长空间,也包含着孩子与主人之间独特的爱的表达。
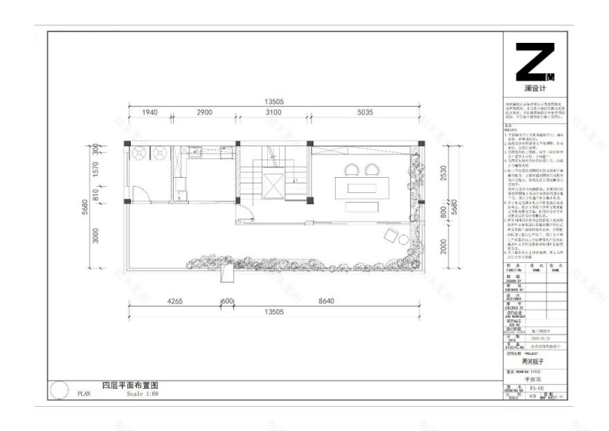
04/顶楼:物质生活之余的闲适
Tea room on the top floor
尽管在空间手法上延续着整体性的极简,但顶楼仍可以从世俗日常中跳脱,成为一种别样的生活状态。白日放晴,空间向外时,人不经意间已置身于自然,听万籁戚戚有声,看一年四季光影流转。寒冬入夜,空间向内时,烛光影绰,茶香满席,古朴与幽静填满心头,内心的世界开始生长。
阳光满地,清风徐徐;茗茶几盏,人生几何。精神的归属与氛围审美的营造,旨在一种诗性的空间阐释。清浅稳重的色调,自然拙朴的老木茶桌,书法家许静老师的飞笔留白,以及恰到好处的植物点缀,共同组合出一处惬意的精神场所,并在光影摇曳之中,感知诗意流淌与万物和鸣。
生活如斯。既不要放弃精神生活的明亮处,也要能在世俗日常中体会幸福。正如葡萄牙诗人费尔南多·佩索阿所说:“我们要以更大的平静,热爱我们并不十分确定的生活。”
平面图
DESIGN PLAN
负一层平面图
一层平面图
二层平面图
三层平面图
顶层平面图
项目信息
ABOUT THE PROJECT
项目类型:私宅
设计团队:澜也空间设计事务所
设计总监:郑雅澜
项目面积:460 平方米
项目时间:2021 年
项目地址:成都两河院子
项目摄影:边界摄影
空间中书法作品的艺术家
许静/当代书法家,现为南京书画院专职书法家。曾为《武侠》《英雄》《影》《悬崖之上》《一秒钟》等电影题写片名。许静的书法游走于传统与当代之间,既擅长秀逸的行草小楷,又敢于自由书写狂草,曾与张艺谋、王家卫、杜可风、杨丽萍等电影、舞蹈领域杰出艺术家合作。空间中工笔国画作品的艺术家
吴浩/工笔国画艺术家
中国美术家协会会员,四川省美术家协会理事,四川巴蜀画派促进会理事,四川省工笔画学会理事,成都市工笔画会副会长。擅长以传统笔墨创作,题材源于传统,却“师古而不泥古”,穿梭于当代与传统之间,关注画家作品中文化性的表达,以及对生命形态的追求。空间设计师
郑雅澜
澜也设计 创始人/设计总监
澜也空间设计事务所
澜也成立于 2011 年成都,多年以来潜心致力于高级住宅与商业空间领域的探索,曾被人民日报社、中央电视台、四川电视台等多家媒体访问。
在设计实践中,擅长将沉稳的空间逻辑梳理与有趣的表现形式相结合,以“因体施治”为设计方法,以“各美其美,美美与共”为设计哲学,塑造独特的空间叙事美学。
与此同时,在空间艺术性表达过程中,传递优雅、华丽、干练的类型性空间情感信息,构建空间的自我表达,重估空间的艺术价值与精神属性。
本案由澜也设计提供,为授权稿件。
# 投稿&商务
15365132937
肥橘/莉莉/猕猴桃
/月杪/嘉华 Tel:18066041052
客服
消息
收藏
下载
最近

















































