查看完整案例

收藏

下载
©Fernando Laszlo
“对于我们为Camper Together设计的第一个项目,我们从巴西传统的民俗节庆活动中找到了灵感,其中涉及的环境是由密集的彩色条纹层创建的。利用鞋带的策略,我们塑造了不同的形状,在我们的空间中实现了敏感和场景化的体验,在这里,游客是日常的演员。
©
F
ernando Laszlo
什么是CAMPER TOGETHER?
“Camper Together是Camper和领先的设计师之间的合作模式,以创造独家产品和杰出的商店。Together回应了一个新的国际现实,它需要有能力通过设计、不同的文化和创造性的知识整合到一个单一的项目中,并有能力向选定的全球市场传达和分发独特的倡议。
©
F
ernando Laszlo
©
F
ernando Laszlo
©
F
ernando Laszlo
©
F
ernando Laszlo
©
F
ernando Laszlo
©
F
ernando Laszlo
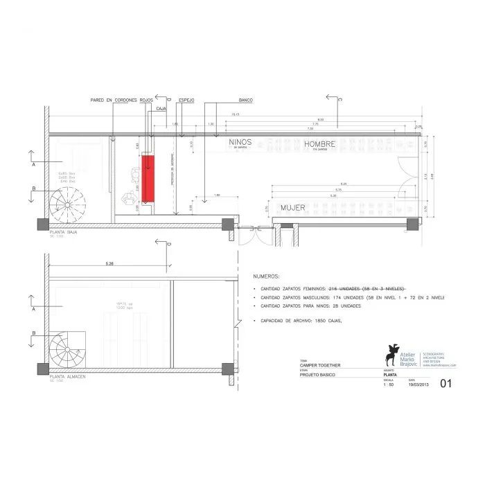
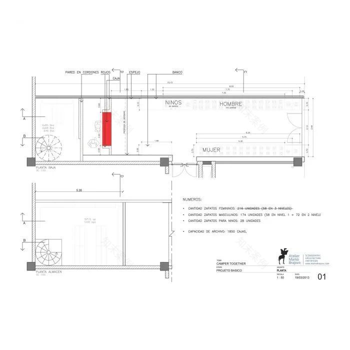
项目图纸
▲
平面图
▲剖面图
▲
剖面图
▲手稿
项目信息
建筑师:Atelier Marko Brajovic
年份:2013年
摄影:Fernando Laszlo
城市:圣保罗
国家:巴西
赞
客服
消息
收藏
下载
最近














