查看完整案例

收藏

下载
胡义杰
永康小学部以中央图书馆为核心形成整体,设计引入教育综合体概念,希望建筑除了满足基本的教学功能外,能给孩子们提供一个交流的场所,形成学习交流和交通共用的复合空间。
感谢
江苏中锐华东建筑设计研究院有限公司
荣朝晖工作室
永康崇德学校项目基地位于永康市区南部圆周村北侧,面积约 120 亩,场地高差 2~3m,西侧为 20m 高的山丘。基地内有一处 7—8 米高的小山坡,设计以此为核心展开,将山坡和体育场看台、对外交流中心结合,形成整个校园的中心。中学部、小学部以模块化的方式布局设计。
▲小学教学楼
© 胡义杰
▲小学部人视
© 胡义杰
永康小学部以中央图书馆为核心形成整体,设计引入教育综合体概念,希望建筑除了满足基本的教学功能外,能给孩子们提供一个交流的场所,加入了休闲咖啡吧、行走的图书馆、自然博物馆、家长接待区等多个功能,形成学习交流和交通共用的复合空间。
▲中央图书馆俯视
© 胡义杰
▲中央图书馆
© 胡义杰
▲中央图书馆天窗
© 胡义杰
▲阅读交流空间
© 胡义杰
▲交流和交通公用的复合空间
© 胡义杰
▲外廊活动空间
© 胡义杰
陶土砖的材料特性与永康当地的传统土坯民居的色彩、质感相近,在建筑语言上与当地的传统风格保持了一定的密切度。工业化的金属板窗套和质朴的陶土砖立面之间的反差,让建筑形象更加细腻。
▲陶土砖外立面
© 胡义杰
▲金属板窗套和砖的对比©胡义杰
建筑外墙设计通过采用挑砌和斜砌几种做法,形成了立面的光影变化。镂空的陶土砖作为敞开连廊的围护,在阳光的投射下,使其呈现丰富的光影变化。
▲砌砖法带来的光影变化
© 胡义杰
▲镂空砖室内光影
© 胡义杰
项目图纸
▲总平面图
© 荣朝晖工作室
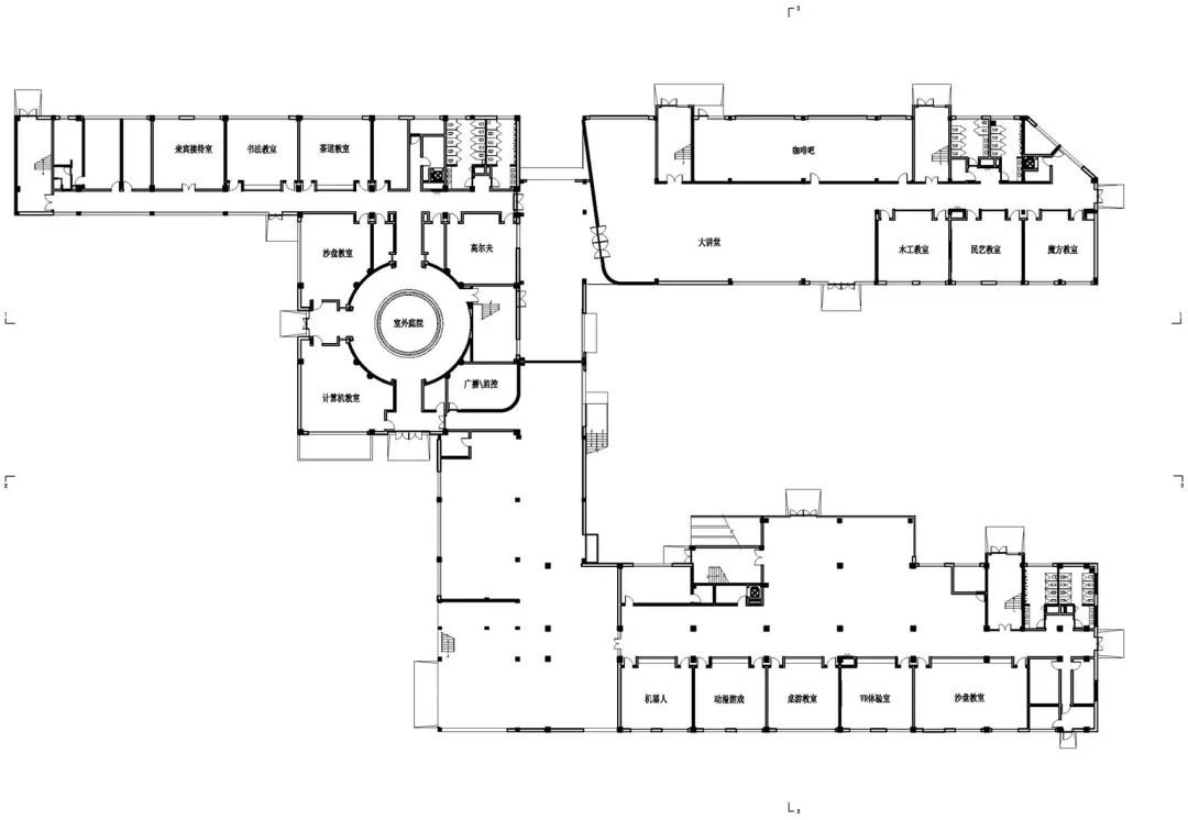
▲小学部首层平面图
© 荣朝晖工作室
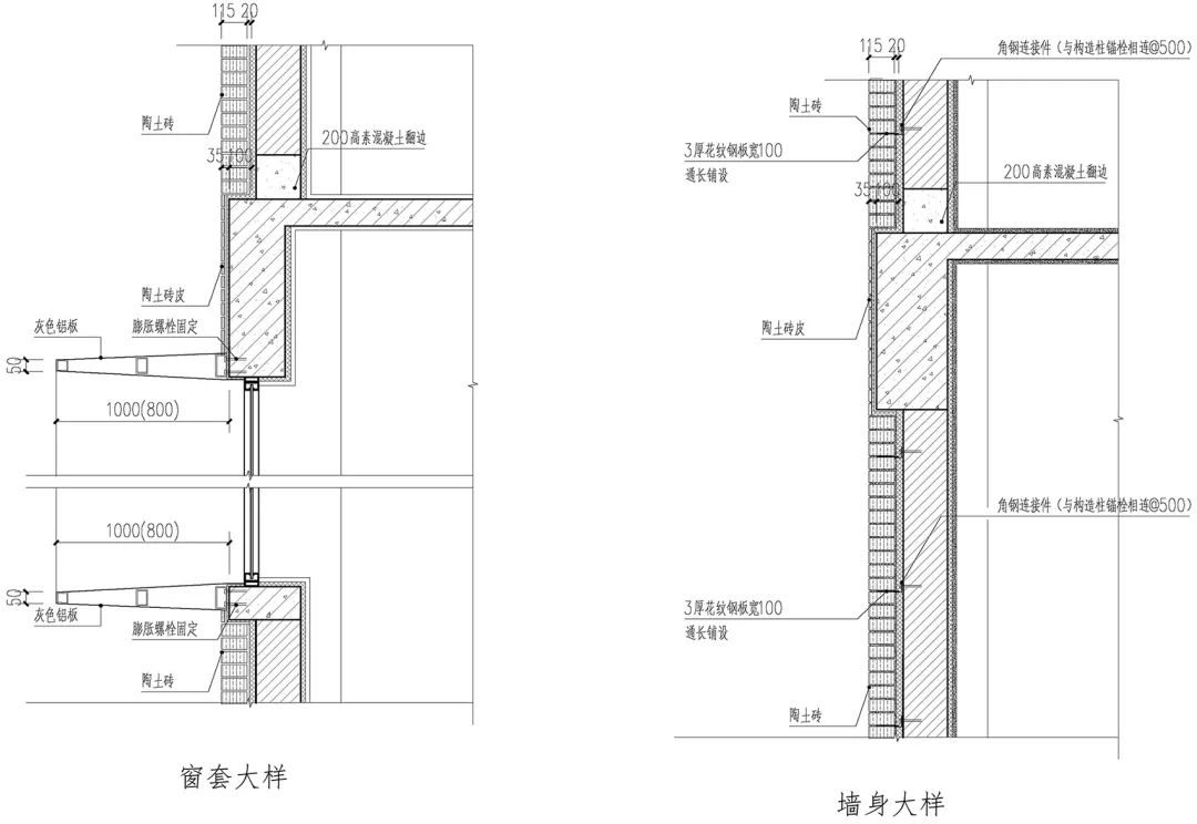
▲窗套及墙身大样
© 荣朝晖工作室
项目名称:永康崇德学校
项目类型:教育建筑
设计方:江苏中锐华东建筑设计研究院有限公司 荣朝晖工作室
项目设计:2017
完成年份:2019
设计团队:荣朝晖 冯杰 刘虎
项目地址:浙江省永康市区南部圆周村北侧,花白线以南,南都路以东
建筑面积:58030㎡
摄影版权:胡义杰
合作方:施工图设计:浙江华宇建筑设计有限公司
客户:永康崇德学校
材料:砖
品牌:宜兴市中威陶业有限公司
客服
消息
收藏
下载
最近



















