查看完整案例

收藏

下载
DUDES ARCHITECTS
DUDES ARCHITECTS是来自俄罗斯的设计工作室。由两位年轻大胆有创造力的设计师
Larchenkov Dmitry和Serhey Viktor
共同创立。他们的设计十分前卫,在重视设计的创新以及细节的基础上强调营造每个人独有的家的氛围。
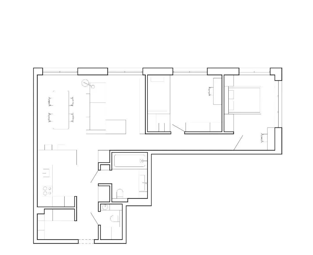
01
APART. OLYMPIC PARK
实用主义与极简美学-132㎡
本案位于明斯克市中心,户型像一个倒过来的“凸”字。进入入口处的走廊,公寓的全景即可展现在面前。
房子入口处是带衣柜的走廊和带镜子的壁橱,镜子的存在从视觉上延伸了走廊的空间。大型主浴室、带洗衣房和淋浴间的客用浴室也在这里,其中安装了模拟日光壁龛的灯具。
厨房与橱柜的总体积融为一体,所有电器都内置或隐藏在厨房正面。
烤箱和抽屉与岛台融为一体。
从视觉上看,吧台将厨房的烹饪区隔开,隐藏了所有烹饪过程,同时不违反简约内饰的概念。
因为客户一家非常喜欢看书,所以设计师做了一个大型书柜,里面装满了书籍。儿童房的入口与图书馆的壁龛融为一体,只有在黑色门板和墙壁背景下的门把手才能区分。
主卧用一扇隐藏在墙上的推拉门与公共空间隔开。
这种方法营造出公寓单一体量的感觉,并为客厅增添了自然光。
02
APART. MIR
85㎡极简纯白的性冷淡风
这个项目位于明斯克新建公寓大楼的23楼,在室内可以欣赏到城市的美景。
全景窗户可以俯瞰建筑物的北侧,低矮的天花板和通往公寓的深入口已成为主要的建筑挑战。所有材料的选择都具有最大的自然性和相互之间的微妙关系。白色镶木地板采用法式人字形图案,彩绘墙壁呈现复杂的开心果色调,在不同的照明条件下,其颜色就像变色龙一样从暖白色变为响亮的灰色。
客餐厅整体空间以空灵极致的白色为主,不掺杂一丝多余的装饰,无论是布艺窗帘还是线形吊灯,都用最简单的颜色,最直接的线条去尽可能的融入到这一片极致的白色中。让人未有一丝丝杂念。
胡桃木是整个空间中除了白色意外占据最多的一个颜色,即使是极致的冷淡风格,也要有一丝丝沉稳扎根其中。
03
APART. YUGEN
48㎡日式“毛坯风”
此项目是位于莫斯科的48㎡公寓住宅,业主在中国和日本都生活了很长时间。他喜欢瑜伽、登山、周游世界以及演奏乐器。DUDES团队将其打造为全新的日系极简主义,于都市中寻找自然隐逸的生活。
整个房间的设计难点在于将48㎡面积的公寓规划出符合业主居住需求的功能:厨房、浴室、餐厅、客厅、卧室以及强大的储物空间,同时不能让空间显得拥挤杂乱。同时需要将公共通风、空调等系统结合到设计中。DUDES将每个功能区划分为不同的生活场景组合,同时设计出大量的隐蔽的储物空间。
在公寓的入口处有一个“岛”式衣柜,它分割了室内空间,将客餐厅区域与走廊区域隔开。这个衣柜是多功能的。它分为四个部分:在走廊的一侧,有一扇门做成整面镜子,在靠近入户处的柜子作为放置衣物使用,而靠近厨房一侧的柜子则嵌入了冰箱以及内置烤箱。贯穿到卫生间的柜体为收纳洗衣机等物品使用。
客餐厅选用了实木餐桌,在桌子后面的墙上,一幅极简主义装饰画是点睛之笔,与绿植一起,将日系极简主义带到了生活中。
延伸阅读
EXTENSION READ
▽
宁静的空间本质 | URBA
写意东方 | 唐忠汉新作
建筑 | 室内 | 设计 | 艺术
设计首发|挖掘未来设计之星
客服
消息
收藏
下载
最近






































































