查看完整案例

收藏

下载
© 章鱼见筑
建筑采取了玻璃幕墙与斜交网格外框架结构设计相结合的方式,斜交网格使建筑立面极具表现力,不仅新颖、简洁而优雅,也充分展现了建筑设计与结构设计的完美结合。
感谢浙江省建筑设计研究院, SOM
宁波有一条醒目的东西向轴线直通市中心,本项目位于该轴线上,将成为迅速发展的宁波东部新城中央商务区的重要门户,为城市树立可持续设计和开发的典范,并成为一个活力动感的都市新焦点。
▲项目与周边环境鸟瞰©章鱼见筑
本项目位于宁波市东部新城中央商务区的核心区,城市干路中山路以南,城市主干路海晏路以西,松下街以北,用地面积约 1.4733 公顷,总建筑面积为 15.2 万平方米。本项目由一栋 206 米高的 43 层超高层办公塔楼和 4 层商业裙楼组成,另有 3 层地下车库。
▲项目与周边环境夜景©章鱼见筑
模数化设计与建筑美学
建筑采取了玻璃幕墙与斜交网格外框架结构设计相结合的方式,斜交网格使建筑立面极具表现力,不仅新颖、简洁而优雅,也充分展现了建筑设计与结构设计的完美结合。
▲远景
©章鱼见筑
建筑在垂直方向以 4 层 4300 高度的斜交网格为基准,在裙楼和塔楼同时应用确保整个项目的立面形式的一致;外立面幕墙模数以 8700 柱网内六块 1450 宽的单元板为基准模数,保证立面、天花、和建筑物内地面的分割线严格对齐,系统的几何严谨性和模块化体现了建筑的精准工艺,并强调了建筑的对称美。
▲大楼外观
©章鱼见筑
▲斜交叉网格立面©章鱼见筑
创新技术的应用
这座金融大厦的建筑特色是富有表现力的结构体系和随着日光变幻的外墙设计。复合斜交网格外框架可高效应对侧向力,从而减少结构对建筑物核心筒的依赖,使核心筒更小、更灵活,尤其是在塔楼上部。本项目的斜交网格体系超高层钢结构设计分析及关键技术研究荣获了 2019 年度浙江省建设科学技术一等奖。
▲裙房商业入口
©章鱼见筑
▲入口广场
©章鱼见筑
四层高的大堂
裙楼屋顶花园和露台竖向表面是雨水回收循环的组成部分,雨水向下流过植物过滤器为公共广场的镜面水池补水,形成景观生态的直观演示。展现了建筑物的简洁、低碳和可持续设计。本项目已获得美国绿色建筑 LEED 金级认证和中国绿色建筑三星级认证。
▲立面细部
©章鱼见筑
▲内院
©章鱼见筑
▲镜面水池
©章鱼见筑
多种形式的幕墙
©章鱼见筑
塔楼立面采用 2900mm x 4300mm 的三层夹胶中空玻璃单元外墙板,氩气填充提高了建筑物节能效率。
四层通高的入口大堂以 17.2 米高的拉索幕墙围合,采用三层夹胶超白玻璃和超级保温镀膜,尽可能提高大堂的透明度,并有效降低玻璃外墙的传热系数。
自然采光的大堂结合镜面水池,营造出天然、洁净、明亮而灵动的空间环境,力求公共空间室内外关联性的最大化。
裙房©章鱼见筑
▲大堂
©章鱼见筑
▲中庭
©章鱼见筑
▲办公区入口
©章鱼见筑
▲电梯厅
©章鱼见筑
为了实现简洁而优雅的建筑设计,项目的技术实施备受重视。设备风管和通风百叶都经过精心协调隐藏于立面内,并避开大厦的主要入口和周围的公共空间。百叶被精心设置于各种隐蔽位置:天花土建风道内、贴邻直通屋顶的楼梯、地下室坡道侧壁上。塔楼屋面主要设备的百叶全部设置于避难层或屋顶机房。最后,为了尽量减少裙楼屋顶设备外露,冷却塔设置于塔楼屋顶。
▲夜景
©章鱼见筑
项目图纸
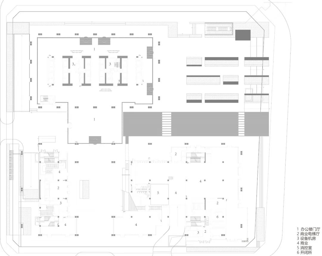
▲首层平面图
©浙江省建筑设计研究院
▲标准层平面图
©浙江省建筑设计研究院
▲花园层平面图
©浙江省建筑设计研究院
▲剖面图
©浙江省建筑设计研究院
项目名称:东部新城核心区 C3-6#地块项目(宁波国华金融中心)
设计方:SOM、浙江省建筑设计研究院
项目设计 & 完成年份:设计时间 2014 / 完成时间 2020
主创及设计团队:
SOM 主创设计师:Michael Duncan
浙江省建筑设计院项目负责人:陈志青
SOM 建筑团队:Lucy Ling, Sean Ragasa, Keith Boswell, Michael Leung, Grant Cogan, Kirit Sedani, Michelle Dumont, Zephyr Anthony, Jesse Bright, Joseph Reyes
浙江省建筑设计研究院建筑团队:骆高俊、张健君、任洲、林放、胡俊勇
SOM 结构团队: Mark Sarkisian, John Gordon, Neville Mathias, Xiaoyu He
浙江省建筑设计研究院结构团队:杨学林、冯永伟、张陈胜、王震
WSP 机电设计团队:Dingguo Xie
浙江省建筑设计研究院设备团队:汪新宇、王皓、马慧俊、李亭曈、杨婷
SWA 景观设计团队:JimLee,SehgyungKang,JingMa
中国美术学院风景建筑设计研究总院有限公司景观深化团队:江浩,严江平,骆家华,张慕霜
沈阳远大铝业工程有限公司幕墙深化团队:禇文,胡金柱,胡大明,张彪,陈洁,李亮
项目地址:浙江省宁波市鄞州区东部新城中山东路 1800 号
建筑面积:152000 平方米
摄影版权:章鱼见筑
设计合作方:美国 SOM
客户:宁波华凯置业有限公司
客服
消息
收藏
下载
最近



























