查看完整案例

收藏

下载
DUDES ARCHITECTS
DUDES ARCHITECTS是来自俄罗斯的设计工作室。由两位年轻大胆有创造力的设计师Larchenkov Dmitry和Serhey Viktor共同创立。他们的设计十分前卫,在重视设计的创新以及细节的基础上强调营造每个人独有的家的氛围。
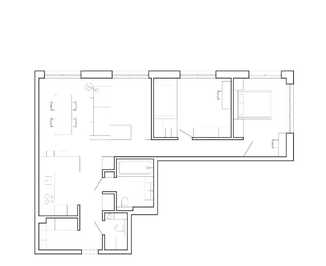
APART. OLYMPIC PARK 实用主义与极简美学-132㎡
本案位于明斯克市中心,户型像一个倒过来的“凸”字。进入入口处的走廊,公寓的全景即可展现在面前。
房子入口处是带衣柜的走廊和带镜子的壁橱,镜子的存在从视觉上延伸了走廊的空间。大型主浴室、带洗衣房和淋浴间的客用浴室也在这里,其中安装了模拟日光壁龛的灯具。
厨房与橱柜的总体积融为一体,所有电器都内置或隐藏在厨房正面。烤箱和抽屉与岛台融为一体。从视觉上看,吧台将厨房的烹饪区隔开,隐藏了所有烹饪过程,同时不违反简约内饰的概念。
因为客户一家非常喜欢看书,所以设计师做了一个大型书柜,里面装满了书籍。儿童房的入口与图书馆的壁龛融为一体,只有在黑色门板和墙壁背景下的门把手才能区分。
主卧用一扇隐藏在墙上的推拉门与公共空间隔开。
这种方法营造出公寓单一体量的感觉,并为客厅增添了自然光。
APART. MIR 85㎡极简纯白的性冷淡风
这个项目位于明斯克新建公寓大楼的23楼,在室内可以欣赏到城市的美景。 全景窗户可以俯瞰建筑物的北侧,低矮的天花板和通往公寓的深入口已成为主要的建筑挑战。所有材料的选择都具有最大的自然性和相互之间的微妙关系。白色镶木地板采用法式人字形图案,彩绘墙壁呈现复杂的开心果色调,在不同的照明条件下,其颜色就像变色龙一样从暖白色变为响亮的灰色。
客餐厅整体空间以空灵极致的白色为主,不掺杂一丝多余的装饰,无论是布艺窗帘还是线形吊灯,都用最简单的颜色,最直接的线条去尽可能的融入到这一片极致的白色中。让人未有一丝丝杂念。
胡桃木是整个空间中除了白色意外占据最多的一个颜色,即使是极致的冷淡风格,也要有一丝丝沉稳扎根其中。
客服
消息
收藏
下载
最近




































































