查看完整案例


收藏

下载
我走入森林因为我想过着有意识的生活——湖滨散记
梭罗两年多的隐居岁月,他剔除一切与生活无关的内容,用最基本的形式,简单、简单、再简单,将起居与心灵逼至无从遁逃的空荡清澈,由此扎实。
△项目视频
藏于天地,栖于山水 居所藏于天地之间,落在淡水河畔,临水的诗意使人放下文明世界的凡此种种,专注于纯粹、原生的精神。
水相设计以湾流为伴的生活方式,放任自然,渗入性灵。
融合临窗南向的公共区域,从茶室、客餐厅到开放厨房,建筑依着宛如河道的曲面窗景而生。
景色中最丰富的元素就是有一点天真无邪的阳光——湖滨散记
为了无边景致,设计师为了避免布局细碎分割,简化动线及材质,以廊道转折、地面材质划分属性。客厅采用组合式的沙发,如溪里的石,挪动位置便改变水流方向,或歧或散,生活可有意识地转变或容纳,为生活创造无尽的诗意。
将茶室入口格栅拉门平日收进墙里,舒展成隔屏还能切换直棂错位关系以改变透视感,丰富空间组合形式。
托身山林不染声色的人是不会幽抑结滞的——湖滨散记
游走、沉思、发呆、阅读,与窗外光影更迭交织成轻柔的散文诗,既淡离城市又隐居河畔,日常毋需僵化边界,释放感官,更能体验深邃的生活滋味。
刻意窄化狭长玄关,黑色地面更显曲径通幽之雅,对比悬浮片墙后一室开阔,自然营造戏剧性扩张流动感。
而壁炉于冬日扬起明澈的焰,静寂奔舞中藏着若有似无的规律,光是凝视就能净化世俗杂质,一切只剩轻灵的专注。
湖泊是大地最美丽丰富的一部分它是大地之眼凝视湖泊可以量出自己的深度
——湖滨散记
河流意向隐隐约约地渗入空间,建构河景、建筑轮廓与室内型态的抽象性,设计师在天花板结构及立面转折创造深浅各异的弯折,顺应河道和建筑曲线安静流淌,绕过四季晨昏。
以中式木造建筑构想层架的斗栱承托结构,细究十字工字形貌,一文一物、举折平缓。
墨色细格栅拉门如一层儒雅烟色,维持空间串连却也朦胧了两侧距离,盈疏有度、淡而不浮。
东方建筑语汇亦施展于长轴线上木质立面,竖向细柱阵列出文化语境,层层递进,秩序清雅,在节制的构图中忘却执着,顺其自然,继而缩短人与居室、生活与水岸自然的精神距离。
为了营造大自然的闲适和谐,设计师选择色调中性、纹路低调温暖的材质,使整体明亮平和,再添入细节待人放慢步调,耐心地靠近,慢慢感受。
——湖滨散记
光,抒写生活的诗章:
雨果曾說:“哪里有阴影,哪里就有光”。室內开关隔栅使各处皆能赏景迎光,但阴影收敛在旁如沾水笔勾的边,光有了轮廓、饱满或锐利,在室內柔和荡漾或渐弱低迴,像河流潮汐有強弱变化的韵律。
观察潮汐,让时间缓慢下来,行走时都带着冥想般的澄澈,起居坐卧,风起亦无痕,在水天之间解放心绪。
△
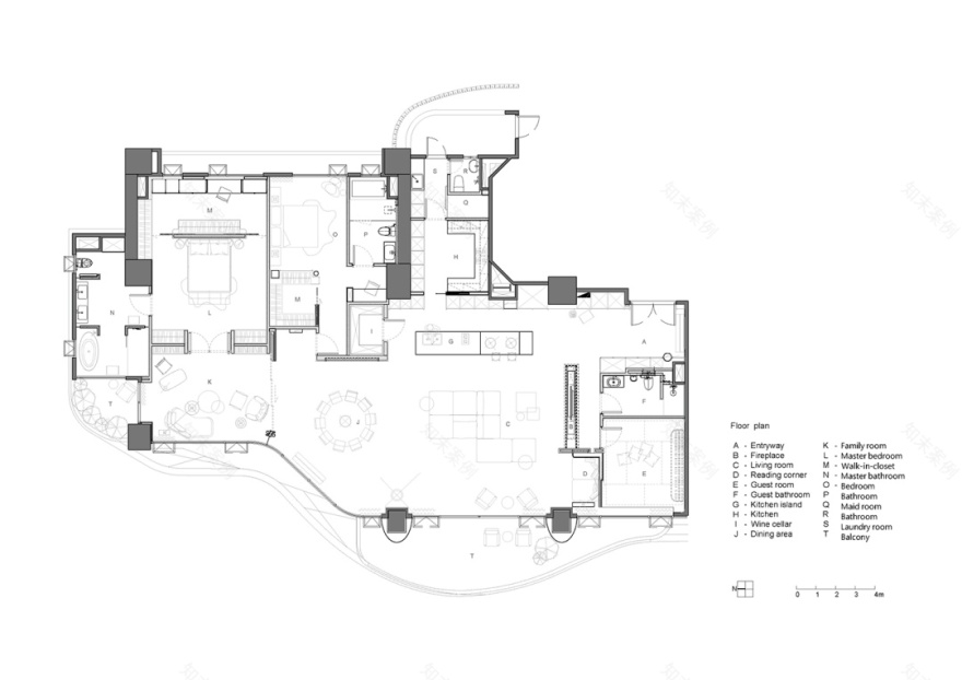
平面图
项目名称|丰盈海_张宅
空间设计|李智翔、郭瑞文、黄昱诚/水相
设计项目地址|新北市
室内面积|350㎡
空间格局|客厅、餐厅、厨房、起居室、主卧室、主卫浴、次卧室、次卫浴、茶室、更衣室、客卫、储藏室、阳台
设计时间|2020.10-2021.05
施工时间|2021.07-2022.02
主要材料|欧洲橡木地坪、钢刷橡木皮、和纸席、马鞍皮革、锈铜漆、手工漆、罗马白洞石、雪白蒙卡花岗石、印度黑花岗石、水磨石、米色薄板砖
项目摄影|李国民空间摄影事务所
项目视频|遥空映画
水相设计
Waterfrom Design
成立于2008年的水相设计跨足室内与建筑领域,秉持设计应如『水』的初衷,纯净、有机又多变,本质上保持其原有的简洁性,意念上展现无框架的可能性。致力关注于空间的故事脉络及时间光线,创造一个具有情感沉淀及讯息想象的空间。
李智翔
水相设计总监
从事设计迄今十余年,作品揉和极简与幽默,毕业自纽约普瑞特艺术学院室内设计硕士与丹麦哥本哈根大学建筑研究。带着艺术、人文、哲学的思考,李智翔的学习养成到执业,有着建筑设计般的理性维,亦有艺术家的叛逆本质,他喜欢在规则的例外对既有秩序重新定义,在不可预知的不准确性下发现惊奇。
客服
消息
收藏
下载
最近

































































