查看完整案例


收藏

下载
家的意义不是被别人定义的,而是由居者赋予的。形态、风格、色彩…...通通不是家的模样的范围限制。设计在此时最重要的就是通过专业手法和设计师独特的情感去构造一个空间,去重新链接居者的过去、现在和未来;然后将一切交由居者去生长感受,用每一种情绪去点满家的光亮。设计师肖七认为,“家一定要有主人的同视感,其核心一定是被业主所喜欢的;当这个空间可以带去欢声笑语、抚平内心的同时,更带去自由坚定的轻快与力量,我想这里就将会是与你一起慢慢向上生长的家。”今天的作品便出自设计师肖七之手,她打破传统构思,大胆前卫的设计理念,从每一个家庭成员的需求出发,设计以整体的互动性为主,开创了“一室一厅”的居住结构;并以局部留白,细节减法,去呈现一个拥有极致美感的四口之家。
“一室一厅”的设计情
翡翠湾,位于重庆蔡家,从地理位置来说,是远离城市中心的近郊。从选择家的所在位置的那一刻起,就已经开启了一家四口满满爱意的故事。业主是一对非常甜蜜的并选择丁克的夫妻,家庭伙伴还有两只大狗。对于他们来说,一家四口就是最基本的家庭成员和现有生活状态关系。设计从功能需求出发,仅仅保留一个卧室,其余空间则被全部打通,在满足狗狗的独享空间之外,开阔整个格局,让所有空间完全地裸露在居者眼中,真正享受自己的天地,更加强成员互动性。
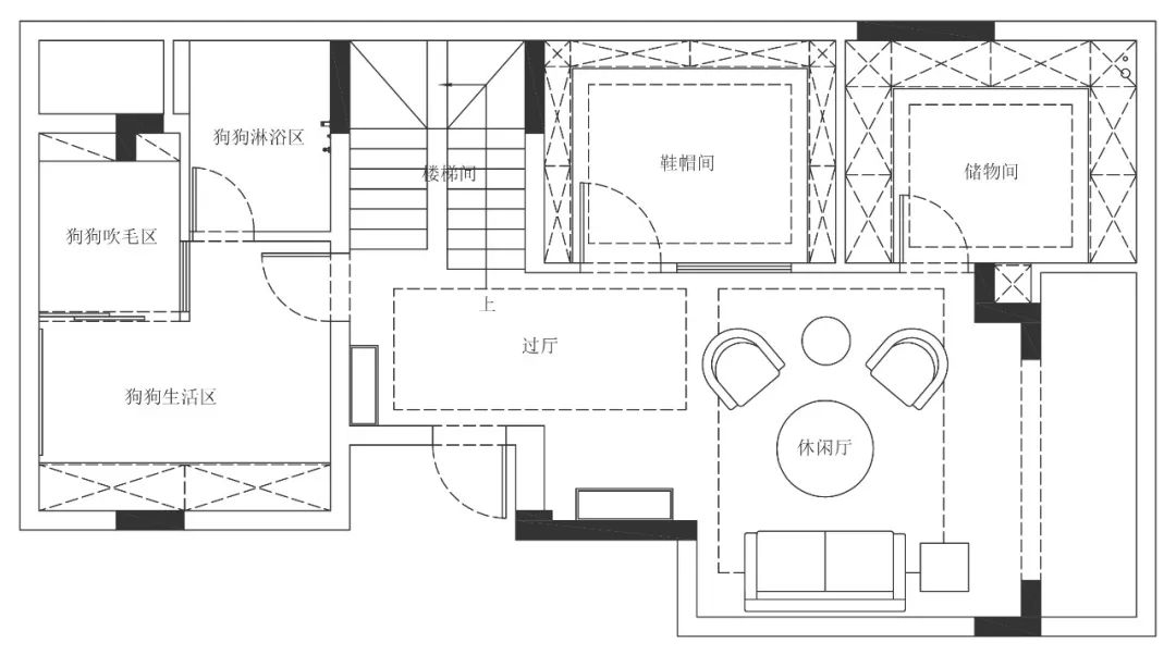
幸福的一家四口【负二层】“一室一厅”的结构呈现,源于业主对狗狗的喜爱。“我们搬离市区,首先是希望到一个人口密度小的地方,狗狗可以在安全友好的环境之下尽情地玩耍,享受自己的生命。”在基本需求的前提下,设计师跳出传统思维,将上下四层楼重新整合划分,每个细节都考虑到狗狗的动线以及业主的喜好。业主是喜欢宅家的状态,两只狗狗也是年龄较大的大型犬,考虑到业主自行在家为狗狗洗澡的需求,设计在负二层设置了专门的宠物洗澡区和用品收纳区;出于本层是车库入户的地方,也将鞋帽间单独设置在此,一是有足够区域(女业主的鞋真的太多啦),二是便于出行。整层楼简单利落,暖色配饰与灯光为回家的人带来愉悦心情。
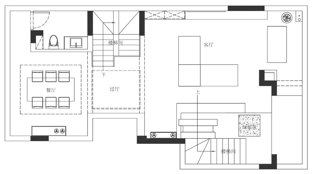
【负一层】来到负一层,进入眼帘的是一览无遗的客厅,除了必要的承重再无任何结构,宽敞通透。大面积的艺术涂料增加空间质感;在经典的黑白灰中输入轻柔温暖般视觉享受的装饰或单品摆件,最亮眼的莫过于B&B的绝版大黑脚,艺术之外饱含业主对生活的态度:轻松怪诞地探索乐趣,沉稳粗犷地踏实用心。当光穿过其中,感受到的是生命沉静的力量美。
一旁的餐厅主要针对宾客来访,桌椅摆件、墙面挂饰,甚至是那一抹绿植都恰到好处地表达着干净利落的线条感;运用FLOS的飞碟灯,反而增添艺术体验。
生活的浪漫仪式
打通四层空间,考验之一在于引领人们向上的楼梯设计。前两层中,设计师对于色块拼接、空间形体的表达已经非常明显——几何、弧形。楼梯选择钢板护栏,并设计为宽敞平缓的步道,贴心考虑狗狗的动态行为;延续极具视觉冲击感的几何浪漫,不论你在何处,俯瞰还是仰视或侧视,感受一种“横看成岭侧成峰,远近高低各不同”的巧妙。
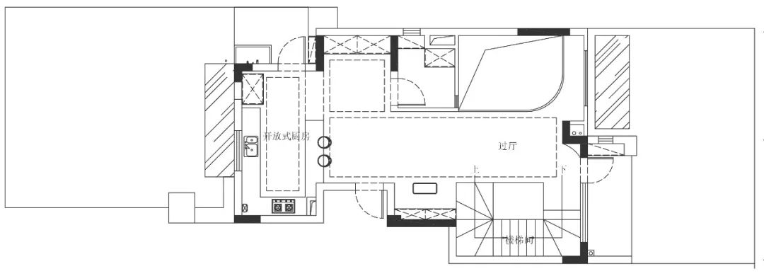
【一层】顺着这种设计巧思走到一层,是属于家人的互动时光。极具现代主义的开放式厨房,满足女业主喜欢下厨的生活需求和追求简单潇洒的酷个性;超大的过厅可以让狗狗自由奔跑,每个成员在开放的空间下都可以随时注意到对方的动态,让整个空间变成一个肆意玩耍的游乐场。
完全开放式的独立厨房,专为女主人设计,简洁冷冽的线条感、材质粗粒感,完全符合居者个性。最为大胆的设计玩法在这里出现,一起在楼板上开个圆洞,让自然光洒落,仿佛打开了复古唱片机,随着音乐的旋律缓缓起舞。
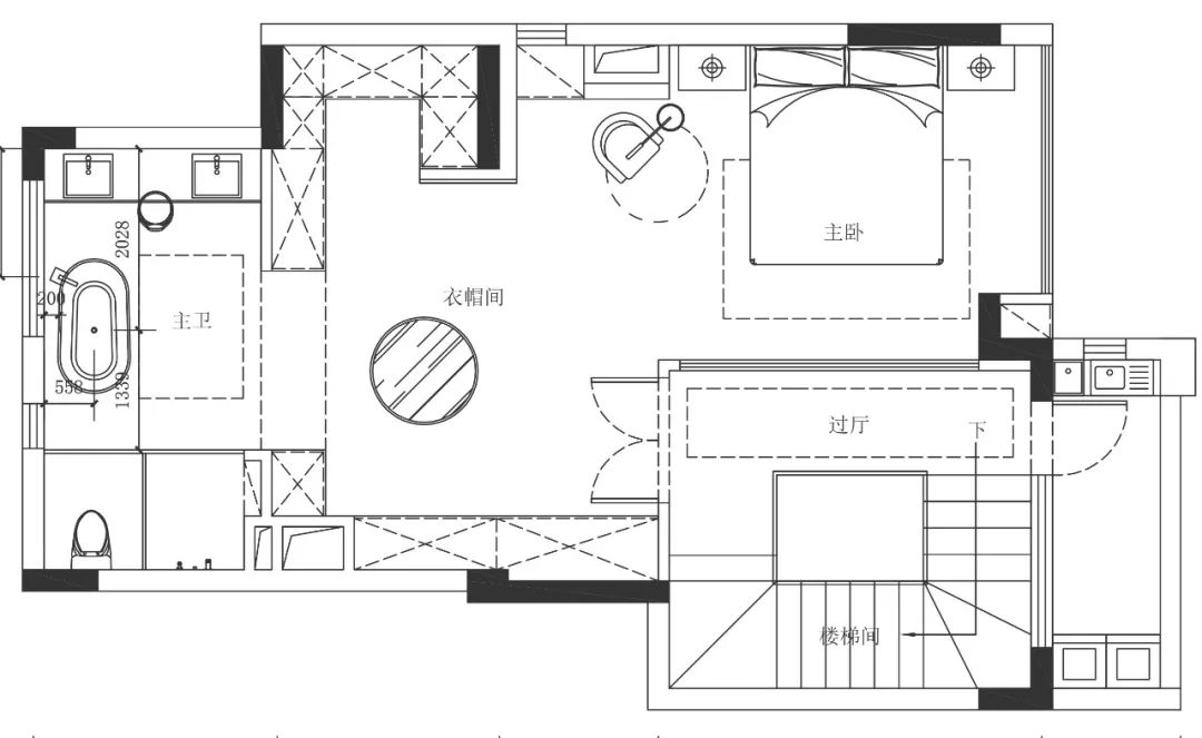
【二层】二楼便是主卧区。步梯依旧延续平缓状,为了随时随地都可以与狗狗们共处快乐时光。
推开设计简洁的双开门,各种花色拼凑的玻璃砖墙,仿佛进入一个神秘的花园国度;往里走,是素雅干净,是时尚俏皮,是属于居者对生活的仪式感。
衣帽间、浴室与主卧是完全连通的状态,在一整个私享环境下充满更多的自在畅快。纯开放式的、霸气黑的浴室设计,彰显业主一贯的调性。
家,应该是能得到回应的,不论是声音还是情绪感受上,都能让居者有一种依赖和愿意归于其中的行为愿望。本案在楼板大开圆洞,并合适挑空,加强每层楼的互动,把空间解放出来,适宜的留白则变为最佳礼物。如果最后要做一个总结——你喜欢什么,那我们就一起去创造出它的样子。
案例资料
项目名称 | 翡翠湾
项目地址 | 重庆 蔡家
设计机构 | 重庆谷沧室内设计事务所
主案设计 | 肖七
项目面积 | 300㎡
项目拍摄 | 蒋川
完工时间 | 2022年1月
肖七重庆谷沧室内设计事务所 设计总监重庆谷沧室内设计事务所成立于2014年,整个团队年轻有活力,为顾客提供专业、个性、原创的设计方案。作为一支有着多年沉淀的高凝聚力和高素养团队,谷沧人享受快乐及信守承诺,热爱生活并充满激情。谷沧的slogan是“好的设计是交朋友的方式”,专注于独立设计,以设计落地为目的,作品是最好的发声!部分荣誉奖项2020年德国高仪 · 中国住宅设计精英榜 优秀奖中国(重庆)十大居住空间设计师 金住奖40 UNDER 40 中国(重庆)设计杰出青年IDS国际设计先锋榜 优胜奖2021年德国高仪 · 中国住宅设计精英榜 优秀奖广州设计周年度优秀别墅设计师奖红棉中国设计奖最美雅奢空间设计奖40 UNDER 40 中国(重庆)设计杰出青年芒果奖 城市最具价值设计机构芒果奖 城市青年设计领军人物—设计说您认为什么样的设计属于他们?房子一定要有主人的同视感,是我一直坚持的设计理念。他们是一对非常简单的小夫妻,喜欢宅家,和两只狗狗一起生活。首先一定要满足他们对于狗狗独立空间的需求,四者的行为动线、个性差异等都要被考虑;其次是家具、墙面色彩的选择,以及上下楼梯的合理适用。对于他们来说,舒服与自在是最重要的,用他们所喜欢的或向往的状态去填满空间,这就会成为独属他们的家。4层楼全打通,“一室一厅”的设计灵感?灵感还是源于家庭成员的结构,业主只需要一个卧室,其余空间可以变成“全景互动”的一个功能模式。在不断地沟通和碰撞后,设计也随之给出了不同地主题表达,在不停地模拟各种居住模式与动线规划后,一起选择了最为适合的方向。灵感或许一闪而现,但实践中是需要反复验证——而让空间完全被释放,是此时的答案。设计中的难点或痛点?难点在于敢于舍得。在设计中,往往人们会不断地要求功能的全方位性,但最后会发现很多被闲置的空间,这反而是一种浪费。但本案的业主与我们的想法不同而谋,认为家的每一个角落都是有用的,都是人们对生活方式和态度的一种彰显,所以整个设计过程其实很愉快,也不存在什么痛点。设计中最让您记忆深刻的地方?最深刻的地方,还是在于和业主的沟通交流中,这可以算是一种检验双方是否同频的方式。于我而言,设计师不是向顾客展示专业技能或设计手法的传输器,应该是从顾客的语言中去捕捉美好的探测器。深入交流远远不够,最重要的是“懂”,这是产生信任感的前提,也是更好地合作地基础。谷沧的slogan是,好的设计是交朋友的方式。楼板上开大圆洞?我认为,很多设计点除了其本身的功能特点之外,往往也会延伸出其他的效果。开圆洞,肯定首先能满足采光,互动性也会加强;但它的出现实则是大家一起商量出来的比较好玩的惊喜的设计点,等于是一个敢说一个敢听,最后就存在了。所以,有时候设计没有这么多必要的道理,它总能让人会心一笑。您认为家是什么样?您的设计理念中什么最重要?用一句老话,一千个人中有一千个哈姆莱特,每个人都有对于家独特的理解。但关于家的内核是不会变的——它让你喜欢、依赖有归属感,它让你深感自由,被治愈且一直赋予你能量。关于设计理念,其实每个成长阶段都会有相应的思考和感悟,这也是设计师与设计成长的过程。对于现在的自己来说,更喜欢无设计,关注生活本质,做慢设计,用足够的耐心去体现设计的价值。
客服
消息
收藏
下载
最近

























































