查看完整案例


收藏

下载
©Soopakorn Srisakul
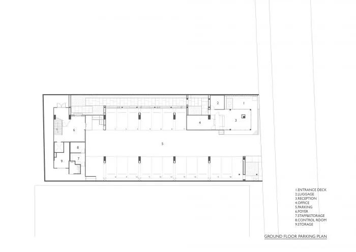
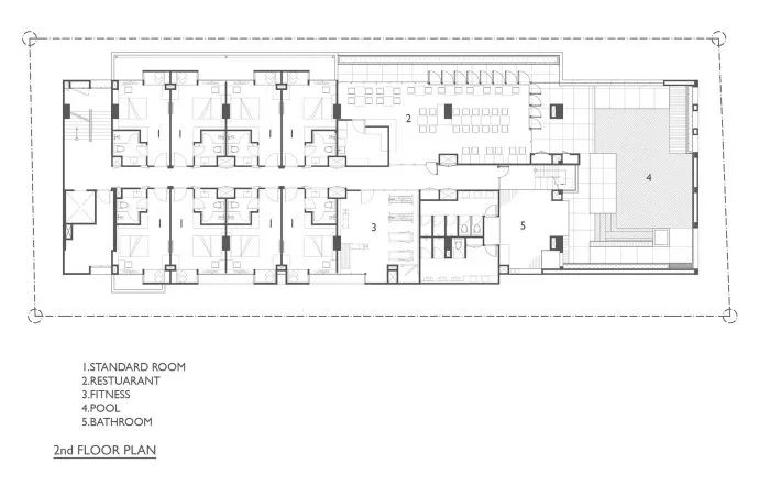
TwoThreeHotel 是一个 7 层的酒店项目,位于泰国曼谷中央商务区的黄金地段之一的 Sukhumvit 23 路。这是对旧公寓楼的翻新,业主要求把它变成一个新的城市酒店。翻新后的建筑包括 68 间客房,一个餐厅和一个游泳池。
©Soopakorn Srisakul
现有公寓的每个房间的主要问题是它的尺寸小,而且窗户的尺寸不够。为了改善这些不舒适的空间,我们决定将现有的露台整合为每个房间的一部分,并扩大其窗户的尺寸。结果,这些提供了更大、更明亮和更实用的房间,通过这种设计,外部露台已经变成了室内空间,成为一个放松的日间床角。
©Soopakorn Srisakul
然而,另一个限制是,这些新的日光床角落的刷新墙面直接面对邻居的土地,必须建造成实心墙。这是因为曼谷的建筑后退规定,每个前露台和邻近土地之间的空间太近,无法直接提供开口。换句话说,窗户只允许在其轮廓墙上。因此,为了反映我们对自然光的设计目标,凹陷的窗户被设计用来为日间床的角落和内部空间产生更多的间接光线。
©Soopakorn Srisakul
©Soopakorn Srisakul
©Soopakorn Srisakul
作为这些室内日间床的设计方案,我们决定将它们反映在外立面上,用木质纹理来表达它们是建筑的主要语言,而整体设计包括简单的几何形式,主要材料是抹灰和白色油漆墙。因此,这种干净的白墙加上一些木质材料的点缀,可以使这个酒店更加温馨,让客人更加舒适。
©Soopakorn Srisakul
在景观设计方面,由于土地面积的限制,没有空间种植大树,所以选择了垂直和盆栽花园作为景观设计的解决方案,以确定产生更多的绿色的户外氛围。同时,这个设计的特点是受到房屋后院的小花园的启发,各种形状的水磨石花盆被普遍排列,创造出具有友好环境的小角落,客人可以通过这种景观设计感到像在自己家里一样。
©Soopakorn Srisakul
©Soopakorn Srisakul
©Soopakorn Srisakul
©Soopakorn Srisakul
©Soopakorn Srisakul
©Soopakorn Srisakul
©Soopakorn Srisakul
©Soopakorn Srisakul
©Soopakorn Srisakul
©Soopakorn Srisakul
©Soopakorn Srisakul
©Soopakorn Srisakul
©Soopakorn Srisakul
©Soopakorn Srisakul
©Soopakorn Srisakul
©Soopakorn Srisakul
©Soopakorn Srisakul
©Soopakorn Srisakul
©Soopakorn Srisakul
©Soopakorn Srisakul
项目图纸
平面图
立面图
立面图
立面图
分析图
▲分析图
剖、立面图
平面图
▲平面图
项目信息
建筑师 :Design in Motion
面积 : 2400 m²
年份 : 2018 年
照片 :Soopakorn Srisakul
制造商 : AGC, Alumet, Lysaght, Nippon, Tekethik
室内设计师:Design in Motion
景观设计师:Design in Motion
工程设计: Kor-it Structural Analysis and Design Co., Ltd.
承包商:Square Arch Construction Co.Ltd
项目团队: Pakapong Leelatian, Narin Bunjun, Wichupon Suksuparp
土地面积 : 1,000.0 m
城市 : Khet Watthana
国家 : 泰国
客服
消息
收藏
下载
最近

































