查看完整案例

收藏

下载
人间烟火是底色,浪漫情怀是意趣
生活是一半烟火,一半情怀
手执烟火以谋生,心怀情怀以谋趣
生活的本质,是人间烟火背后的操持
奢华永远不止表面,生活才是内容
也许一觉醒来,我们望见蔷薇盛开
也许一觉醒来,我们望见华灯璀璨
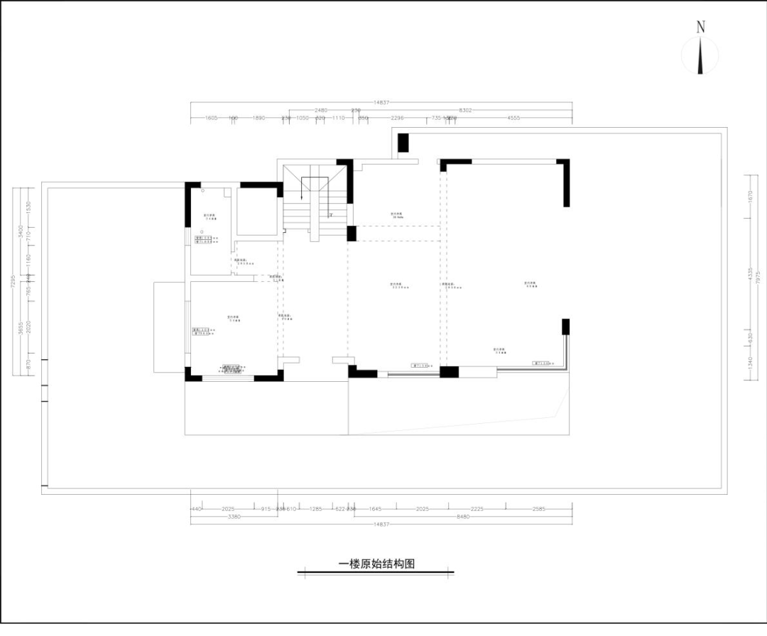
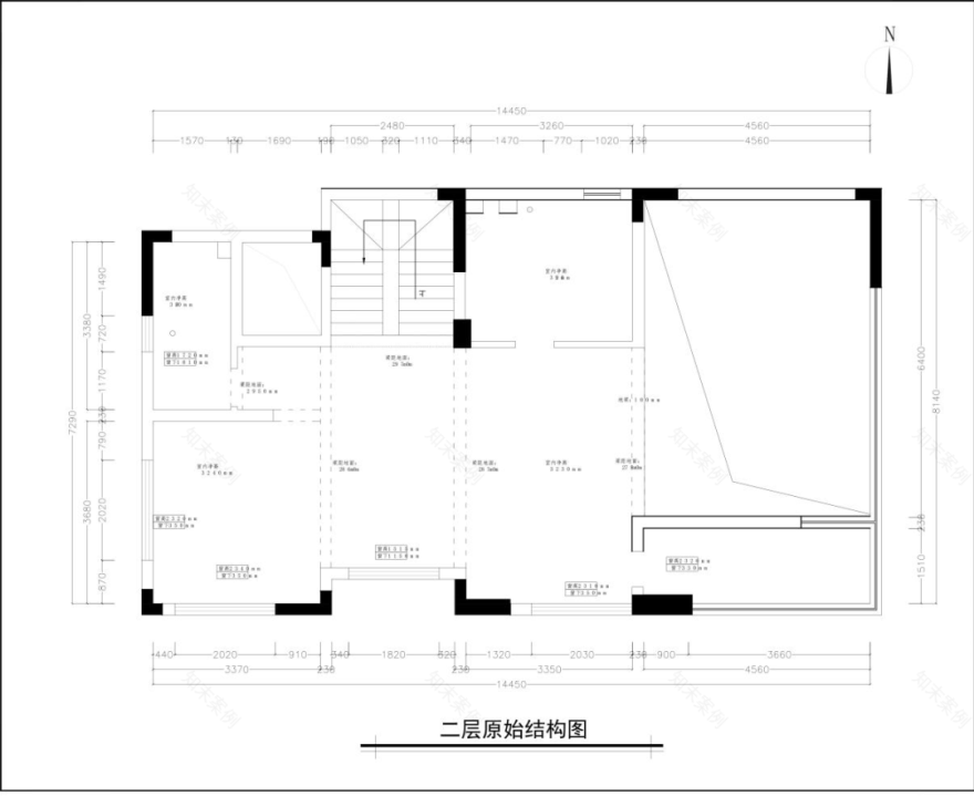
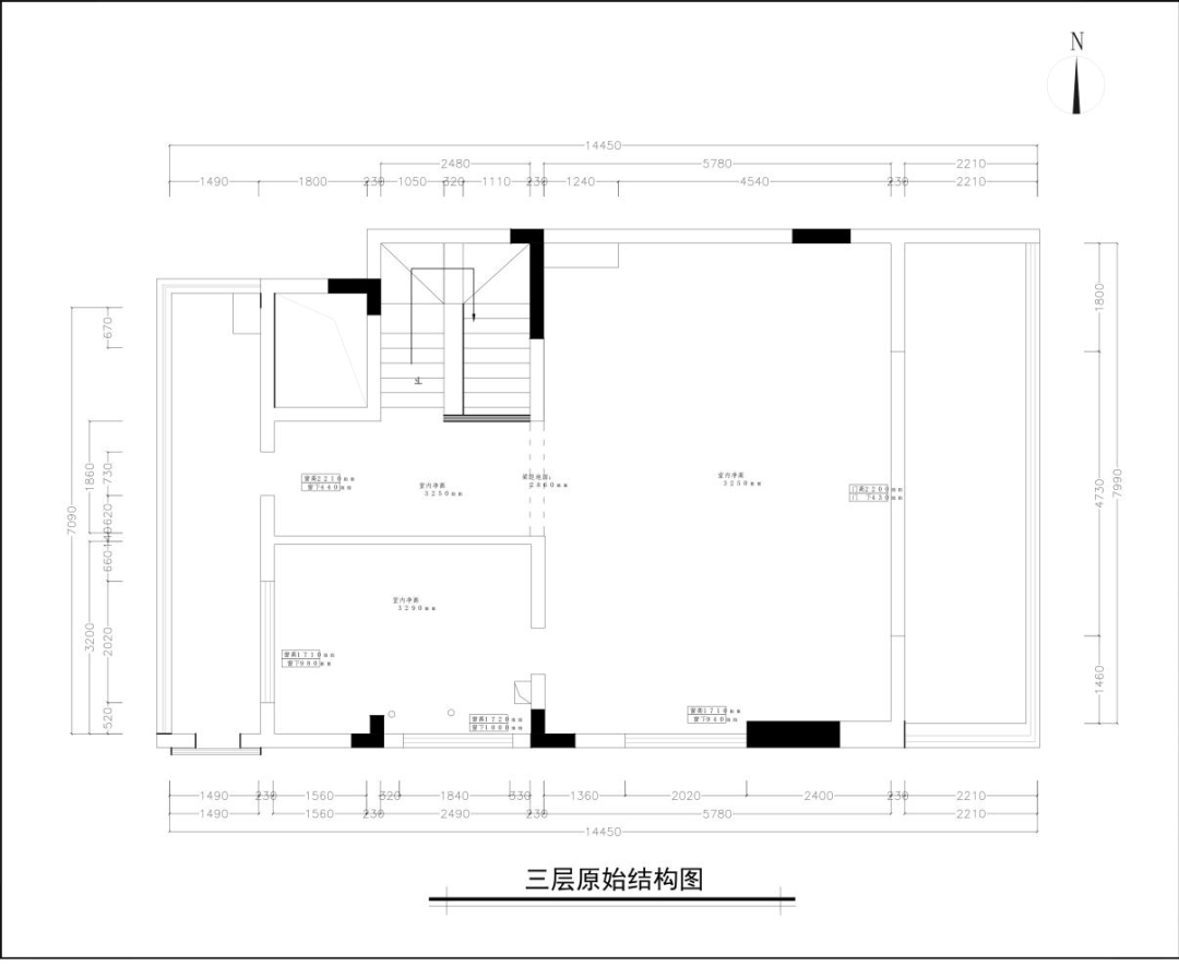
本案主人,是一对时尚的年轻夫妻,拥有两个天真烂漫的女儿,父母随住。对于空间重点来说,在于打破现有格局,打开房子,解决楼梯、电梯、客厅容纳量等问题,同时让动线与视线更具审美感,对于整体设计元素来说,也无需遵从一种设计原则,留有那些经久不衰的元素,配合每个空间使用者的审美,进行元素归纳整理,将空间混合成奢而不侈、华而不奢的现代家庭居住空间。
# 入 户 门 厅 #
通过电梯及楼梯区域的成功改造,将门厅整理为更加方正形区域,通过纵深,打造一进门厅,赏心悦目,二进厅堂,豁然开朗的格局。
门厅采用高级染色木皮、搭配灰黑色大纹砖面,打造摩登概念,配合金属哑口套,及金色玄关台,直线条吊顶,将摩登元素拉回现代空间,定义新摩登。而软装的饰品,则是屋主格物致知的精神象征。与这摩登空间即冲突又和谐。
# 客厅 #
客厅,作为二进区域,即是人间烟火的公共区域,又是情有独钟的私有区域。满足正常社交属性的功能,再嵌入屋主的气息,方才尽显东道主。
采用自带高级感的黑白灰,作为万物底色,平息包容一切。搭配不同时代的经典时尚元素,将那些违和的材质、颜色作为空间跳跃元素,以突显空间的主角。
一抹绿意,一杯清酒,一本书,一个人的时光慢慢过去。
热爱可抵岁月漫长,人间怎会少有良物。
# 卧室 #
主卧作为忙碌的夫妻二人的放松休憩空间,延续了客厅的时尚感,柔和的色彩、静雅的线条、安静不张扬,低调而不失奢侈。整个空间在软装上从地毯、床品、灯饰等软装的相互点缀中,展现出空间的温婉与细腻,临窗而卧,逃离庸常。
老人房依然延续着典雅的气息,采用弧线条,软化空间的硬朗感,配合温婉的整体色调,仿佛在提醒着老人依然年轻,依然动人。
两位公主不同年龄段,需求也各不相同,但从整体设计来说,依然延续着空间轻奢的大调,主题采用淡粉及淡蓝的色调,让空间整体不会因为时光的流逝,而失去少女感。
# 地下空间 #
茶区,不于品茶,更是静心、放松的空间,将整个茶空间背靠天井植被区,能让绿色时间映入客人眼帘,同时环顾影音区、水吧区,让茶空间既可以承担社交功能,又适合一个人独处,修身养性的空间。
品茶的时光,既是一个人,也是属于一个人的精神放空时间。
影音区,作为家庭的娱乐设备中心,承担着儿童的欢乐,大人的减压。装饰上面更多除去了复杂的元素,运用了女主人喜欢的玫瑰红,用于点醒整
# 卫生间 #
主卫大面暖咖色石纹瓷砖,延续着空间整体色调,同时配合黑色时尚气息卫浴及家具,突显功能,突显时尚感。
二楼卫生间,由于是女儿们使用为主,在整体色调,依然采用童色为主进行不同色块搭配,保持童趣,但不失整洁。
# 花园 #
整个花园采取日式与欧式庭院结合的做法,将蔷薇作为主题,盛开之时,仿佛寓意着爱情的美好,家庭的幸福,而日式整体的整洁度,也一定程度上烘托出蔷薇花地盛开。
客服
消息
收藏
下载
最近































