查看完整案例


收藏

下载
我向往一种平衡、纯粹、宁静的艺术,
没有激动人心或引人入胜的题材,既不烦扰人,也不使人不安。
——亨利·马蒂斯
如同马蒂斯希望自己的画像一把安乐椅,能让疲惫的在其面前得到片刻安宁一般,大多数的人对家的期待往往也不过如此。那么何不把房屋也当做画布,用草木砖瓦去刻画出脑海中最向往的场景?
业主H是一位90后文艺男青年,向往自由、无拘无束,这个家将开启他未来的独居生活。
H希望未来的家
可以自由的享受阳光
可以随处感受到木材的温暖和宁静
可以有舒适宽阔的餐厅,感受一日三餐的美好
喜欢干净简单生活方式
于是我们用白色艺术漆搭配了温润的樱桃木;
喜欢一个人无拘无束的空间 于是我们对整体空间进行大胆的改动;
一切,只希望能够更贴近H,描绘出脑海中家的场景。
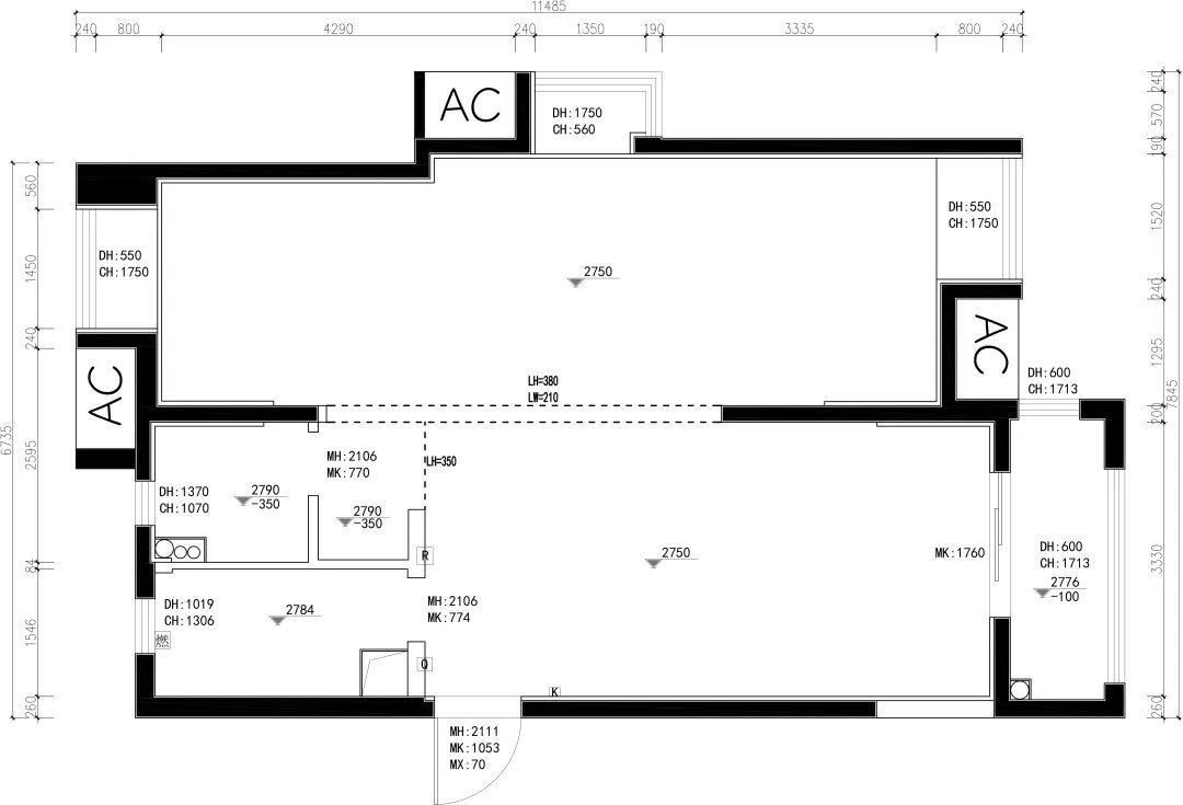
平面设计思路:
我们舍弃了小书房,整体空间更开阔。 同时把原有客厅和主卧的位置进行了互换,这样小书房就成了客餐厅中的一块,形成一个较大的公区。主卧也拥有了大阳台和大面积采光。 业主身高185cm,需要保证较高层高。我们在墙面、顶面的造型上使用弧形元素,遮挡设备管道线路。既解决了空间高度的问题,也让空间线条更柔和,避免了横平竖直过于生硬。
这个家从设计到最终的落地,堪称一比一的还原度。
入户是家与外界的连接点,也是界限清晰的分割点。这里好像具备“任意门”的功能,一开一合之间就到达了“梦中情家”。
入户是家与外界的连接点,也是界限清晰的分割点。这里好像具备“任意门”的功能,一开一合之间就到达了“梦中情家”。
打开家的“任意门”,整体格调是木质特有的温润宁静;不需要刻意强调装饰,以材质纯粹的表现力,丰富家的视觉和内涵。
因受原始户型限制,我们把进门功能区归至餐厅的一侧。L型的柜体承担了鞋屋收纳、日常收纳、杂物存储的功能,整个柜子一门到顶简洁大气,把冰箱也安置在这里,在视觉形成一个整体。
从玄关而入就是开放式餐厅,扑面而来的自然原木风让人舒缓安定。
岛台餐桌错落有致的设计,整体集纳烤箱,岛台、餐桌于一体。餐厅回形动线顺畅,不显得拥挤,无主灯设计搭配复古吊灯,不同的灯光设计也满足不同场景的使用需求。
温润的樱桃木与白色艺术漆结合,更凸显木纹的肌理感,清爽干净。
无主灯设计让顶面不过分抢眼,原木家具、布艺沙发、棉麻地毯,没有多余的陈设,只有轻松与舒适感。 去除了传统客厅的复杂装饰品与占据空间的茶几,空间质感更为简练,灯具与艺术涂料的配合也营造出宁静舒适的室内环境。
无主灯设计让顶面不过分抢眼,原木家具、布艺沙发、棉麻地毯,没有多余的陈设,只有轻松与舒适感。 去除了传统客厅的复杂装饰品与占据空间的茶几,空间质感更为简练,灯具与艺术涂料的配合也营造出宁静舒适的室内环境。
豆腐块沙发让客厅呈现慵懒感,窝在沙发里,边几沏上一杯淡淡的香茗,手捧一本引人入胜的好书,享受生活中的惬意时光。
豆腐块沙发让客厅呈现慵懒感,窝在沙发里,边几沏上一杯淡淡的香茗,手捧一本引人入胜的好书,享受生活中的惬意时光。
比起餐厅,客厅,展示区更能代表一个家的温度。放上喜欢的杂志书籍,手办,或者是陈列旅游带回来的小玩意,随性便捷,稍微凌乱一些似乎也不赖。 生活幸福啊,不就是藏在这些微小之处吗?
比起餐厅,客厅,展示区更能代表一个家的温度。放上喜欢的杂志书籍,手办,或者是陈列旅游带回来的小玩意,随性便捷,稍微凌乱一些似乎也不赖。 生活幸福啊,不就是藏在这些微小之处吗?
比起餐厅,客厅,展示区更能代表一个家的温度。放上喜欢的杂志书籍,手办,或者是陈列旅游带回来的小玩意,随性便捷,稍微凌乱一些似乎也不赖。 生活幸福啊,不就是藏在这些微小之处吗?
主卧和客厅互换后,拥有大面积的窗户和阳台,优秀的采光与原木搭配确实再适合不过了! 和客餐厅相同的原木元素,造型简洁的床头背景墙,亚麻质地的床品,与木色的斗柜,床,都让这个用来休息的房间回到最基础的功能,莫名让人感到安心。
主卧和客厅互换后,拥有大面积的窗户和阳台,优秀的采光与原木搭配确实再适合不过了! 和客餐厅相同的原木元素,造型简洁的床头背景墙,亚麻质地的床品,与木色的斗柜,床,都让这个用来休息的房间回到最基础的功能,莫名让人感到安心。
U型的设计,右侧增加操作台面和橱柜,不仅提高收纳力,也丰富了厨房的实用功能。 一个人的厨房不大,但是足够的设备与收纳空间是对生活幸福的尊重。
对于卫生间的设计,我们总是尝试着让它更精致一些,更远离人们对它的刻板印象一些。
卫生间、厨房都选用了素色的瓷砖,保持整体空间干净清爽。卫生间淋浴区做了下沉处理,没有选用挡水石抬高的做法,同时用到了悬挂马桶、暗藏花洒,后期做卫生更加方便。
客服
消息
收藏
下载
最近






















